Bénéficiez des services de nos partenaires locaux soigneusement sélectionnés
pour vous accompagner dans votre parcours d'achat immobilier

Terrain 299m² à villeurbanne

— Villeurbanne 69100 —
299 000 €
299 m²

Nos partenaires locaux
Villeurbanne - Impasse Aynard - Terrain constructible de 299 m² avec permis purgé.

Emplacement central et recherché, à la frontière de Lyon 3 et à proximité du quartier de la Villette / La Part-Dieu, découvrez ce terrain constructible de 299 m², situé Impasse Aynard à Villeurbanne.

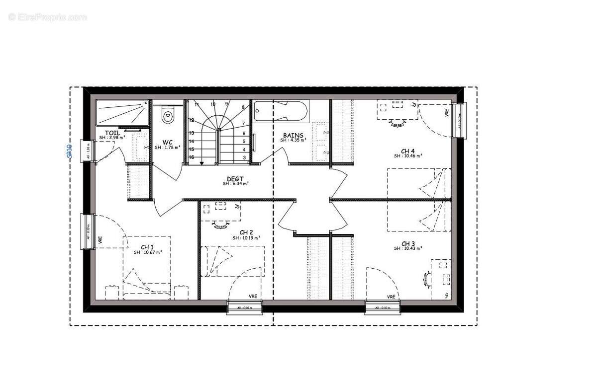
Ce terrain bénéficie d'un permis de construire purgé de tout recours au 26 juin 2025, autorisant la réalisation d'une maison individuelle de 118,8 m² de surface de plancher.

Le secteur offre un cadre de vie calme et résidentiel, tout en restant parfaitement connecté :
• À 20 minutes à pied de la Part-Dieu
• À 16 minutes de l'arrêt de métro République – Villeurbanne
• À proximité immédiate des commerces, écoles et services

Les raccordements en eau et assainissement sont à prévoir par les futurs propriétaires.

Les + :
• Emplacement central entre Villeurbanne et Lyon 3e
• Terrain plat et bien orienté
• Permis de construire purgé (gain de temps et de sécurité)
• Quartier résidentiel, proche des commodités et transports
• Proximité immédiate du quartier de la Villette et de la Part-Dieu
• Prix : 299,000€ FAI

Une opportunité rare pour construire dans un secteur dynamique tout en profitant d'un environnement paisible.

À découvrir sans tarder, contactez-nous au [Coordonnées masquées] !
Voir plus

Référence: TERRAIN IMPASSE AYNARD-CL
Honoraires à la charge du vendeur.
Barème des honoraires

Prêt immobilier

Vous souhaitez connaître votre capacité d’emprunt et trouver le meilleur crédit immobilier ?
Réaliser une simulation gratuite

Terrain à VILLEURBANNE
Terrain à VILLEURBANNE
Terrain à VILLEURBANNE
Terrain à VILLEURBANNE
Terrain à VILLEURBANNE
Terrain à VILLEURBANNE
Terrain à VILLEURBANNE
Terrain à VILLEURBANNE
Terrain à VILLEURBANNE
Ce site est protégé par reCAPTCHA la Politique de confidentialité et les Conditions d’utilisation de Google s’appliquent.
Obtenir un prêt immobilier au meilleur taux ?

En poursuivant votre navigation sans modifier vos paramètres, vous acceptez l'utilisation de cookies susceptibles de réaliser des statistiques de visite. Cliquez ici pour plus d'informations