Bénéficiez des services de nos partenaires locaux soigneusement sélectionnés
pour vous accompagner dans votre parcours d'achat immobilier

Appartement 45m² à asnieres-sur-seine

— Asnieres-Sur-Seine 92600 —
275 000 €
45 m²
2 pièces
ascenseur

Nos partenaires locaux
Iad France - Aurore Muller vous propose : Superbe Appartement 2 Pièces de 45 m² - Asnières-sur-Seine (Centre-Voltaire) - Clé en main

A 3 min à pied du métro et 15 min des lignes L et J, cet appartement idéalement situé aux portes de Paris offre tout le confort d'un quartier vivant et recherché, Centre-Voltaire, avec ses nombreux commerces de proximité et ses espaces verts.

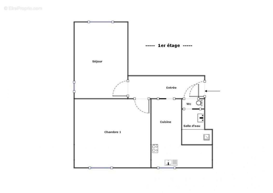
Situé au 1er étage d'un immeuble en belle pierre, plein de charme, avec ascenseur, aux parties communes soigneusement entretenues (beau carrelage, escalier élégant), cet appartement de 45 m² séduit par sa luminosité et son agencement fonctionnel.

Il se compose d'une entrée, d'un salon séjour lumineux sans vis-à-vis, d'une cuisine aménagée et équipée, d'une chambre spacieuse avec grand dressing sur mesure, d'une salle d'eau avec toilettes.

La copropriété, bien tenue et soucieuse de l'entretien de l'immeuble, offre un cadre de vie serein, avec des charges comprenant le chauffage collectif.

Les atouts :

- Quartier Centre-Voltaire, calme et recherché
- Immeuble en pierre avec belles parties communes
- Appartement lumineux, sans vis-à-vis
- Résidence sécurisée
- Aux portes de Paris, avec la proximité et la praticité de la capitale

Pour toute information complémentaire ou pour organiser une visite, contactez-moi dès aujourd'hui.

Les + qui font la différence :
oOuvert à l'inter-cabinet, pour faciliter la vente
oAvis de valeur gratuit

La presente annonce immobiliere vise 1 lot situé dans une copropriété de 31 lots au total et ne faisant l'objet d'aucune procédure en cours citée à l'article L. 721-1 du code de la construction et de l'habitation. Montant moyen mensuel de charges déclaré par le vendeur : 210¤ par mois (soit 2520 ¤ annuel). Honoraires d'agence à la charge du vendeur.
Information d'affichage énergétique sur ce bien : classe ENERGIE G indice 441 et classe CLIMAT F indice 97. Les informations sur les risques auxquels ce bien est exposé, y compris l'obligation légale de débroussaillement, sont disponibles sur le site Géorisques : http://www.georisques.gouv.fr.
La présente annonce immobilière a été rédigée sous la responsabilité éditoriale de Mme Aurore Muller mandataire indépendant en immobilier (sans détention de fonds), agent commercial de la SAS I@D France immatriculé au RSAC de Créteil sous le numéro 981386964, titulaire de la carte de démarchage immobilier pour le compte de la société I@D France SAS.
Informations LOI ALUR :
Soumis au régime de copropriété.
Nombre de lots : 31.
Quote part annuelle(moyenne) : 2520 euros.
Honoraires charge vendeur. (gedeon_6727_32000390)
Voir plus

Référence: 1860324
Bien en copropriété. Nombre de lots : 31. Charges de copropriété : 2520 €.
Honoraires à la charge du vendeur.
DPE
A
B
C
D
E
F
G
GES
A
B
C
D
E
F
G

Prêt immobilier

Vous souhaitez connaître votre capacité d’emprunt et trouver le meilleur crédit immobilier ?
Réaliser une simulation gratuite

Photo 1 - Appartement à ASNIERES-SUR-SEINE
Photo 1
Photo 2 - Appartement à ASNIERES-SUR-SEINE
Photo 2
Photo 3 - Appartement à ASNIERES-SUR-SEINE
Photo 3
Photo 4 - Appartement à ASNIERES-SUR-SEINE
Photo 4
Photo 5 - Appartement à ASNIERES-SUR-SEINE
Photo 5
Photo 6 - Appartement à ASNIERES-SUR-SEINE
Photo 6
Photo 7 - Appartement à ASNIERES-SUR-SEINE
Photo 7
Photo 8 - Appartement à ASNIERES-SUR-SEINE
Photo 8
Photo 9 - Appartement à ASNIERES-SUR-SEINE
Photo 9
Ce site est protégé par reCAPTCHA la Politique de confidentialité et les Conditions d’utilisation de Google s’appliquent.
Obtenir un prêt immobilier au meilleur taux ?

En poursuivant votre navigation sans modifier vos paramètres, vous acceptez l'utilisation de cookies susceptibles de réaliser des statistiques de visite. Cliquez ici pour plus d'informations