Bénéficiez des services de nos partenaires locaux soigneusement sélectionnés
pour vous accompagner dans votre parcours d'achat immobilier

A vendre uniquement chez sixieme avenue aix les bains

— Aix-Les-Bains 73100 —
215 000 €
62 m²
4 pièces
parkingbalcon/terrasse

Nos partenaires locaux
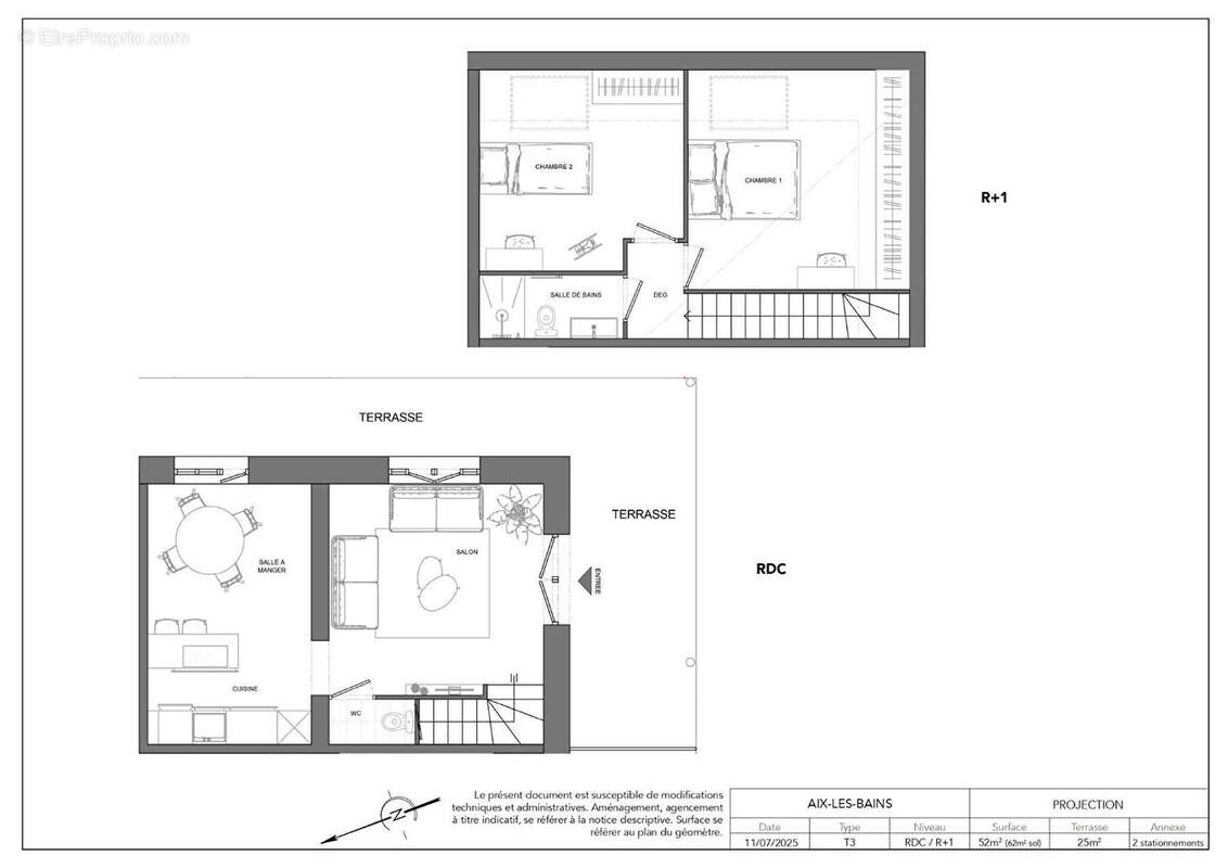
Premières hauteurs d'AIX LES BAINS - Chantemerle - Au calme - petite copropriété de caractère. Aménagez ce plateau selon vos envies, travaux à réaliser par vos soins. Possibilité d'aménager cette appartement en Type 3 duplex avec une magnifique terrasse de 25 m² exposé Sud-Est et deux places de parkings privatives. Exemple d'aménagement : (voir plans) Type 3 composé au RDC d'une pièce de vie exposée Sud-Est donnant accès à la terrasse avec une vue dégagée. Au premier étage, deux chambres, une salle de bains, un WC. Copropriété de 4 lots (Pas de procédure en cours). Charges annuelles : 400 euros.
Voir plus

Référence: 426
Bien en copropriété. Nombre de lots : 4. Charges de copropriété : 400 €.
Barème des honoraires

Prêt immobilier

Vous souhaitez connaître votre capacité d’emprunt et trouver le meilleur crédit immobilier ?
Réaliser une simulation gratuite

Appartement à AIX-LES-BAINS
Appartement à AIX-LES-BAINS
Appartement à AIX-LES-BAINS
Appartement à AIX-LES-BAINS
Appartement à AIX-LES-BAINS
Appartement à AIX-LES-BAINS
Ce site est protégé par reCAPTCHA la Politique de confidentialité et les Conditions d’utilisation de Google s’appliquent.
Obtenir un prêt immobilier au meilleur taux ?

En poursuivant votre navigation sans modifier vos paramètres, vous acceptez l'utilisation de cookies susceptibles de réaliser des statistiques de visite. Cliquez ici pour plus d'informations