Bénéficiez des services de nos partenaires locaux soigneusement sélectionnés
pour vous accompagner dans votre parcours d'achat immobilier

Voir tous les partenaires locaux

Commerce 16m² à lille

— Lille 59000 —
85 000 €
16 m²

Nos partenaires locaux
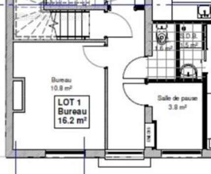
Lille Centre – Bureau de 16,45 m² en rez-de-chaussée

Situé à seulement 700 m du métro République Beaux-Arts (10 min à pied) et à 1 km de la Grand-Place / métro Rihour (14 min à pied), ce bureau bénéficie d'un emplacement stratégique en plein centre-ville, à proximité immédiate du quartier Vauban.

Caractéristiques du bien :
• Surface totale : 16,45 m²
• Bureau principal : 10,3 m²
• Salle d'attente ou bureau secondaire : 3,6 m²
• Sanitaire : 2,16 m²

Points forts :
• Bien rare sur le secteur
• Rez-de-chaussée rénové et fonctionnel
• Idéal professions libérales, médicales ou bureaux

Attention : le lot est enregistré en « bureau » dans la copropriété mais en « habitation » en usage auprès de la mairie. Il conviendra donc d'accepter d'y installer son entreprise dans un lot d'habitation.

Conditions financières :
• Prix de vente : 85 000 €
• Frais de notaire : environ 7 000 €
• Honoraires d'agence : 5 988 € TTC (4 990 € HT), à la charge de l'acquéreur et non inclus dans le prix de vente

Un bien rare, parfaitement situé en centre-ville de Lille. À visiter rapidement en contactant IMMO POUR PRO !

DPE en cours. Les informations sur les risques auxquels ce bien est exposé sont disponibles sur le site Géorisques : georisques.gouv.fr.

Votre conseiller Immo Pour Pro : Président - Thibault DELECROIX
Carte T CPI59[Coordonnées masquées]00073
RCP MRCSIMO202205FR00000000042709A00
Voir plus

Référence: VP377-IMMOPOURPRO
Honoraires à la charge de l'acquéreur.
Barème des honoraires

Prêt immobilier

Vous souhaitez connaître votre capacité d’emprunt et trouver le meilleur crédit immobilier ?
Réaliser une simulation gratuite

Commerce à LILLE
Commerce à LILLE
Commerce à LILLE
Commerce à LILLE
Commerce à LILLE
Commerce à LILLE
Commerce à LILLE
Commerce à LILLE
Commerce à LILLE
Ce site est protégé par reCAPTCHA la Politique de confidentialité et les Conditions d’utilisation de Google s’appliquent.
Obtenir un prêt immobilier au meilleur taux ?

En poursuivant votre navigation sans modifier vos paramètres, vous acceptez l'utilisation de cookies susceptibles de réaliser des statistiques de visite. Cliquez ici pour plus d'informations