Bénéficiez des services de nos partenaires locaux soigneusement sélectionnés
pour vous accompagner dans votre parcours d'achat immobilier

Maison à vendre 7 pièces vert-saint-denis (77)

— Vert-Saint-Denis 77240 —
399 000 €
143 m² / 1 335 m²
7 pièces
jardinpiscine

Nos partenaires locaux
VERT-SAINT-DENIS - (77240) – MAISON FAMILIALE - 5 PIÈCES - JARDIN - TERRASSE - SECTEUR CALME - PISCINE - GARAGE - SOUS-SOL TOTAL - RARE OPPORTUNITÉ

Vous souhaitez visiter ce bien ? Planifiez directement une visite sur le site Welmo avec la référence : H1lgJs5GRJe

Optimhome vous présente une belle MAISON FAMILIALE construite en 1975, d'une superficie totale de 275 m² (143 m² Carrez), avec sous-sol total et PISCINE CHAUFFÉE, édifiée sur un vaste terrain de 1 335 m², en plein cœur de Vert-Saint-Denis.

Située dans un SECTEUR CALME, cette maison se compose au rez-de-chaussée d'une entrée avec rangements, menant à un VASTE SÉJOUR TRAVERSANT ET LUMINEUX AVEC CHEMINÉE, ouvrant sur une VÉRANDA D'ENVIRON 25 M². Une cuisine indépendante, équipée et aménagée (possibilité d'ouverture sur le séjour), deux belles chambres, une salle d'eau et un WC séparé complètent ce niveau.

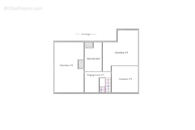
À l'étage, un large palier dessert trois chambres supplémentaires ainsi qu'une seconde salle d'eau équipée d'une BAIGNOIRE BALNÉO, d'une douche et d'un WC.

Côté extérieur, vous profiterez d'un GRAND JARDIN CLOS, ARBORÉ ET AMÉNAGÉ, DOTÉ D'UN SYSTÈME D'ARROSAGE AUTOMATIQUE, ainsi que d'une belle PISCINE COUVERTE ET CHAUFFÉE (8m x 4m, profondeur 1,30 m, filtration automatique, disjoncteur électrique indépendant).

Un SOUS-SOL TOTAL OFFRE DE NOMBREUSES POSSIBILITÉS D'AMÉNAGEMENT. Il comprend une spacieuse cuisine d'été, une buanderie, une chaufferie, plusieurs espaces de rangement, un établi, ainsi qu'un garage avec porte motorisée pouvant accueillir facilement deux véhicules.

À NOTER : UNE PARTIE DU TROTTOIR SITUÉE DEVANT LE MAISON EST PRIVATIVE, PERMETTANT ÉGALEMENT DE STATIONNER GRATUITEMENT DEVANT LE BIEN.

Proche de toutes commodités, des écoles et des commerces.
Arrêts de bus Jean Rostand et Croix Saint-Pierre accessibles en moins de 5 minutes à pied.
Gare RER D de Cesson à 7 minutes en voiture.

LES + :

- FIBRE OPTIQUE INSTALLÉE.
- ISOLATION DES COMBLES RÉALISÉE IL Y A UN PEU MOINS DE 10 ANS.
- CHAUDIÈRE À CONDENSATION REMPLACÉE IL Y A ENVIRON 7 ANS.

DPE réalisé après Juillet 2021

Les honoraires d'agence sont à la charge de l'acquéreur, soit 2,31% TTC du prix hors honoraires.
Les informations sur les risques auxquels ce bien est exposé sont disponibles sur le site Géorisques : www. georisques. gouv. fr.

Contactez Philippe VAINCHTEIN Entrepreneur Individuel, Agent commercial OptimHome (RSAC N°513 451 195 Greffe de LA ROCHELLE) [Coordonnées masquées] (réf. 593793 )
Voir plus

Référence: 830038714882
DPE
A
B
C
D
E
F
G
GES
A
B
C
D
E
F
G

Prêt immobilier

Vous souhaitez connaître votre capacité d’emprunt et trouver le meilleur crédit immobilier ?
Réaliser une simulation gratuite

Maison à VERT-SAINT-DENIS
Maison à VERT-SAINT-DENIS
Maison à VERT-SAINT-DENIS
Maison à VERT-SAINT-DENIS
Maison à VERT-SAINT-DENIS
Maison à VERT-SAINT-DENIS
Maison à VERT-SAINT-DENIS
Maison à VERT-SAINT-DENIS
Maison à VERT-SAINT-DENIS
Maison à VERT-SAINT-DENIS
Maison à VERT-SAINT-DENIS
Maison à VERT-SAINT-DENIS
Maison à VERT-SAINT-DENIS
Maison à VERT-SAINT-DENIS
Maison à VERT-SAINT-DENIS
Maison à VERT-SAINT-DENIS
Maison à VERT-SAINT-DENIS
Maison à VERT-SAINT-DENIS
Maison à VERT-SAINT-DENIS
Maison à VERT-SAINT-DENIS
Maison à VERT-SAINT-DENIS
Maison à VERT-SAINT-DENIS
Maison à VERT-SAINT-DENIS
Maison à VERT-SAINT-DENIS
Ce site est protégé par reCAPTCHA la Politique de confidentialité et les Conditions d’utilisation de Google s’appliquent.
Obtenir un prêt immobilier au meilleur taux ?

En poursuivant votre navigation sans modifier vos paramètres, vous acceptez l'utilisation de cookies susceptibles de réaliser des statistiques de visite. Cliquez ici pour plus d'informations