Bénéficiez des services de nos partenaires locaux soigneusement sélectionnés
pour vous accompagner dans votre parcours d'achat immobilier

Appartement 528 m² à Haulchin

— Haulchin 59121 —
299 000 €
528 m²

Nos partenaires locaux
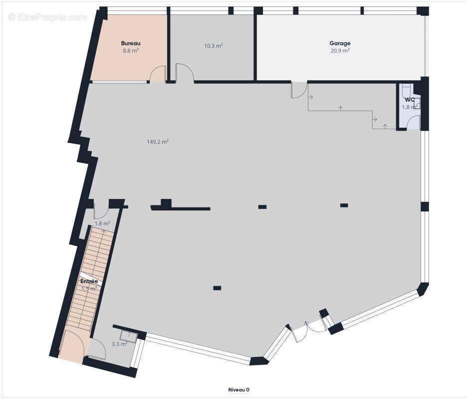
59121 HAULCHIN – LOCAL 192,5 M² + SOUS-SOL 192,5 M² – APPARTEMENT 143 M² – TOIT-TERRASSE – 528 M² EXPLOITABLES - VISITE VIRTUELLE DISPO

Efficity, l'agence qui estime votre bien en ligne, vous propose cet ensemble mixte sur axe stratégique à fort passage (10 000 véhicules/jour).

Tuto : comment exploser la rentabilité avec cet immeuble mixte à 299 000 €

Vous cherchez un investissement à haut rendement ? Oubliez les petites surfaces chronophages. Voici un plan d'action redoutable sur ce bâtiment de 528 m² exploitables, affiché à seulement 299 000 €.

Étape 1 : sécuriser le cash-flow immédiat
L'appartement indépendant de 143 m² (4 chambres, balcon de 50 m² et rooftop de 100 m²) est déjà loué 1 400 €/mois. Si besoin, il y a la possibilité de l'acheter vide.

Étape 2 : diviser le local commercial
Le rez-de-chaussée offre 192,5 m². L'astuce est de le diviser en deux cellules de 90 m², parfaites pour des professions libérales ou des artisans. Après le changement des menuiseries et un rafraîchissement, comptez environ 1 000 €/mois par cellule.

Étape 3 : rentabiliser le sous-sol
Ne laissez pas dormir les 192,5 m² en sous-sol. Après un traitement de l'humidité, louez cet espace en surface de stockage pour environ 800 €/mois.

Étape 4 : encaisser et calculer la rentabilité
On fait les comptes : 1 400 € + 1 000 € + 1 000 € + 800 € = 4 200 €/mois de loyers bruts, soit 50 400 € par an.
Avec un prix d'achat à 299 000 €, cela donne une rentabilité brute théorique de 16,8 %. Même en ajoutant une belle enveloppe pour les travaux de division et de rénovation, la rentabilité finale restera largement à deux chiffres.

Ce genre de montage ne reste pas longtemps sur le marché. Appelez-moi, on va sur place chiffrer les travaux et bloquer l'affaire.
.
Les informations sur les risques auxquels ce bien est exposé sont disponibles sur le site Georisque : georisques. gouv. fr
Hugo Liot - EI - est Agent Commercial mandataire en immobilier, immatriculé au Registre Spécial des Agents Commerciaux du Tribunal de Commerce de Valenciennes sous le n°841923865.
Siège social du mandant : effiCity, 48 avenue de Villiers - 75017 PARIS - Société par Actions Simplifiée, société au capital de 132 373,05 euros, immatriculée au RCS Paris 497 617 746 et titulaire de la Carte professionnelle CPI 75[Coordonnées masquées]02 025 - CCI Paris IDF - Caisse de Garantie : GALIAN Assurances 89 rue de la Boétie 75008 Paris
Voir plus

Référence: 195469
Honoraires à la charge du vendeur.
Barème des honoraires
DPE
A
B
C
D
E
F
G
GES
A
B
C
D
E
F
G
Appartement à HAULCHIN
Appartement à HAULCHIN
Appartement à HAULCHIN
Appartement à HAULCHIN
Appartement à HAULCHIN
Appartement à HAULCHIN
Appartement à HAULCHIN
Appartement à HAULCHIN
Appartement à HAULCHIN
Appartement à HAULCHIN
Appartement à HAULCHIN
Appartement à HAULCHIN
Appartement à HAULCHIN
Appartement à HAULCHIN
Appartement à HAULCHIN
Appartement à HAULCHIN
Appartement à HAULCHIN
Appartement à HAULCHIN
Appartement à HAULCHIN
Appartement à HAULCHIN
Géorisques

Les informations sur les risques auxquels ce bien est exposé sont disponibles sur le site Géorisques : www.georisques.gouv.fr

Ce site est protégé par hCaptcha Politique de confidentialité et Conditions d’utilisation s’appliquent.