Bénéficiez des services de nos partenaires locaux soigneusement sélectionnés
pour vous accompagner dans votre parcours d'achat immobilier

Appartement 528m² à valenciennes

— Valenciennes 59300 —
299 000 €
528 m²

Nos partenaires locaux
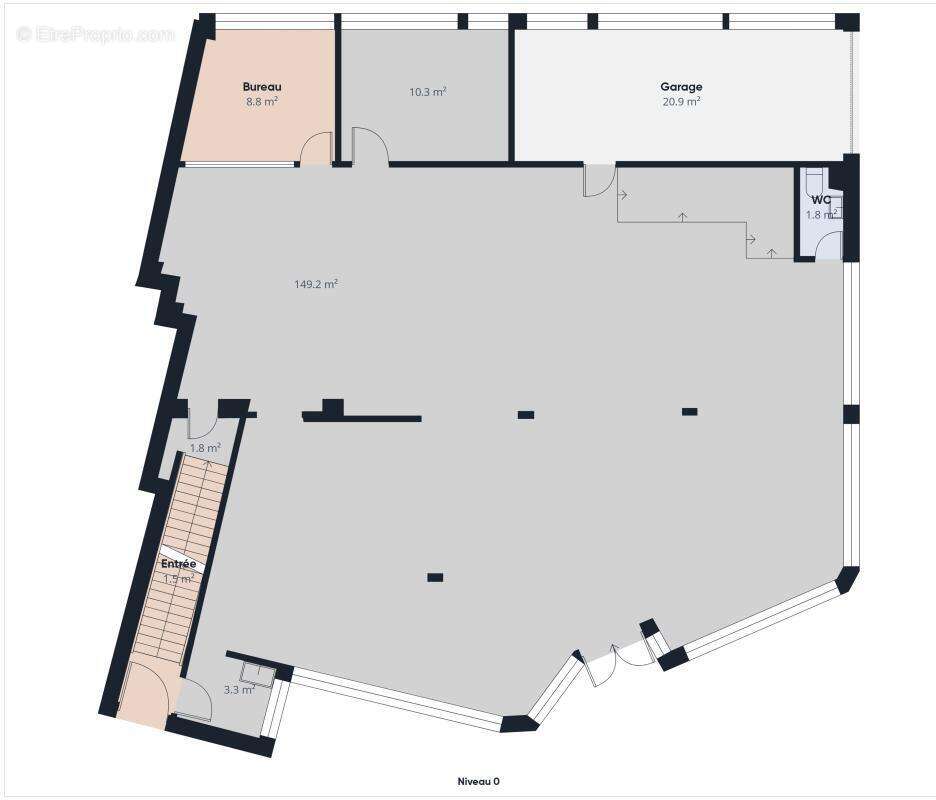
59121 HAULCHIN – LOCAL 192,5 M² + SOUS-SOL 192,5 M² – APPARTEMENT 143 M² – TOIT-TERRASSE – 528 M² EXPLOITABLES

EffiCity, l'agence qui estime votre bien en ligne, vous propose cet ensemble mixte sur axe stratégique à fort passage (10 000 véhicules/jour).

Local professionnel de 192,5 m² avec 192,5 m² de sous-sol aménageable.
Emplacement idéal pour boulangerie (toute activité artisanale), profession libérale, cabinet médical / paramédical ou showroom.
Appartement indépendant de 143 m² : 4 chambres, 2 salles d'eau, balcon 50 m², rooftop 100 m².
Stationnement public devant et sur le côté + option parking.
Travaux à prévoir : menuiseries du local commercial, rafraîchissement, humidité en sous-sol.
Entrées séparées, exploitation facile en usage mixte.
Surface totale exploitable : 528 m². Rentabilité brute potentielle élevée (~9%).

Opportunité rare sur le secteur. Contactez-moi dès maintenant pour visiter !
.
Les informations sur les risques auxquels ce bien est exposé sont disponibles sur le site Georisque : georisques. gouv. fr
Hugo Liot - EI - est Agent Commercial mandataire en immobilier, immatriculé au Registre Spécial des Agents Commerciaux du Tribunal de Commerce de Valenciennes sous le n°841923865.
Siège social du mandant : effiCity, 48 avenue de Villiers - 75017 PARIS - Société par Actions Simplifiée, société au capital de 132 373,05 euros, immatriculée au RCS Paris 497 617 746 et titulaire de la Carte professionnelle CPI 75[Coordonnées masquées]02 025 - CCI Paris IDF - Caisse de Garantie : GALIAN Assurances 89 rue de la Boétie 75008 Paris
Voir plus

Référence: 195469
Honoraires à la charge du vendeur.
Barème des honoraires
DPE
A
B
C
D
E
F
G
GES
A
B
C
D
E
F
G

Prêt immobilier

Vous souhaitez connaître votre capacité d’emprunt et trouver le meilleur crédit immobilier ?
Réaliser une simulation gratuite

Appartement à VALENCIENNES
Appartement à VALENCIENNES
Appartement à VALENCIENNES
Appartement à VALENCIENNES
Appartement à VALENCIENNES
Appartement à VALENCIENNES
Appartement à VALENCIENNES
Appartement à VALENCIENNES
Appartement à VALENCIENNES
Appartement à VALENCIENNES
Appartement à VALENCIENNES
Appartement à VALENCIENNES
Appartement à VALENCIENNES
Appartement à VALENCIENNES
Appartement à VALENCIENNES
Appartement à VALENCIENNES
Appartement à VALENCIENNES
Appartement à VALENCIENNES
Appartement à VALENCIENNES
Appartement à VALENCIENNES
Ce site est protégé par reCAPTCHA la Politique de confidentialité et les Conditions d’utilisation de Google s’appliquent.
Obtenir un prêt immobilier au meilleur taux ?

En poursuivant votre navigation sans modifier vos paramètres, vous acceptez l'utilisation de cookies susceptibles de réaliser des statistiques de visite. Cliquez ici pour plus d'informations