Bénéficiez des services de nos partenaires locaux soigneusement sélectionnés
pour vous accompagner dans votre parcours d'achat immobilier

Calme mais accès 2mn pour n12 et commerces

— Maulette 78550 —
450 000 €
150 m² / 1 050 m²
6 pièces
parkingjardin

Nos partenaires locaux
Charmante maison FAMILIALE indépendante de 150 m² environ avec des performances énergétiques maximisées ! DPE C !
POMPE A CHALEUR + ballon THERMODYNAMIQUE + cheminée insert, bâti en béton cellulaire et plancher béton : la combinaison gagnante.
Les + :
- Sans vis-à-vis
- Au calme
- Rénovation en 2013, aucun travaux à prévoir !
- Sous-sol total avec garage, atelier, bureau, buanderie
- Véranda pour profiter d'un été prolongé
- Grand jardin arboré
- A 2 MINUTES DES COMMODITES , située à Gambais
- Proximité (mais sans nuisances sonores) de la N12 (2mn), des transports en commun (GARE à 5 Kms) , écoles, collèges, et crèches, hypermarché (3 mn). HOUDAN à 5mn. Piscine 7 mn.
- Un combles aménagé pour le bonheur des plus jeunes

Ne perdez pas de temps pour visiter cette belle maison qui se compose ainsi :
Edifiée sur un sous-sol total avec garage, buanderie, chaufferie, un second bureau, et ateliers.
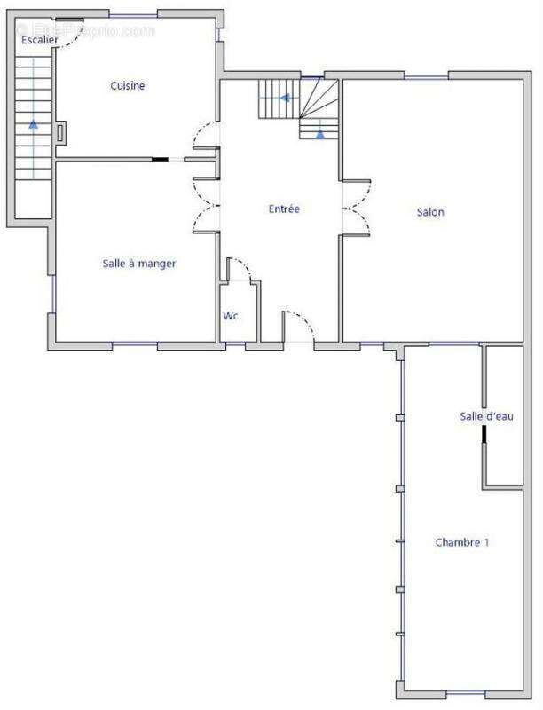
Au rez-de-jardin : Entrée, Cuisine aménagée et équipée , salle à manger (possible chambre), WC, séjour cheminée avec insert, véranda.
Au premier étage, le palier dessert 3 chambres avec placards, 1 bureau (ou dressing), une salle de bains + douche avec placards, et un WC séparé.
Les plus jeunes s'aventureront dans le grenier isolé et aménagé pour de bons moment en toute discrétion.
Les extérieurs vous raviront avec une belle terrasse, un jardin lumineux et arboré, sa vue campagne en arrière plan, abri bois et balançoire.
Sur sa partie arrière, le jardin dispose d'une cabane en bois, un bassin à poissons, un chenil et un bûcher, ainsi qu'un espace potager.

Chauffage par POMPE A CHALEUR, ballon THERMODYNAMIQUE et adoucisseur d'eau.
Maison construite en 1981 , Exposition SUD.
Ce hameau de Gambais est à 2 MINUTES DES COMMODITES, proximité de la N12 (2 mn, mais sans nuisances sonores), des transports en commun (GARE à 5 Kms) , écoles, collèges, et crèches, hypermarché (3 mn). HOUDAN à 5mn. Piscine 7 mn.
PERFORMANCE ENERGETIQUE : DPE C GES A
Montant estimé des dépenses annuelles d'énergie pour un usage standard entre 1320 et 1840 euros.

Prix de vente 450000 euros charges vendeurs.

Pour visiter et vous accompagner dans votre projet, contactez Rémi CAMUS, au [Coordonnées masquées] ou par courriel à [Coordonnées masquées]
Selon l'article L.561.5 du Code Monétaire et Financier, pour l'organisation de la visite, la présentation d'une pièce d'identité vous sera demandée.
Cette vente est garantie 12 mois.

Cette présente annonce a été rédigée sous la responsabilité éditoriale de Rémi CAMUS agissant sous le statut d'agent commercial immatriculé au RSAC VERSAILLES 890 493 927 auprès de la SAS PROPRIETES PRIVEES, au capital de 44 920 euros, ZAC LE CHÊNE FERRÉ - 44 ALLÉE DES CINQ CONTINENTS 44120 VERTOU; SIRET 487 624 777 00040, RCS Nantes. Carte professionnelle Transactions sur immeubles et fonds de commerce (T) et Gestion immobilière (G) n° CPI 44[Coordonnées masquées]10 388 délivrée par la CCI Nantes - Saint Nazaire. Compte séquestre n°3[Coordonnées masquées] BPA SAINT-SEBASTIEN-SUR-LOIRE (44230) ; Garantie GALIAN - 89 rue de la Boétie, 75008 Paris - n°28137 J pour 2 000 000 euros pour T et 120 000 euros pour G. Assurance responsabilité civile professionnelle par MMA Entreprise n° de police 120.137.405

Mandat réf : 381723 - Le professionnel garantit et sécurise votre projet immobilier.

Rémi CAMUS (EI) Agent Commercial - Numéro RSAC : VERSAILLES 890 493 927 - .
Voir plus

Référence: 424554RCM
Honoraires à la charge du vendeur.
DPE
A
B
C
D
E
F
G
GES
A
B
C
D
E
F
G

Prêt immobilier

Vous souhaitez connaître votre capacité d’emprunt et trouver le meilleur crédit immobilier ?
Réaliser une simulation gratuite

Maison à MAULETTE
Maison à MAULETTE
Maison à MAULETTE
Maison à MAULETTE
Maison à MAULETTE
Maison à MAULETTE
Maison à MAULETTE
Maison à MAULETTE
Maison à MAULETTE
Maison à MAULETTE
Maison à MAULETTE
Maison à MAULETTE
Maison à MAULETTE
Maison à MAULETTE
Maison à MAULETTE
Maison à MAULETTE
Maison à MAULETTE
Maison à MAULETTE
Ce site est protégé par reCAPTCHA la Politique de confidentialité et les Conditions d’utilisation de Google s’appliquent.
Obtenir un prêt immobilier au meilleur taux ?

En poursuivant votre navigation sans modifier vos paramètres, vous acceptez l'utilisation de cookies susceptibles de réaliser des statistiques de visite. Cliquez ici pour plus d'informations