Plateau à aménager tarare

— Tarare 69170 —
175 000 €
77 m²
3 pièces

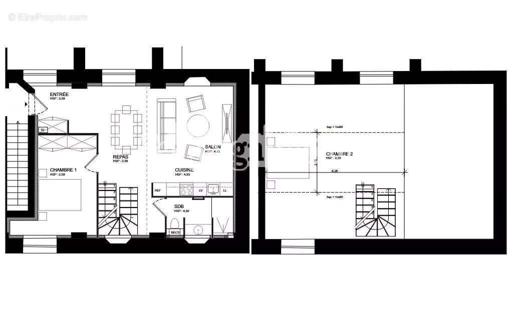
Idéal INVESTISSEUR ou 1er achat !! CAMPAGN'IMMO vous propose un plateau de 77.04 m² habitables (107.5 m² de surface de plancher), en duplex, à aménager, au deuxième étage d'une ancienne chapelle au centre-ville à proximité des écoles et des commerces.
Après travaux, cet appartement pourra offrir une cuisine ouverte sur le séjour, trois chambres et une salle d'eau.
Bien soumis au régime de la copropriété.
D'autres lots sont disponibles. Contactez nous pour trouver votre bonheur!
Voir plus

Référence: 5344-7
Barème des honoraires

Prêt immobilier

Vous souhaitez connaître votre capacité d’emprunt et trouver le meilleur crédit immobilier ?
Réaliser une simulation gratuite

Appartement à TARARE
Appartement à TARARE
Appartement à TARARE
Appartement à TARARE
Appartement à TARARE
Ce site est protégé par reCAPTCHA la Politique de confidentialité et les Conditions d’utilisation de Google s’appliquent.
Obtenir un prêt immobilier au meilleur taux ?

En poursuivant votre navigation sans modifier vos paramètres, vous acceptez l'utilisation de cookies susceptibles de réaliser des statistiques de visite. Cliquez ici pour plus d'informations