Bénéficiez des services de nos partenaires locaux soigneusement sélectionnés
pour vous accompagner dans votre parcours d'achat immobilier

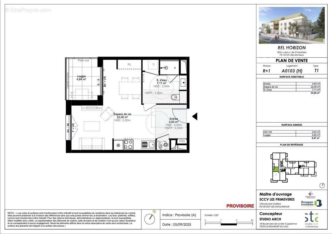
Appartement 34m² à challes-les-eaux

— Challes-Les-Eaux 73190 —
197 000 €
34 m²
1 pièce
ascenseuraccès handicapé

Nos partenaires locaux
‼ POUR PLUS DE CHOIX DE T1, T2, T3, T4 OU T5 N'HESITEZ PAS A NOUS CONTACTER NOUS NE METTONS PAS TOUT EN PUBLICATION MAIS NOUS AVONS A VENDRE TOUT LE PROGRAMME ‼

Appartement T1 de 34m² au 1er étage sur 4 AVEC ascenseur.

Il se compose :
- Entrée avec rangements
- Séjour / cuisine de 22m² avec porte fenêtre coulissante en accès direct sur la loggia
- loggia de 5m²
- Salle d'eau / toilettes de 7,11m² avec espace pour la machine à laver



Ce qu'il faut savoir sur ce bien :
* Orientation SUD-OUEST
* Chauffage par radiateur électrique basse consommation
* Volets roulants électriques
* Normes PMR
* Cuisine non comprise
* DEUX Places de stationnement privative en sous-sol INCLUS


Les informations sur les risques auxquels ce bien est exposé sont disponibles sur le site Géorisques : www.georisques.gouv.fr


Prix : 197 000 Euros honoraires charge vendeur

FRAIS DE NOTAIRE REDUIT 2,5% ENVIRON

CONTACTEZ L'AGENCE POUR RESERVER DES MAINTENANT ET AVOIR LE CHOIX DE L'EMPLACEMENT IDEAL

°°°°°°°°°°°°°°°°°°°°°°°°°°°°°°°°°°°°°°°°°°°°°°

Disponible au 3ème trimestre 2027

‍ Promoteur BOUYGUES IIMMOBILIER

Vivre à Challes-les-Eaux, charmante ancienne ville thermale avec toutes ses commodités, Casino, Cinéma et bons restaurants.
Une commune ou il fait bon vivre

Aux portes de Chambéry, découvrez BEL HORIZON, une résidence élégante nichée entre les massifs des Bauges et de la Chartreuse.

À seulement 400 mètres du centre-ville, profitez d’un cadre paisible, proche de tout : écoles, commerces, loisirs, transports et axes routiers.
Entre tranquillité, modernité et nature, cette copropriété vous invite à écrire un nouveau chapitre de vie dans un cadre exceptionnel

BEL HORIZON, c’est :
• 36 appartements neufs du 2 au 5 pièces
• Tous prolongés d’un balcon, d’une terrasse ou d’un jardin privatif
• Une résidence intimiste (2 bâtiments de 2 étages + attique)
• Des prestations de qualité : confort thermique et acoustique, parking sécurisé en sous-sol

Les atouts qui font la différence :
• Éligible au PTZ (Prêt à Taux Zéro) pour votre résidence principale
• Investissement pérenne dans un secteur prisé
• Frais de notaire réduits
• Une valeur patrimoniale garantie dans une commune recherchée

~~~~~~~~~~~~~~~~~~~~
' ́ ̀ ́

ᥲ̀ ᑲɩᥱᥒtôt…

« . »
L’équipe du Touvet : Julie, Sandra, Claire et Léo.

Cimm Immobilier
Place de L'église
38660 Le TOUVET

[Coordonnées masquées]
[Coordonnées masquées]
www.le-touvet.cimm.com
~~~~~~~~~~~~~~~~~~~~

‍ SAS JCM - 55 av. Jean Kuntzmann - Inovallée - 38330 MONTBONNOT
Capital 10 000 € - RCS GRENOBLE Carte Pro Transactions CPI délivrée par la CCI de Grenoble. Honoraires à la charge du vendeur - Julie SOBRAL - Agent commercial - EI - RSAC Grenoble 832427702 - RCS 4[Coordonnées masquées]291 - Caisse de garantie QBE L'immobilier vous intéresse, contactez-moi
Voir plus

Référence: 86361680
Barème des honoraires

Prêt immobilier

Vous souhaitez connaître votre capacité d’emprunt et trouver le meilleur crédit immobilier ?
Réaliser une simulation gratuite

Appartement à CHALLES-LES-EAUX
Appartement à CHALLES-LES-EAUX
Appartement à CHALLES-LES-EAUX
Appartement à CHALLES-LES-EAUX
Appartement à CHALLES-LES-EAUX
Appartement à CHALLES-LES-EAUX
Appartement à CHALLES-LES-EAUX
Ce site est protégé par reCAPTCHA la Politique de confidentialité et les Conditions d’utilisation de Google s’appliquent.
Obtenir un prêt immobilier au meilleur taux ?

En poursuivant votre navigation sans modifier vos paramètres, vous acceptez l'utilisation de cookies susceptibles de réaliser des statistiques de visite. Cliquez ici pour plus d'informations