Immeuble calais 3 pièce(s) 70 m2

— Calais 62100 —
144 000 €
70 m²
3 pièces

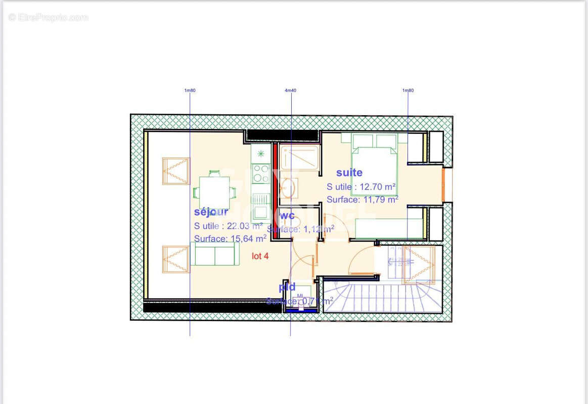
CALAIS NORD / SPÉCIAL INVESTISSEUR RÉSIDENCE AIRBNB DERNIER LOT A VENDRE Lot de deux appartements de type 2 vendus sous forme de plateaux à aménager : T2 avec balcon de 34,68 m² au 2ème étage T2 de 35,65 m² au 3ème étage Un seul compteur Linky et un compteur d'eau pour l'ensemble du lot. Les parties communes seront entièrement refaites à neuf, à la charge du vendeur. Emplacement idéal au coeur de Calais Nord, secteur très recherché pour la location courte durée type Airbnb. Porte d'entrée équipée d'un digicode sécurisé, spécialement adapté à ce type d'exploitation. Très bon potentiel de rentabilité après aménagement. Informations et visites : O6.71.38.2O.11 MALET Charles Copropriété de 4 lots (Pas de procédure en cours). Charges annuelles : 500 euros.
Voir plus

Bien en copropriété. Nombre de lots : 4. Charges de copropriété : 500 €.
Honoraires à la charge du vendeur.
Barème des honoraires

Prêt immobilier

Vous souhaitez connaître votre capacité d’emprunt et trouver le meilleur crédit immobilier ?
Réaliser une simulation gratuite

Appartement à CALAIS
Appartement à CALAIS
Appartement à CALAIS
Appartement à CALAIS
Appartement à CALAIS
Appartement à CALAIS
Appartement à CALAIS
Appartement à CALAIS
Appartement à CALAIS
Appartement à CALAIS
Ce site est protégé par reCAPTCHA la Politique de confidentialité et les Conditions d’utilisation de Google s’appliquent.
Obtenir un prêt immobilier au meilleur taux ?

En poursuivant votre navigation sans modifier vos paramètres, vous acceptez l'utilisation de cookies susceptibles de réaliser des statistiques de visite. Cliquez ici pour plus d'informations