Bénéficiez des services de nos partenaires locaux soigneusement sélectionnés
pour vous accompagner dans votre parcours d'achat immobilier

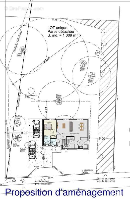
Terrain 999m² à pessac

— Pessac 33600 —
172 000 €
999 m²

Nos partenaires locaux
Iad France - Jessica Santacreu vous propose : Je vous propose ce terrain viabilisé d'environ 1009 m² à Pessac Quartier France Alouette, proche de toutes les commodités (Commerces, Tram / train à 1.3 km et CHU Haut-Lévêque).
Façade d'environ 14,75 m - Profondeur d'environ 44 m - Plan de zonage UM21 Emprise bâtie 8 % - possibilité R + 1
Libre constructeur.
Vous êtes intéressés, n'hésitez pas à me contacter.

Honoraires d'agence à la charge du vendeur.
Bien non soumis au DPE. Les informations sur les risques auxquels ce bien est exposé, y compris l'obligation légale de débroussaillement, sont disponibles sur le site Géorisques : http://www.georisques.gouv.fr.
La présente annonce immobilière a été rédigée sous la responsabilité éditoriale de Mme Jessica Santacreu mandataire indépendant en immobilier (sans détention de fonds), agent commercial de la SAS I@D France immatriculé au RSAC de Bordeaux sous le numéro 928140102, titulaire de la carte de démarchage immobilier pour le compte de la société I@D France SAS.
Informations LOI ALUR :
Honoraires charge vendeur. (gedeon_6727_32006620)
Voir plus

Référence: 1864522
Honoraires à la charge du vendeur.

Prêt immobilier

Vous souhaitez connaître votre capacité d’emprunt et trouver le meilleur crédit immobilier ?
Réaliser une simulation gratuite

Photo 1 - Terrain à PESSAC
Photo 1
Photo 2 - Terrain à PESSAC
Photo 2
Photo 3 - Terrain à PESSAC
Photo 3
Ce site est protégé par reCAPTCHA la Politique de confidentialité et les Conditions d’utilisation de Google s’appliquent.
Obtenir un prêt immobilier au meilleur taux ?

En poursuivant votre navigation sans modifier vos paramètres, vous acceptez l'utilisation de cookies susceptibles de réaliser des statistiques de visite. Cliquez ici pour plus d'informations