Maison 104m² à saint-francois

— Saint-Francois 97118 —
400 000 €
104 m² / 398 m²
5 pièces
parkingbalcon/terrassejardinpiscine

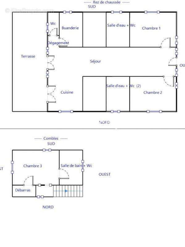
97118 - SAINT FRANÇOIS - VILLA DE TYPE 4 de 104 m2 SURFACES HABITABLES - PISCINE - JACCUZI - TROIS SUITES PARENTALES - VARANGUE - JARDIN ARBORE ABSENCE DE VIS A VIS - 5 MINUTES DES PLAGES DE SAINT FRANÇOIS - AUTONOME EN EAU ET ELECTRICITE !

"Vous Rêvez d'une vie idyllique sous le soleil de la Guadeloupe ? Efficity vous présente cette magnifique villa type 4 de 104 m², un véritable havre de paix situé à Saint-François. Son architecture s'inspire de la tradition guadeloupéenne, offrant de larges ouvertures et une conception favorisant la fraîcheur et la convivialité.

Laissez-vous séduire par :

Trois Suites Élégantes : Dont deux suites parentales avec dressing au rez-de-chaussée pour un confort optimal, et une troisième suite à l'étage offrant intimité et espace.
Une Cuisine Ouverte et Équipée : Un espace de vie convivial et moderne, parfait pour recevoir et partager des moments chaleureux.
Un Oasis de Détente Privatif : Profitez d'une piscine invitante et d'un jacuzzi relaxant pour des instants de pur bonheur, en toute intimité grâce à l'absence de vis-à-vis.
L'Autonomie au Quotidien : Villa autonome en eau et en électricité, un atout considérable pour votre confort et votre budget.
Un Intérieur Climatisé et Vendu Meublé : Posez vos valises et profitez immédiatement de votre nouveau chez-vous. La fibre est également installée pour rester connecté.
L'extérieur est une invitation à la douceur de vivre guadeloupéenne : Une grande varangue, véritable pièce de vie extérieure couverte, vous attend pour vos repas en plein air et vos moments de détente à l'ombre, avec vue sur la piscine, le jacuzzi et son jardin luxuriant.

Un emplacement idéal : Bénéficiez à la fois de la tranquillité et de la proximité des commodités : plages paradisiaques, écoles, commerces, lieux touristiques et centres de loisirs sont facilement accessibles.

Prestations de Qualité : Climatisation, ventilateurs de plafond, citerne d'eau de 600 litres, chauffe-eau solaire, portail électrique, stationnement intérieur pour 3 véhicules en enfilade et une place privative.

Informations Financières : Taxe foncière : 2474 €.

Opportunité Exceptionnelle : Que vous recherchiez une résidence principale confortable, une maison de vacances de rêve ou un investissement locatif à forte rentabilité, cette villa est un bien rare à ne pas manquer !

N'attendez plus pour découvrir ce joyau !

Contactez dès maintenant Madame Angélique VILLEDIEU (en métropole actuellement) au [Coordonnées masquées] ou par email : [Coordonnées masquées] ou Monsieur Fabrice MONDELICE au [Coordonnées masquées] ou par email : [Coordonnées masquées] pour obtenir plus d'informations et organiser votre visite
Les informations sur les risques auxquels ce bien est exposé sont disponibles sur le site Georisque : georisques. gouv. fr
Fabrice Mondelice - EI - est Agent Commercial mandataire en immobilier, immatriculé au Registre Spécial des Agents Commerciaux du Tribunal de Commerce de POINTE A PITRE sous le n°851565721.
Siège social du mandant : effiCity, 48 avenue de Villiers - 75017 PARIS - Société par Actions Simplifiée, société au capital de 132 373,05 euros, immatriculée au RCS Paris 497 617 746 et titulaire de la Carte professionnelle CPI 75[Coordonnées masquées]02 025 - CCI Paris IDF - Caisse de Garantie : GALIAN Assurances 89 rue de la Boétie 75008 Paris
Voir plus

Référence: 193663
Honoraires à la charge du vendeur.
Barème des honoraires
DPE
A
B
C
D
E
F
G
GES
A
B
C
D
E
F
G

Prêt immobilier

Vous souhaitez connaître votre capacité d’emprunt et trouver le meilleur crédit immobilier ?
Réaliser une simulation gratuite

Maison à SAINT-FRANCOIS
Maison à SAINT-FRANCOIS
Maison à SAINT-FRANCOIS
Maison à SAINT-FRANCOIS
Maison à SAINT-FRANCOIS
Maison à SAINT-FRANCOIS
Maison à SAINT-FRANCOIS
Maison à SAINT-FRANCOIS
Maison à SAINT-FRANCOIS
Maison à SAINT-FRANCOIS
Maison à SAINT-FRANCOIS
Maison à SAINT-FRANCOIS
Maison à SAINT-FRANCOIS
Maison à SAINT-FRANCOIS
Maison à SAINT-FRANCOIS
Maison à SAINT-FRANCOIS
Maison à SAINT-FRANCOIS
Ce site est protégé par reCAPTCHA la Politique de confidentialité et les Conditions d’utilisation de Google s’appliquent.
Obtenir un prêt immobilier au meilleur taux ?

En poursuivant votre navigation sans modifier vos paramètres, vous acceptez l'utilisation de cookies susceptibles de réaliser des statistiques de visite. Cliquez ici pour plus d'informations