Bénéficiez des services de nos partenaires locaux soigneusement sélectionnés
pour vous accompagner dans votre parcours d'achat immobilier

Maison type 5 113 m2 sur terrain de 1529 m2

— Millau 12100 —
276 000 €
113 m²
5 pièces
parking

Nos partenaires locaux
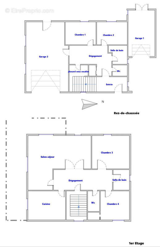
À découvrir sans tarder, cette maison type 5 de 113 m2 habitables, édifiée en 1965 sur un terrain généreux et piscinable de 1529 m2, nichée sur les hauteurs de la ville dans un cadre calme et verdoyant.

En rez-de-chaussée, elle se compose de deux chambres (10,20 m2 et 11,10 m2), d’une salle de bain, d’un WC séparé ainsi que d’une cave.
À l’étage, vous profiterez d’un séjour lumineux de 29,10 m2 ouvrant sur une terrasse, d’une cuisine de 14,50 m2 (facilement ouvrable sur le séjour grâce à une simple cloison), de deux chambres supplémentaires (9,90 m2 et 10,50 m2), d’une salle d’eau et d’un WC indépendant.
Côté annexes, deux garages (23,80 m2 et 32,70 m2) complètent l’ensemble.
La maison a bénéficié d’un entretien régulier et d’améliorations notables :

Menuiseries en double vitrage
Pompe à chaleur installée en 2022
Poêle à granulés dans le séjour (2019)
Toiture refaite en 2006, avec charpente béton voligée et excellente isolation des combles
Combles exploitables offrant un potentiel d’agrandissement
Cuve de 30 m³ avec pompe immergée, idéale pour l’arrosage de vos espaces verts


Un lieu de vie agréable, fonctionnel et plein de potentiel, qui n’attend plus que vos idées de rafraîchissement pour révéler tout son charme !
Cette annonce vous est proposée par GUIDICE Romain - EIRL - NoRSAC: 841730393, Enregistré à Greffe du tribunal de commerce de Rodez - Annonce rédigée et publiée par un Agent Mandataire -
Voir plus

Référence: 95286
Honoraires à la charge du vendeur.
Barème des honoraires
DPE
A
B
C
D
E
F
G
GES
A
B
C
D
E
F
G

Prêt immobilier

Vous souhaitez connaître votre capacité d’emprunt et trouver le meilleur crédit immobilier ?
Réaliser une simulation gratuite

Maison à MILLAU
Maison à MILLAU
Maison à MILLAU
Maison à MILLAU
Maison à MILLAU
Maison à MILLAU
Maison à MILLAU
Maison à MILLAU
Maison à MILLAU
Maison à MILLAU
Maison à MILLAU
Maison à MILLAU
Maison à MILLAU
Maison à MILLAU
Maison à MILLAU
Maison à MILLAU
Maison à MILLAU
Maison à MILLAU
Maison à MILLAU
Maison à MILLAU
Ce site est protégé par reCAPTCHA la Politique de confidentialité et les Conditions d’utilisation de Google s’appliquent.
Obtenir un prêt immobilier au meilleur taux ?

En poursuivant votre navigation sans modifier vos paramètres, vous acceptez l'utilisation de cookies susceptibles de réaliser des statistiques de visite. Cliquez ici pour plus d'informations