Terrain 320m² à pia

— Pia 66380 —
106 000 €
320 m²

Iad France - David Giralt vous propose : Nouveauté TERRAIN PIA

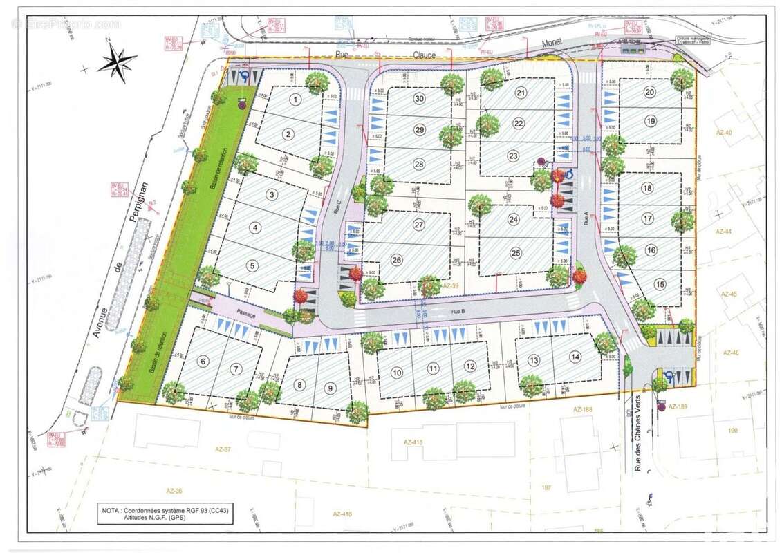
Lotissement « le STANDING «

Opportunité à saisir, je vous envoie par mail le plan du lotissement, les parcelles disponibles ainsi que le règlement du lotissement, afin de vous positionner dessus.

Immobilisation de la parcelle = 1000e

30 Terrains constructibles de 229 m² à 472 m².

DE 315e / M2 à 353e / M2

Magnifique parcelle en 2 et 3 faces, constructibles viabilisées, possibilités de R + 1 hauteur max de 10m sur toutes les parcelles, clôture de 1m80 sur le voisinage, 1m50 sur la rue.

CES coefficient d'emprise au sol = 120 m² max environ selon la taille de la parcelle.
SDP surface de plancher = 220 m² max environ selon la taille de la parcelle.

David Giralt iad France, votre conseiller Immobilier sur PIA et alentours.

Avis de valeur OFFERT dans tout les Pyrénées-Orientales.

Me contacter uniquement pour plus d'informations, exclusivité David Giralt iad France, agence et particulier ne pas déranger les propriétaires, entièrement ouvert au partage d'affaire, merci de votre compréhension.


Honoraires d'agence à la charge du vendeur.
Bien non soumis au DPE. Les informations sur les risques auxquels ce bien est exposé, y compris l'obligation légale de débroussaillement, sont disponibles sur le site Géorisques : http://www.georisques.gouv.fr.
La présente annonce immobilière a été rédigée sous la responsabilité éditoriale de M David Giralt mandataire indépendant en immobilier (sans détention de fonds), agent commercial de la SAS I@D France immatriculé au RSAC de PERPIGNAN sous le numéro 900486309, titulaire de la carte de démarchage immobilier pour le compte de la société I@D France SAS.
Informations LOI ALUR :
Honoraires charge vendeur. (gedeon_6727_32011538)
Voir plus

Référence: 1843566
Honoraires à la charge du vendeur.

Prêt immobilier

Vous souhaitez connaître votre capacité d’emprunt et trouver le meilleur crédit immobilier ?
Réaliser une simulation gratuite

Photo 1 - Terrain à PIA
Photo 1
Photo 2 - Terrain à PIA
Photo 2
Photo 3 - Terrain à PIA
Photo 3
Photo 4 - Terrain à PIA
Photo 4
Photo 5 - Terrain à PIA
Photo 5
Photo 6 - Terrain à PIA
Photo 6
Ce site est protégé par reCAPTCHA la Politique de confidentialité et les Conditions d’utilisation de Google s’appliquent.
Obtenir un prêt immobilier au meilleur taux ?

En poursuivant votre navigation sans modifier vos paramètres, vous acceptez l'utilisation de cookies susceptibles de réaliser des statistiques de visite. Cliquez ici pour plus d'informations