Bénéficiez des services de nos partenaires locaux soigneusement sélectionnés
pour vous accompagner dans votre parcours d'achat immobilier

Maison 107m² à saint-medard-en-jalles

— Saint-Medard-En-Jalles 33160 —
440 000 €
107 m² / 902 m²
4 pièces
parkingbalcon/terrassejardinaccès handicapé

Nos partenaires locaux
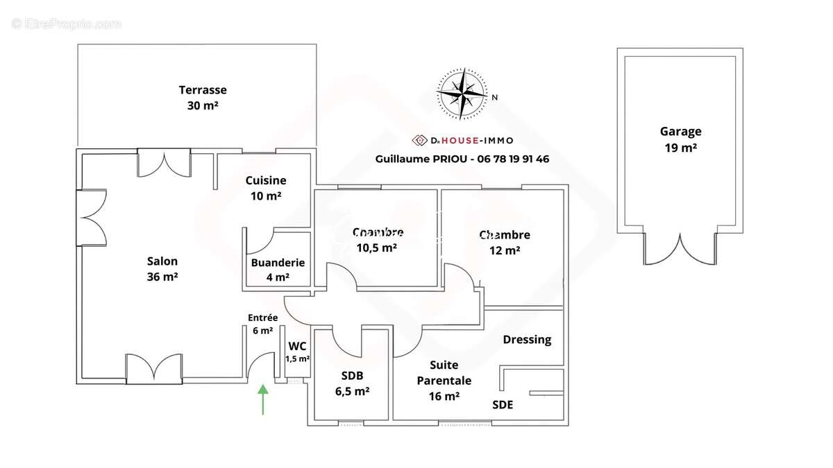
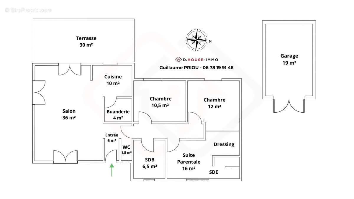
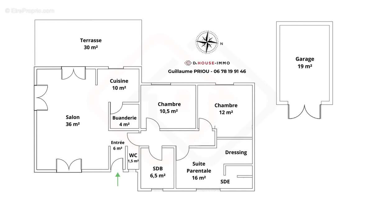
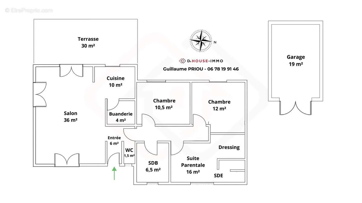
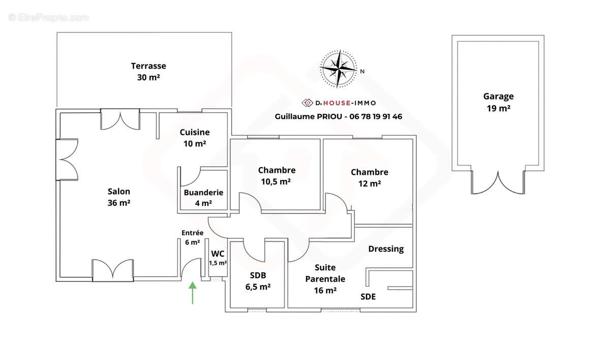
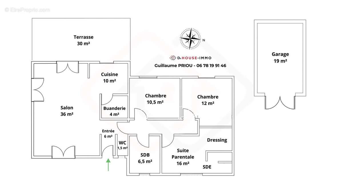
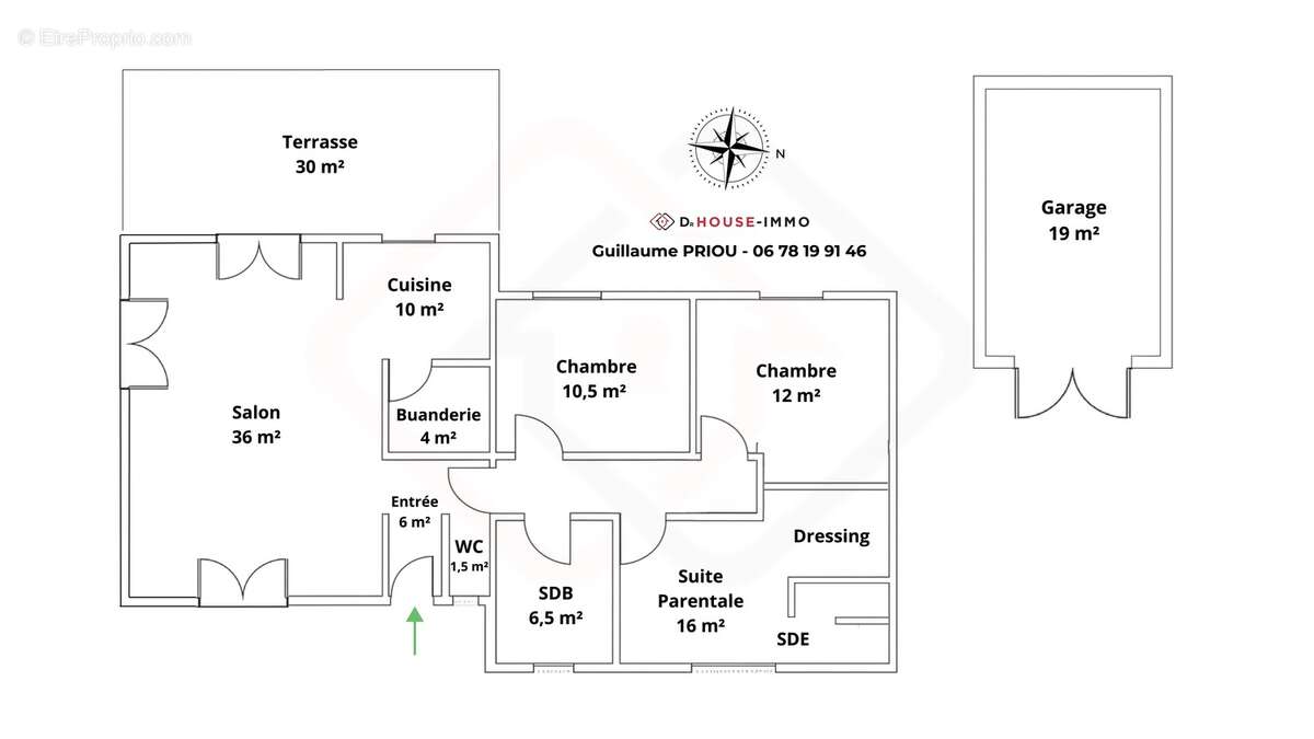
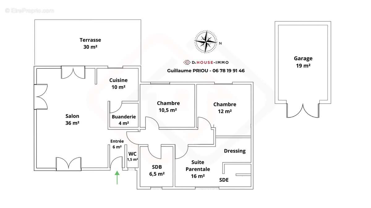
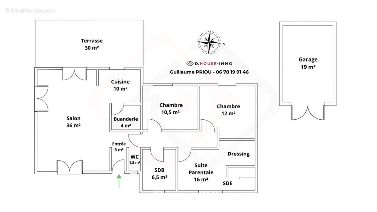
Située dans le quartier résidentiel prisé de Caupian, à Saint-Médard-en-Jalles, cette maison de plain-pied construite en 2011 offre environ 107 m² habitables sur une belle parcelle arborée de plus de 900 m².

Le secteur, calme et verdoyant, propose un cadre de vie recherché à proximité immédiate des écoles, commerces et pistes cyclables, tout en restant proche des axes de circulation.

Dès l’entrée, vous serez séduit par les volumes et la luminosité de la pièce de vie, rendue possible par une triple exposition Est, Sud et Ouest et une hauteur sous plafond de 4,5 mètres. Le séjour s’ouvre sur une cuisine américaine moderne et parfaitement équipée, prolongée par un cellier buanderie attenant, très pratique au quotidien.

Le coin nuit, bien séparé, distribue trois chambres, dont une suite parentale avec dressing et salle d’eau privative. Une salle de bains indépendante et des toilettes séparées complètent cet espace. Les combles, accessibles par un escalier escamotable, offrent une surface de 39 m² exploitables avec une hauteur sous plafond confortable permettant de nombreux rangements.

À l’extérieur, le terrain plat est piscinable et agrémenté d’une grande terrasse en bois de 30 m² exposée ouest, idéale pour profiter des fins de journée ou pour partager des moments conviviaux en famille ou entre amis. L’allée bitumée permet de stationner plusieurs véhicules et un abri de jardin de 19 m², pouvant faire office de garage, vient compléter l’ensemble.

La maison, à ossature bois avec un bardage récemment entretenu, dispose d’une pompe à chaleur air/eau assurant un excellent confort thermique et une consommation maîtrisée. Les menuiseries en PVC et aluminium sont équipées de double vitrage, les volets sont roulants électriques et la ventilation est de type simple flux.

Ce bien, parfaitement entretenu, ne nécessite aucun travaux et offre un cadre de vie paisible, fonctionnel et chaleureux. Ce bien vous est présenté par Guillaume Priou, votre conseiller indépendant Dr House Immo.
Voir plus

Référence: 107570DHI2736
Honoraires à la charge du vendeur.
Barème des honoraires
DPE
A
B
C
D
E
F
G
GES
A
B
C
D
E
F
G

Prêt immobilier

Vous souhaitez connaître votre capacité d’emprunt et trouver le meilleur crédit immobilier ?
Réaliser une simulation gratuite

Maison à SAINT-MEDARD-EN-JALLES
Maison à SAINT-MEDARD-EN-JALLES
Maison à SAINT-MEDARD-EN-JALLES
Maison à SAINT-MEDARD-EN-JALLES
Maison à SAINT-MEDARD-EN-JALLES
Maison à SAINT-MEDARD-EN-JALLES
Maison à SAINT-MEDARD-EN-JALLES
Maison à SAINT-MEDARD-EN-JALLES
Maison à SAINT-MEDARD-EN-JALLES
Maison à SAINT-MEDARD-EN-JALLES
Maison à SAINT-MEDARD-EN-JALLES
Maison à SAINT-MEDARD-EN-JALLES
Maison à SAINT-MEDARD-EN-JALLES
Maison à SAINT-MEDARD-EN-JALLES
Maison à SAINT-MEDARD-EN-JALLES
Maison à SAINT-MEDARD-EN-JALLES
Maison à SAINT-MEDARD-EN-JALLES
Maison à SAINT-MEDARD-EN-JALLES
Maison à SAINT-MEDARD-EN-JALLES
Maison à SAINT-MEDARD-EN-JALLES
Maison à SAINT-MEDARD-EN-JALLES
Maison à SAINT-MEDARD-EN-JALLES
Maison à SAINT-MEDARD-EN-JALLES
Maison à SAINT-MEDARD-EN-JALLES
Maison à SAINT-MEDARD-EN-JALLES
Maison à SAINT-MEDARD-EN-JALLES
Maison à SAINT-MEDARD-EN-JALLES
Maison à SAINT-MEDARD-EN-JALLES
Maison à SAINT-MEDARD-EN-JALLES
Maison à SAINT-MEDARD-EN-JALLES
Maison à SAINT-MEDARD-EN-JALLES
Maison à SAINT-MEDARD-EN-JALLES
Maison à SAINT-MEDARD-EN-JALLES
Maison à SAINT-MEDARD-EN-JALLES
Maison à SAINT-MEDARD-EN-JALLES
Maison à SAINT-MEDARD-EN-JALLES
Maison à SAINT-MEDARD-EN-JALLES
Maison à SAINT-MEDARD-EN-JALLES
Maison à SAINT-MEDARD-EN-JALLES
Maison à SAINT-MEDARD-EN-JALLES
Maison à SAINT-MEDARD-EN-JALLES
Maison à SAINT-MEDARD-EN-JALLES
Maison à SAINT-MEDARD-EN-JALLES
Maison à SAINT-MEDARD-EN-JALLES
Maison à SAINT-MEDARD-EN-JALLES
Maison à SAINT-MEDARD-EN-JALLES
Maison à SAINT-MEDARD-EN-JALLES
Maison à SAINT-MEDARD-EN-JALLES
Maison à SAINT-MEDARD-EN-JALLES
Maison à SAINT-MEDARD-EN-JALLES
Maison à SAINT-MEDARD-EN-JALLES
Maison à SAINT-MEDARD-EN-JALLES
Maison à SAINT-MEDARD-EN-JALLES
Maison à SAINT-MEDARD-EN-JALLES
Maison à SAINT-MEDARD-EN-JALLES
Maison à SAINT-MEDARD-EN-JALLES
Maison à SAINT-MEDARD-EN-JALLES
Maison à SAINT-MEDARD-EN-JALLES
Maison à SAINT-MEDARD-EN-JALLES
Maison à SAINT-MEDARD-EN-JALLES
Maison à SAINT-MEDARD-EN-JALLES
Maison à SAINT-MEDARD-EN-JALLES
Maison à SAINT-MEDARD-EN-JALLES
Maison à SAINT-MEDARD-EN-JALLES
Maison à SAINT-MEDARD-EN-JALLES
Maison à SAINT-MEDARD-EN-JALLES
Maison à SAINT-MEDARD-EN-JALLES
Maison à SAINT-MEDARD-EN-JALLES
Maison à SAINT-MEDARD-EN-JALLES
Maison à SAINT-MEDARD-EN-JALLES
Maison à SAINT-MEDARD-EN-JALLES
Maison à SAINT-MEDARD-EN-JALLES
Maison à SAINT-MEDARD-EN-JALLES
Maison à SAINT-MEDARD-EN-JALLES
Maison à SAINT-MEDARD-EN-JALLES
Maison à SAINT-MEDARD-EN-JALLES
Maison à SAINT-MEDARD-EN-JALLES
Maison à SAINT-MEDARD-EN-JALLES
Maison à SAINT-MEDARD-EN-JALLES
Maison à SAINT-MEDARD-EN-JALLES
Maison à SAINT-MEDARD-EN-JALLES
Maison à SAINT-MEDARD-EN-JALLES
Maison à SAINT-MEDARD-EN-JALLES
Maison à SAINT-MEDARD-EN-JALLES
Maison à SAINT-MEDARD-EN-JALLES
Maison à SAINT-MEDARD-EN-JALLES
Maison à SAINT-MEDARD-EN-JALLES
Maison à SAINT-MEDARD-EN-JALLES
Maison à SAINT-MEDARD-EN-JALLES
Maison à SAINT-MEDARD-EN-JALLES
Ce site est protégé par reCAPTCHA la Politique de confidentialité et les Conditions d’utilisation de Google s’appliquent.
Obtenir un prêt immobilier au meilleur taux ?

En poursuivant votre navigation sans modifier vos paramètres, vous acceptez l'utilisation de cookies susceptibles de réaliser des statistiques de visite. Cliquez ici pour plus d'informations