Bénéficiez des services de nos partenaires locaux soigneusement sélectionnés
pour vous accompagner dans votre parcours d'achat immobilier

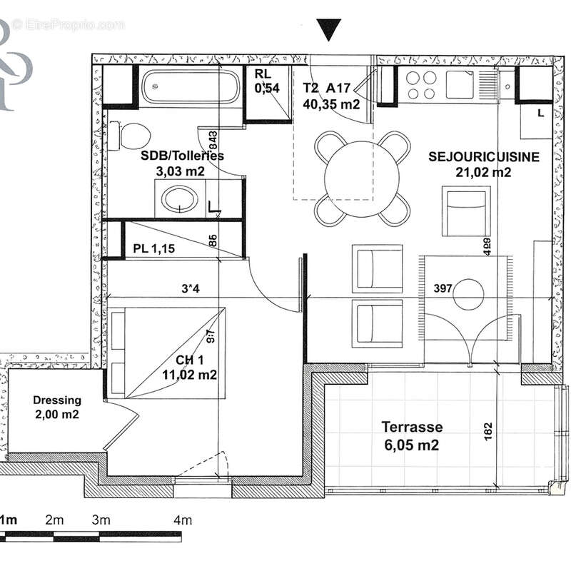
Appartement craponne 2 pièce(s) 40.88 m2

— Craponne 69290 —
199 000 €
41 m²
2 pièces

Nos partenaires locaux
Au coeur d'un environnement classé et arboré, découvrez ce bel appartement de 2 pièces situé au 1er et dernier étage d'une petite résidence contemporaine édifiée en 2016. L'espace de vie, s'ouvre sur une agréable loggia de 6,25 m² exposée plein Sud, parfaite pour profiter de la lumière. La cuisine ouverte, la chambre de 12,34 m² équipée d'un dressing, la salle de bain et les WC séparés composent un ensemble fonctionnel et harmonieux. Un garage fermé complète ce bien. La copropriété, construite selon les normes RT2012 (ancien label BBC), offre un cadre de vie serein, entre nature et modernité . Iéal pour un premier achat ou un investissement de qualité. Contact : [Coordonnées masquées]. Copropriété de 156 lots - dont 50 lots habitation. (Pas de procédure en cours). Charges annuelles : 984 euros.
Voir plus

Bien en copropriété. Nombre de lots : 156. Charges de copropriété : 984 €.
Honoraires à la charge du vendeur.
Barème des honoraires
DPE
A
B
C
D
E
F
G
GES
A
B
C
D
E
F
G

Prêt immobilier

Vous souhaitez connaître votre capacité d’emprunt et trouver le meilleur crédit immobilier ?
Réaliser une simulation gratuite

Appartement à CRAPONNE
Appartement à CRAPONNE
Appartement à CRAPONNE
Appartement à CRAPONNE
Appartement à CRAPONNE
Appartement à CRAPONNE
Appartement à CRAPONNE
Appartement à CRAPONNE
Appartement à CRAPONNE
Appartement à CRAPONNE
Appartement à CRAPONNE
Appartement à CRAPONNE
Ce site est protégé par reCAPTCHA la Politique de confidentialité et les Conditions d’utilisation de Google s’appliquent.
Obtenir un prêt immobilier au meilleur taux ?

En poursuivant votre navigation sans modifier vos paramètres, vous acceptez l'utilisation de cookies susceptibles de réaliser des statistiques de visite. Cliquez ici pour plus d'informations