Bénéficiez des services de nos partenaires locaux soigneusement sélectionnés
pour vous accompagner dans votre parcours d'achat immobilier

Ravissante maison t3 de 89 m2 - avec jardin, terrasse et garage - quartier les couëts à bouguenais

— Bouguenais 44340 —
280 000 €
89 m² / 481 m²
3 pièces
parkingbalcon/terrassejardin

Nos partenaires locaux
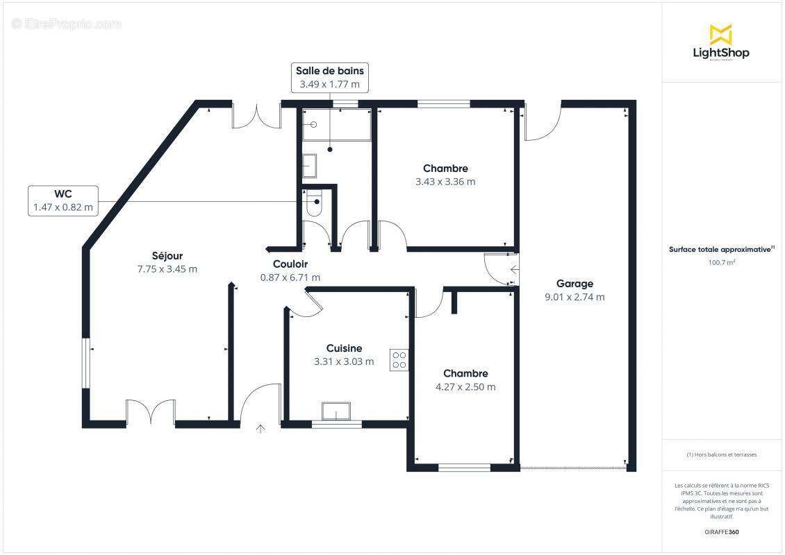
Hosman vous propose à la vente cette ravissante maison non mitoyenne et de plain pied de 89 m2 (78 m2 habitables + 10 m2 cabanon (cadastré) + 25 m2 de garage) avec 2 chambres située dans le quartier Les Couëts à Bouguenais.

Vous serez à 5 min à pied de la ligne 3 de tram (arrêt Les Couëts) et vous pourrez rejoindre le centre ville de Nantes en 20 min.
Cette maison de 1995 a été rénovée en partie en 2023 (peinture, isolation des combles, VMC, salle d'eau).
Vous pourrez profiter d'un jardin clos, arboré et sans vis-à-vis sur une parcelle de 481 m2.

Planifiez facilement votre visite en choisissant le créneau qui vous convient depuis le site d'Hosman.

La maison se compose comme suit :
- D'une belle pièce de vie traversante de 30 m2 dotée d'un poêle à granulés (installé en 2023) et donnant sur le jardin avant et sur la terrasse et le jardin arrière.
- D'une cuisine séparée de 12 m2. Possibilité d'abattre la cloison de la cuisine pour créer une très grande pièce de vie de 50 m2.
- De deux chambres
- D'une salle d'eau (refaite en 2024).
- De toilettes séparées.

Un garage de 25 m2 complète ce bien (avec emplacement pour les machines). Vous pourrez également stationner un véhicule devant la maison.

Le système de chauffage et eau chaude est assuré par une chaudière gaz (remplacée en 2018).

Vous pourrez profiter d'un beau jardin avec plusieurs arbres fruitiers ainsi que d'une terrasse de 30m2.
Un cabanon en bois est présent pour le stockage des outils.
La taxe foncière annuelle est de 1180 €.

La ligne 3 de tram (arrêt Les Couëts) se trouve à 5 minutes à pied de la maison. Vous pourrez rejoindre le centre ville de Nantes en 20 min.
Vous serez à proximité à pied des commodités : écoles, supermarché, boulangerie, pharmacie...

Hosman s'efforce de réinventer l'agence immobilière en offrant un service innovant et transparent aux acheteurs et aux vendeurs. Nos frais d'agence sont de 7900 euros fixes à la charge du vendeur.

Si vous êtes un professionnel de l'immobilier (agent, mandataire ou chasseur immobilier), sachez que toutes les annonces Hosman sont ouvertes à la collaboration. N'hésitez pas à nous contacter pour en discuter.
Voir plus

Référence: f15265
Honoraires à la charge du vendeur.
DPE
A
B
C
D
E
F
G
GES
A
B
C
D
E
F
G

Prêt immobilier

Vous souhaitez connaître votre capacité d’emprunt et trouver le meilleur crédit immobilier ?
Réaliser une simulation gratuite

Maison à BOUGUENAIS
Maison à BOUGUENAIS
Maison à BOUGUENAIS
Maison à BOUGUENAIS
Maison à BOUGUENAIS
Maison à BOUGUENAIS
Maison à BOUGUENAIS
Maison à BOUGUENAIS
Maison à BOUGUENAIS
Maison à BOUGUENAIS
Maison à BOUGUENAIS
Maison à BOUGUENAIS
Maison à BOUGUENAIS
Maison à BOUGUENAIS
Maison à BOUGUENAIS
Maison à BOUGUENAIS
Maison à BOUGUENAIS
Ce site est protégé par reCAPTCHA la Politique de confidentialité et les Conditions d’utilisation de Google s’appliquent.
Obtenir un prêt immobilier au meilleur taux ?

En poursuivant votre navigation sans modifier vos paramètres, vous acceptez l'utilisation de cookies susceptibles de réaliser des statistiques de visite. Cliquez ici pour plus d'informations