Bénéficiez des services de nos partenaires locaux soigneusement sélectionnés
pour vous accompagner dans votre parcours d'achat immobilier

Maison à vendre 5 pièces LA GACILLY (56)

— La Gacilly 56200 —
188 100 €
125 m² / 175 m²
5 pièces
parkingbalcon/terrasse

Nos partenaires locaux
À vendre – Belle maison en pierre à proximité de La Gacilly.

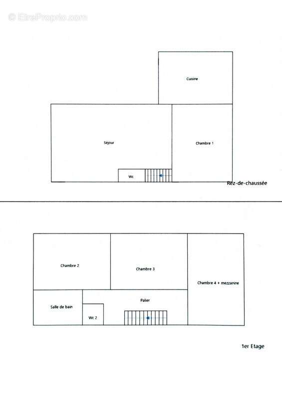
Coup de cœur assuré pour cette maison de charme de 125 m², nichée dans un hameau paisible à quelques minutes de La Gacilly.

Vous y trouverez un vaste séjour lumineux de 40 m² avec poêle à bois, une cuisine aménagée de 22 m² et une chambre au rez-de-chaussée de 15m².

À l'étage, trois belles chambres, dont une avec mezzanine, une salle de bains avec baignoire d'angle et un agréable toit-terrasse d'environ 21 m² pour profiter des beaux jours.

Le tout sur un jardin clos d'environ 150 m², facile d'entretien.

Les plus : panneaux solaires récents (5 kWc), fibre installée, environnement calme et verdoyant.

Le tout dans une commune engagée dans la transition écologique et reconnue pour ses initiatives environnementales (La Gacilly, cité botanique et berceau d'Yves Rocher).

En option : terrain non attenant de 2 000 m², dont 500 m² constructibles, avec garage. Les honoraires d'agence sont à la charge de l'acquéreur, soit 4,50% TTC du prix hors honoraires.
Les informations sur les risques auxquels ce bien est exposé sont disponibles sur le site Géorisques : www. georisques. gouv. fr.

Réseau Immobilier CAPIFRANCE - Votre agent commercial (RSAC N°924 832 124 - Greffe de RENNES) Yvan PERSON Entrepreneur Individuel [Coordonnées masquées] - Réf.925944
Voir plus

Référence: 340933709819
DPE
A
B
C
D
E
F
G
GES
A
B
C
D
E
F
G
Maison à LA GACILLY
Maison à LA GACILLY
Maison à LA GACILLY
Maison à LA GACILLY
Maison à LA GACILLY
Maison à LA GACILLY
Maison à LA GACILLY
Maison à LA GACILLY
Maison à LA GACILLY
Maison à LA GACILLY
Maison à LA GACILLY
Maison à LA GACILLY
Maison à LA GACILLY
Géorisques

Les informations sur les risques auxquels ce bien est exposé sont disponibles sur le site Géorisques : www.georisques.gouv.fr

Ce site est protégé par hCaptcha Politique de confidentialité et Conditions d’utilisation s’appliquent.

En poursuivant votre navigation sans modifier vos paramètres, vous acceptez l'utilisation de cookies susceptibles de réaliser des statistiques de visite. Cliquez ici pour plus d'informations