Bénéficiez des services de nos partenaires locaux soigneusement sélectionnés
pour vous accompagner dans votre parcours d'achat immobilier

Maison individuelle

— Montigny-Lencoup 77520 —
120 000 €
93 m² / 919 m²
5 pièces
parkingbalcon/terrassejardin

Nos partenaires locaux
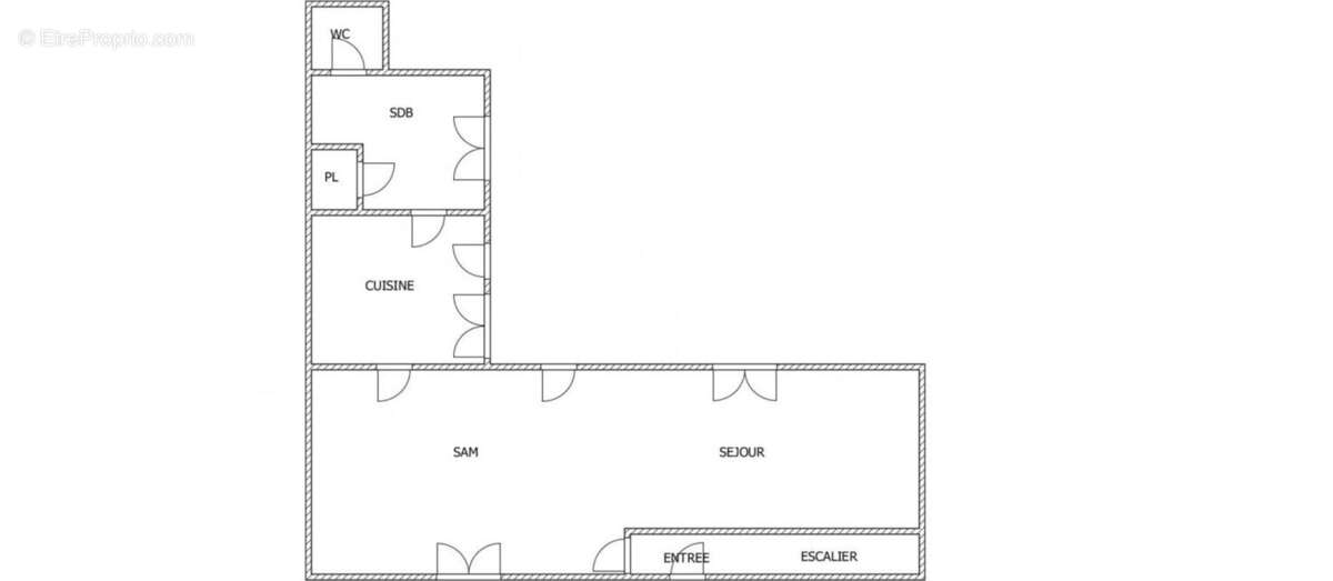
77520 - MONTIGNY LENCOUP – CHARMANTE MAISON DE VILLAGE – MAISON 5 PIÈCES, 2/3 CHAMBRES DE 93 M2 (89.67 M2 carrez) - effiCity, l'agence qui estime votre bien en ligne vous propose, cette jolie maison sur un TERRAIN clos et sans vis-à-vis de 919 m². En RDC, elle se compose d'une entrée, d'un séjour/SAM avec CHEMINEE, d'une cuisine, d'une SDB, d'un wc séparé. Au 1er étage, ce bien dispose de 2 CHAMBRES et d'un bureau. Un garage de plus de 22 m2 avec grenier, un abri de jardin, un puit, un barbecue en dur et un chenil complètent ce bien. Située à une heure de Paris par l'A5 sortie à 10 kms, proche de Fontainebleau, de Moret sur Loing, de Provins. A PROXIMITE gare SNCF (Paris en 47 mn), commerces, écoles dans le village et secondaire à 10 mn (ramassage scolaire). A noter, idéal première acquisition. A voir !
Les informations sur les risques auxquels ce bien est exposé sont disponibles sur le site Georisque : georisques. gouv. fr
Arnaud des Diguères - EI - est Agent Commercial mandataire en immobilier, immatriculé au Registre Spécial des Agents Commerciaux du Tribunal de Commerce de Melun sous le n°818554768.
Siège social du mandant : effiCity, 48 avenue de Villiers - 75017 PARIS - Société par Actions Simplifiée, société au capital de 132 373,05 euros, immatriculée au RCS Paris 497 617 746 et titulaire de la Carte professionnelle CPI 75[Coordonnées masquées]02 025 - CCI Paris IDF - Caisse de Garantie : GALIAN Assurances 89 rue de la Boétie 75008 Paris
Voir plus

Référence: 194858
Honoraires à la charge du vendeur.
Barème des honoraires
DPE
A
B
C
D
E
F
G
GES
A
B
C
D
E
F
G

Prêt immobilier

Vous souhaitez connaître votre capacité d’emprunt et trouver le meilleur crédit immobilier ?
Réaliser une simulation gratuite

Maison à MONTIGNY-LENCOUP
Maison à MONTIGNY-LENCOUP
Maison à MONTIGNY-LENCOUP
Maison à MONTIGNY-LENCOUP
Maison à MONTIGNY-LENCOUP
Maison à MONTIGNY-LENCOUP
Maison à MONTIGNY-LENCOUP
Maison à MONTIGNY-LENCOUP
Maison à MONTIGNY-LENCOUP
Maison à MONTIGNY-LENCOUP
Ce site est protégé par reCAPTCHA la Politique de confidentialité et les Conditions d’utilisation de Google s’appliquent.
Obtenir un prêt immobilier au meilleur taux ?

En poursuivant votre navigation sans modifier vos paramètres, vous acceptez l'utilisation de cookies susceptibles de réaliser des statistiques de visite. Cliquez ici pour plus d'informations