Bénéficiez des services de nos partenaires locaux soigneusement sélectionnés
pour vous accompagner dans votre parcours d'achat immobilier

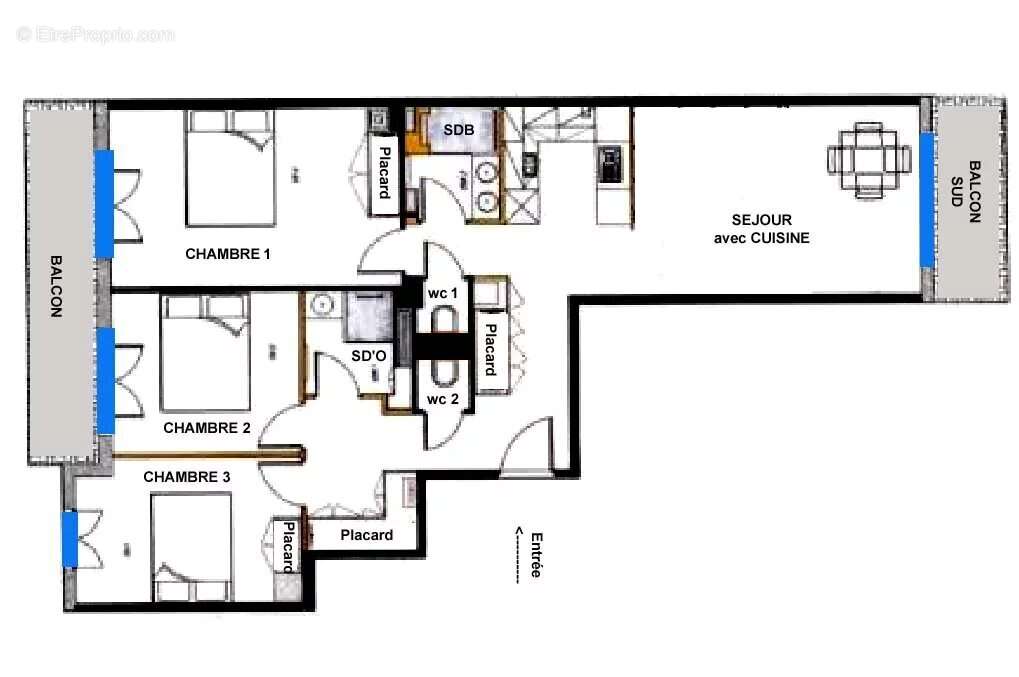
Appartement 4p rénové standing cimiez

— Nice 06000 —
595 000 €
78 m²
4 pièces
balcon/terrasse

Nos partenaires locaux
Proche parc des Arênes. Belle résidence parfaitement entretenue année 50 avec gardien.
4P traversant de 78m2 refait neuf, prestations de qualité, vue panoramique ville et mer. 4e étage avec ascenseur.
Se compose : 1 entrée avec placard, 1 séjour avec cuisine ouverte équipée, 3 chambres avec placards, 2 salles d'eau, 2 wc séparés. Climatisation. Double vitrage. Store éléctrique.
1 cave. Chauffage collectif, eau individuelle. Charges 200€/mois. T.F. 1400€.
Syndic pro, pas de procédure, 150 lots. Honoraires à charge vendeur.
Possibilité achat garage en sous-sol dans résidence.
Les informations sur les risques auxquels ce bien est exposé sont disponibles sur le site Géorisques : 'georisques.gouv.fr'.
Voir plus

Référence: 15
Bien en copropriété. Nombre de lots : 150. Charges de copropriété : 2600 €.
Honoraires à la charge du vendeur.
Barème des honoraires
DPE
A
B
C
D
E
F
G
GES
A
B
C
D
E
F
G

Prêt immobilier

Vous souhaitez connaître votre capacité d’emprunt et trouver le meilleur crédit immobilier ?
Réaliser une simulation gratuite

Appartement à NICE
Appartement à NICE
Appartement à NICE
Appartement à NICE
Appartement à NICE
Appartement à NICE
Appartement à NICE
Appartement à NICE
Appartement à NICE
Appartement à NICE
Appartement à NICE
Appartement à NICE
Appartement à NICE
Ce site est protégé par reCAPTCHA la Politique de confidentialité et les Conditions d’utilisation de Google s’appliquent.
Obtenir un prêt immobilier au meilleur taux ?

En poursuivant votre navigation sans modifier vos paramètres, vous acceptez l'utilisation de cookies susceptibles de réaliser des statistiques de visite. Cliquez ici pour plus d'informations