Bénéficiez des services de nos partenaires locaux soigneusement sélectionnés
pour vous accompagner dans votre parcours d'achat immobilier

Pornic - gare

— Pornic 44210 —
480 000 €
115 m²
4 pièces
parking

Nos partenaires locaux
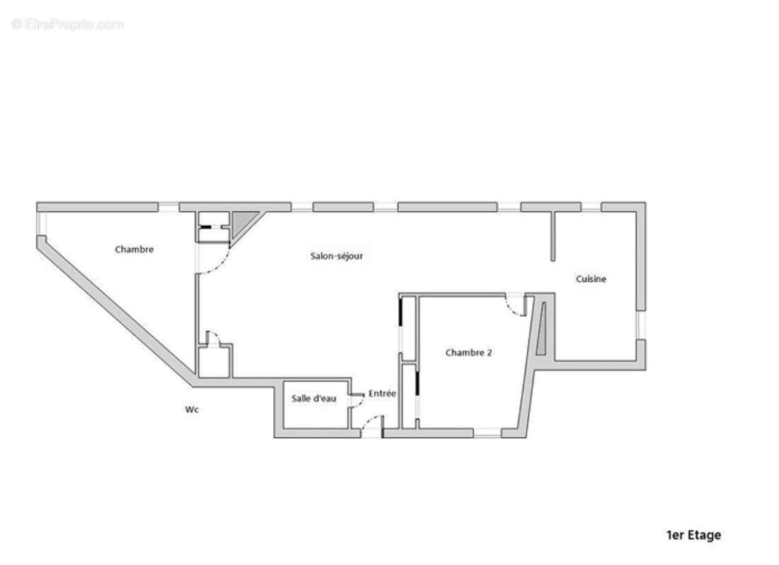
COTE IMMOBILIER PORNIC GARE ET PLAGE DE LA SOURCE A PIED Ensemble immobilier comprenant deux appartements. Rez de chaussée: entrée dans pièce à vivre avec cuisine semi ouverte, salle d'eau, WC, lingerie, chambre. Etage : pièce de vie, cuisine aménagée et équipée, 2 chambres, WC, salle d'eau, LE PLUS : GARAGE, STATIONNEMENT. EXCLUSIVITE COTE IMMOBILIER PORNIC 9 rue de Verdun 44210 PORNIC [Coordonnées masquées] www.cote-immobilier.com (4.35 % honoraires TTC à la charge de l'acquéreur.)
Voir plus

Référence: 3946
Honoraires d'agence de 4.35% à la charge de l'acquéreur
Barème des honoraires
DPE
A
B
C
D
E
F
G
GES
A
B
C
D
E
F
G

Prêt immobilier

Vous souhaitez connaître votre capacité d’emprunt et trouver le meilleur crédit immobilier ?
Réaliser une simulation gratuite

Appartement à PORNIC
Appartement à PORNIC
Appartement à PORNIC
Appartement à PORNIC
Appartement à PORNIC
Appartement à PORNIC
Appartement à PORNIC
Appartement à PORNIC
Appartement à PORNIC
Appartement à PORNIC
Appartement à PORNIC
Appartement à PORNIC
Appartement à PORNIC
Ce site est protégé par reCAPTCHA la Politique de confidentialité et les Conditions d’utilisation de Google s’appliquent.
Obtenir un prêt immobilier au meilleur taux ?

En poursuivant votre navigation sans modifier vos paramètres, vous acceptez l'utilisation de cookies susceptibles de réaliser des statistiques de visite. Cliquez ici pour plus d'informations