Bénéficiez des services de nos partenaires locaux soigneusement sélectionnés
pour vous accompagner dans votre parcours d'achat immobilier

Appartement 52m² à luce

— Luce 28110 —
119 500 €
52 m²
2 pièces
parkingbalcon/terrasseascenseur

Nos partenaires locaux
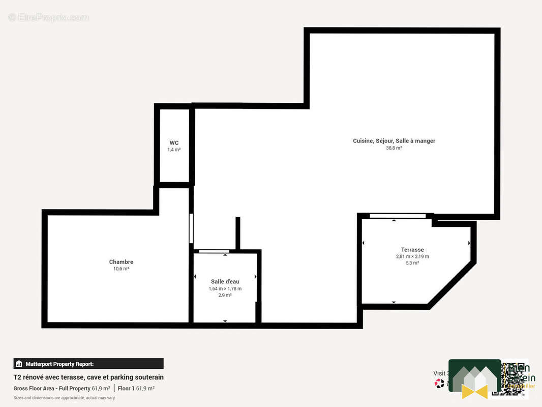
SPÉCIAL INVESTISSEUR – APPARTEMENT T2 AVEC TERRASSE ET PARKING

Découvrez cet appartement entièrement rénové, idéal pour un investissement locatif serein.
Situé à seulement 1 km de la place des Épars et à proximité immédiate de Chartres, il est vendu avec une vue belle terrasse, une cave et un stationnement en sous terrain.

EN QUELQUES CHIFFRES
- Rendement brut : 4,7%
- Valeur locative : 550€/mois
- Taxe foncière : 1 113€/an - taxe d'enlèvement des ordures ménagères déduites
- Charges de copropriétés : 45€/mois - quote-part investisseur
- Effort de Trésorerie Requis : 229€/mois toutes charges déduites - avec apport des frais de notaire

AGENCEMENT
- Une belle entrée avec placard
- Un séjour de 38m² avec cuisine ouverte
- Une chambre avec dressing
- Une salle d'eau
- Un WC indépendant

ESPACE EXTERIEUR
- Terrasse couverte
- Place de parking privative en souterrain.
- Cave privative

COTE CONFORT
- Ascenseur
- Double vitrage PVC + volets roulants manuels
- Très bonne luminosité
- Cave

COPROPRIETE
La copropriété date de 1990 et ne réserve aucun travaux onéreux. Les charges comprennent :
- eau froide
- eau chaude
- chauffage
- l'entretien des espaces communs
- les honoraires de syndic

L'EMPLACEMENT
Un emplacement idéal à Lucé, aux portes de Chartres, dans un environnement urbain dynamique. Vous pourrez bénéficier de tout les commerces et loisirs de la ville ainsi que le réseau filibus au pied de l'appartement.

N'hésitez pas à contacter votre agent au Noeud Pap' pour obtenir plus d'informations et visiter cet appartement !
Découvrez tous nos biens 'spécial investisseur' sur bienserein.fr, dans l'onglet Investir.

Honoraires à la charge du vendeur. Dans une copropriété de 177 lots. Quote-part moyenne du budget prévisionnel 2 265 €/an. Aucune procédure n'est en cours. Classe énergie D, Classe climat D Montant moyen estimé des dépenses annuelles d'énergie pour un usage standard, établi à partir des prix de l'énergie de l'année 2021 : entre 520.00 et 790.00 €. Les informations sur les risques auxquels ce bien est exposé sont disponibles sur le site Géorisques : georisques.gouv.fr.
Voir plus

Référence: VA2786-BIENSEREIN28
Bien en copropriété. Nombre de lots : 177. Charges de copropriété : 2265 €.
Honoraires à la charge du vendeur.
Barème des honoraires
DPE
A
B
C
D
E
F
G
GES
A
B
C
D
E
F
G

Prêt immobilier

Vous souhaitez connaître votre capacité d’emprunt et trouver le meilleur crédit immobilier ?
Réaliser une simulation gratuite

Appartement à LUCE
Appartement à LUCE
Appartement à LUCE
Appartement à LUCE
Appartement à LUCE
Appartement à LUCE
Appartement à LUCE
Appartement à LUCE
Ce site est protégé par reCAPTCHA la Politique de confidentialité et les Conditions d’utilisation de Google s’appliquent.
Obtenir un prêt immobilier au meilleur taux ?

En poursuivant votre navigation sans modifier vos paramètres, vous acceptez l'utilisation de cookies susceptibles de réaliser des statistiques de visite. Cliquez ici pour plus d'informations