Haut chambrun maison190 m² dépendance de 40 m² avec garage

— Nice 06100 —
900 000 €
230 m² / 664 m²
8 pièces
parkingbalcon/terrassejardin

Maison Niçoise de charme dominante, située à Nice dans le secteur Haut Chambrun 230 m² habitables dont une dépendance de 40 m².
Cette maison d'exception au style affirmé de 188 m² habitables sur trois niveaux plus un chalet indépendant de 40 m², le tout sur 664 m² de terrain arboré.
A rénover ou redorer selon vos gouts, de part son style des années 70, elle offre un potentiel remarquable pour créer un lieu de vie citadin en pleine nature
et surtout au calme !!
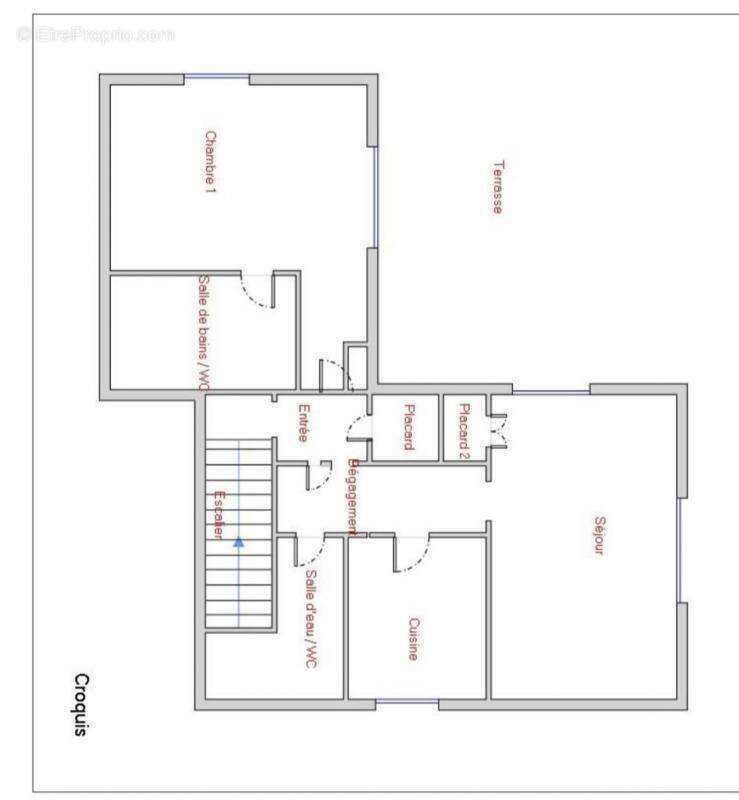
En rez-de-jardin, un duplex de 139 m² avec une belle terrasse plein sud et son style très seventies !
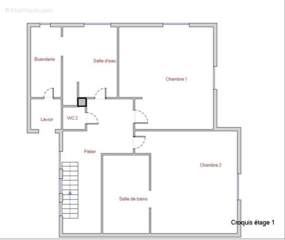
Le 2 ème étage configuré en appartement indépendant bénéficie de 49 m² au sol et surtout une belle vue mer avec une belle terrasse de 12 m2 exposée ouest pour profiter de bons moments de détente.
Et enfin une dépendance de 40 m² dans le jardin, idéal pour du locatif , accueillir des amis, famille ou éventuellement un espace professionnel.
Un bel espace vert vous accueille pour profiter de calme et sérénité, de taille idéale pour un entretien minimum.
Et la cerise sur le gâteau !!! Ce garage spacieux avec établi au pied de la maison qui saura se rendre très pratique !

L'accès principal se fait par un escalier extérieur qui “entretient la forme”, une chaise électrique est installée pour faciliter l'accès, aussi bien à l'extérieur qu'à l'intérieur de la maison.

« La maison étant divisée en deux appartements, le Diagnostic de Performance Énergétique a été réalisé séparément : le plus grand logement, d'une surface de 139 m², bénéficie d'un DPE classé C (163), tandis que le second appartement, d'une superficie de 49 m², présente un DPE classé F (349). »

Un projet rare pour amateurs d'architecture, familles ou investisseurs en quête d'un bien de caractère à réinventer.
Un bien rare sur le marché, à découvrir sans tarder ! Vidéo disponible
Honoraires Agence à la charge de l'acquéreur.
Voir plus

Référence: 26-534
Bien en copropriété. Nombre de lots : 3.
DPE
A
B
C
D
E
F
G
GES
A
B
C
D
E
F
G

Prêt immobilier

Vous souhaitez connaître votre capacité d’emprunt et trouver le meilleur crédit immobilier ?
Réaliser une simulation gratuite

Maison à NICE
Maison à NICE
Maison à NICE
Maison à NICE
Maison à NICE
Maison à NICE
Maison à NICE
Maison à NICE
Maison à NICE
Maison à NICE
Maison à NICE
Maison à NICE
Maison à NICE
Maison à NICE
Maison à NICE
Maison à NICE
Maison à NICE
Maison à NICE
Maison à NICE
Maison à NICE
Maison à NICE
Maison à NICE
Maison à NICE
Maison à NICE
Maison à NICE
Maison à NICE
Maison à NICE
Maison à NICE
Ce site est protégé par reCAPTCHA la Politique de confidentialité et les Conditions d’utilisation de Google s’appliquent.
Obtenir un prêt immobilier au meilleur taux ?

En poursuivant votre navigation sans modifier vos paramètres, vous acceptez l'utilisation de cookies susceptibles de réaliser des statistiques de visite. Cliquez ici pour plus d'informations