Bénéficiez des services de nos partenaires locaux soigneusement sélectionnés
pour vous accompagner dans votre parcours d'achat immobilier

Dpt (71), à vendre maison PP Chalon sur Saône

— Crissey 71530 —
199 999 €
134 m² / 717 m²
8 pièces
parking

Nos partenaires locaux
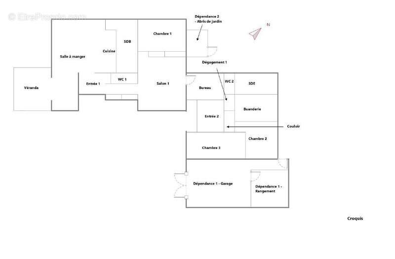
Isabelle Boidron, professionnelle de l'immobilier depuis plus de 15 ans sur le secteur, vous propose à la vente une maison de plain-pied située dans un lotissement calme, en première couronne de Chalon-sur-Saône. L'environnement est résidentiel, avec un accès rapide aux commodités, écoles, boulangerie, centre de santé, .... et aux axes principaux, ce qui permet de concilier tranquillité et vie quotidienne pratique.

La maison se distingue par une organisation intérieure qui sort des configurations classiques. Elle dispose notamment de deux entrées distinctes, offrant une souplesse d'usage intéressante. Cette particularité permet d'envisager différents projets : habitation familiale, espace dédié à une activité indépendante ou encore création de deux logements séparés, a partager ou à louer , sous réserve de réaménagements.

L'espace de vie principal se compose d'un vaste salon séjour, particulièrement lumineux grâce à ses ouvertures et prolongé par une véranda. Cet espace supplémentaire, utilisable toute l'année, s'intègre naturellement à la pièce de vie et permet d'agrandir la surface dédiée au séjour.
La cuisine, aménagée, est ouverte sur la pièce de vie et a son propre accès sur l'extérieur. Un second salon vient compléter l'ensemble, offrant une possibilité de séparation des espaces (salon principal, salle TV, coin lecture…).
La maison , dans sa configuration actuelle, comprend également un bureau et trois chambres permettant d'accueillir une famille ou de répartir les espaces de manière plus modulable.

Deux pièces d'eau sont disponibles : une salle de bain et une salle d'eau, deux sanitaires. Une pièce complémentaire peut être utilisée comme lingerie, buanderie ou dressing, selon l'organisation souhaitée.
L'ensemble offre une base fonctionnelle, même si un budget de rafraîchissement est à prévoir, notamment pour remettre certains éléments au goût du jour et adapter les espaces aux attentes actuelles.

À l'extérieur, le terrain d'environ 700 m² est arboré et propose un cadre agréable, sans contrainte excessive d'entretien. Une grande cour permet le stationnement de plusieurs véhicules. Le garage, de bonne dimension, constitue un espace supplémentaire appréciable, que ce soit pour le stationnement, le stockage, l'aménagement d'un atelier ou d'une salle de sport.

La construction en ossature bois apporte un confort thermique intéressant, et une facilité a moduler les espaces.
Chaudière gaz - huisseries ancien double vitrage - tout à l'égout -

Mon avis : une maison qui présente plusieurs possibilités d'aménagement, notamment grâce à ses deux accès indépendants. Elle peut s'adapter à un projet de vie ou à un projet mixte (habitation + activité, ou division en deux logements). Le potentiel est réel, à condition d'envisager les travaux nécessaires pour en tirer pleinement parti.
Appelez moi pour plus de détails.
Les honoraires sont à la charge du vendeur.
Les informations sur les risques auxquels ce bien est exposé sont disponibles sur le site Géorisques : www. georisques. gouv. fr.

Réseau Immobilier CAPIFRANCE - Votre agent commercial (RSAC N°532 236 403 - Greffe de CHALON SUR SAONE) Isabelle BOIDRON Entrepreneur Individuel [Coordonnées masquées] - Réf.926294
Voir plus

Référence: 340936829518
Honoraires à la charge du vendeur.
DPE
A
B
C
D
E
F
G
GES
A
B
C
D
E
F
G
Maison à CRISSEY
Maison à CRISSEY
Maison à CRISSEY
Maison à CRISSEY
Maison à CRISSEY
Maison à CRISSEY
Maison à CRISSEY
Maison à CRISSEY
Maison à CRISSEY
Maison à CRISSEY
Maison à CRISSEY
Maison à CRISSEY
Maison à CRISSEY
Maison à CRISSEY
Maison à CRISSEY
Maison à CRISSEY
Maison à CRISSEY
Maison à CRISSEY
Maison à CRISSEY
Géorisques

Les informations sur les risques auxquels ce bien est exposé sont disponibles sur le site Géorisques : www.georisques.gouv.fr

Ce site est protégé par hCaptcha Politique de confidentialité et Conditions d’utilisation s’appliquent.