Terrain 1409m² à vals-les-bains

— Vals-Les-Bains 07600 —
78 000 €
1 409 m²
jardin

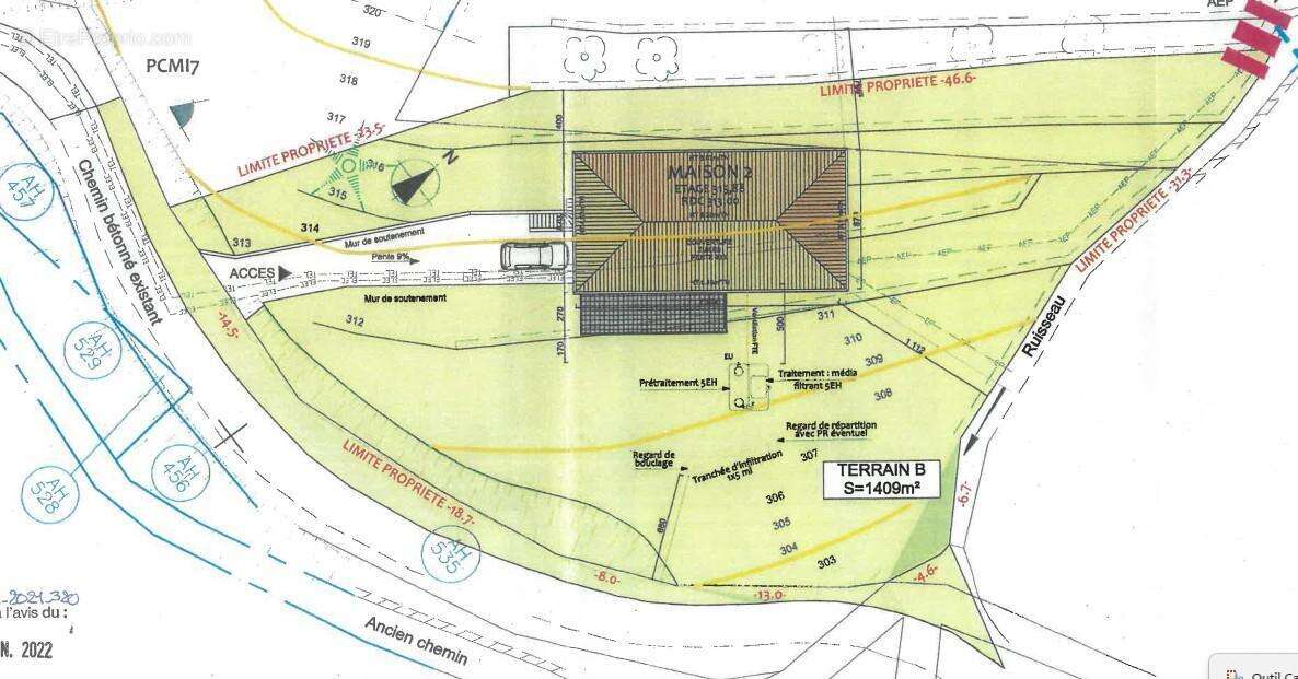
Terrain 1400 m² AVEC VUE à vendre sur Vals Les Bains avec permis pour maison RT 2012 - A 10 minutes d'AUBENAS, proche centre ville de VALS LES BAINS, ville thermale :
Nous proposons à la vente un terrain d'environ 1400 m² situé sur les hauteurs en position dominante face SUD, offrant une vue dégagée sur la nature environnante.
Ce terrain dispose d'un permis de construire valide pour une maison RT 2012, ce qui vous permettra de construire une habitation écologique et économique en énergie sans les nouvelles contraintes de permis de construire en RE2020.

En plus du permis, le terrassement de la plateforme et l'accès au terrain sont déjà réalisés, ce qui vous permettra de démarrer rapidement la construction de votre maison. Les réseaux sont en bordure, ce qui facilitera le raccordement. Enfin, l'assainissement individuel est à créer.

Ce terrain est idéalement situé à proximité des commerces et des écoles, tout en étant au calme et à l'écart de l'agitation urbaine. Si vous cherchez un endroit pour construire votre maison et profiter de la tranquillité de la nature, ce terrain est fait pour vous.

N'hésitez pas à nous contacter pour plus d'informations ou pour organiser une visite. Honoraires à la charge du vendeur.
Vous pouvez consulter les barèmes d'honoraires à l'adresse suivante : https://www.07aasi.fr/nos-honoraires
Voir plus

Référence: 1555

Prêt immobilier

Vous souhaitez connaître votre capacité d’emprunt et trouver le meilleur crédit immobilier ?
Réaliser une simulation gratuite

  - Terrain à VALS-LES-BAINS
  - Terrain à VALS-LES-BAINS
  - Terrain à VALS-LES-BAINS
Ce site est protégé par reCAPTCHA la Politique de confidentialité et les Conditions d’utilisation de Google s’appliquent.
Obtenir un prêt immobilier au meilleur taux ?

En poursuivant votre navigation sans modifier vos paramètres, vous acceptez l'utilisation de cookies susceptibles de réaliser des statistiques de visite. Cliquez ici pour plus d'informations