Maison 96m² à roquebrune-sur-argens

— Roquebrune-Sur-Argens 83520 —
438 000 €
96 m² / 70 m²
5 pièces
parkingbalcon/terrassejardin

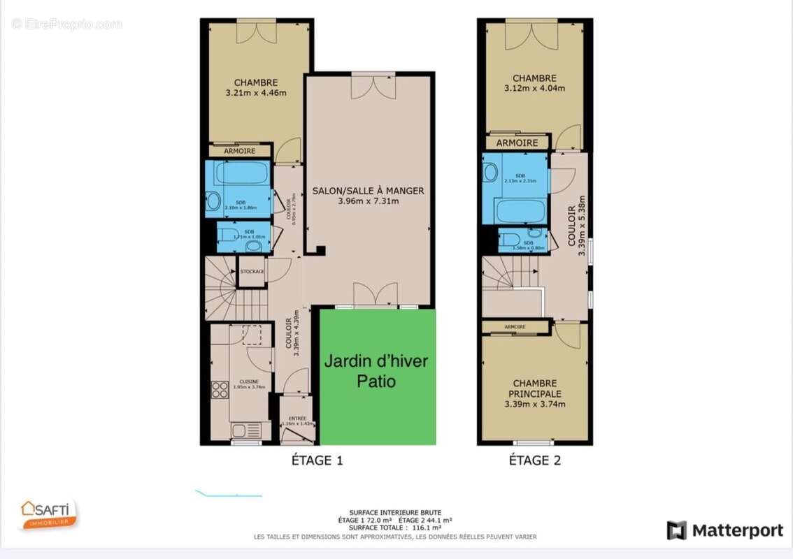
Maison 4 pièces de 96 ? m² carrez, mitoyenne des 2 côtés, et de 128 m² superficie utile (comprenant le garage) avec vue mer à Roquebrune-sur-Argens. Vue panoramique exceptionnelle sur l'Estérel et la Baie de Saint-Raphaël, en position dominante, dans une résidence avec piscine. Maison traversante avec plusieurs extérieurs : terrasse 40 ? m², jardin 40 ? m², patio, terrasse vue mer à l'étage. Grand séjour lumineux, suite parentale en rez-de-chaussée et 2 chambres à l'étage, clim réversible récente, excellente isolation (DPE performant). Grand garage avec mezzanine, faibles charges, environnement calme et sans vis-à-vis. À 15 ? min des plages, proche commodités et accès rapides Saint-Aygulf / Sainte-Maxime.
Visite possible 7 / 7 jours sur rendez-vous.

Le bien comprend 2 lots, et il est situé dans une copropriété de 300 lots (les charges courantes annuelles moyennes de copropriété sont de 860 ¤ et le syndicat des copropriétaires ne fait pas l'objet d'une procédure citée à l'article L. 721-1 du code de la construction et de l'habitation).

Les informations sur les risques auxquels ce bien est exposé sont disponibles sur le site Géorisques : www.georisques.gouv.fr
Prix de vente : 438 000 ¤
Honoraires charge vendeur

Contactez votre conseiller SAFTI : Myriam MARINO, Tél. : [Coordonnées masquées], E-mail : [Coordonnées masquées] - EI - Agent commercial immatriculé au RSAC de FREJUS sous le numéro 804 692 903.
Informations LOI ALUR :
Soumis au régime de copropriété.
Nombre de lots : 300.
Quote part annuelle(moyenne) : 860 euros.
Honoraires charge vendeur. (gedeon_26118_32023848)
Voir plus

Référence: 1482271
Bien en copropriété. Nombre de lots : 300. Charges de copropriété : 860 €.
Honoraires à la charge du vendeur.
Barème des honoraires
DPE
A
B
C
D
E
F
G
GES
A
B
C
D
E
F
G

Prêt immobilier

Vous souhaitez connaître votre capacité d’emprunt et trouver le meilleur crédit immobilier ?
Réaliser une simulation gratuite

Photo 1 - Maison à ROQUEBRUNE-SUR-ARGENS
Photo 1
Photo 2 - Maison à ROQUEBRUNE-SUR-ARGENS
Photo 2
Photo 3 - Maison à ROQUEBRUNE-SUR-ARGENS
Photo 3
Photo 4 - Maison à ROQUEBRUNE-SUR-ARGENS
Photo 4
Photo 5 - Maison à ROQUEBRUNE-SUR-ARGENS
Photo 5
Photo 6 - Maison à ROQUEBRUNE-SUR-ARGENS
Photo 6
Photo 7 - Maison à ROQUEBRUNE-SUR-ARGENS
Photo 7
Photo 8 - Maison à ROQUEBRUNE-SUR-ARGENS
Photo 8
Photo 9 - Maison à ROQUEBRUNE-SUR-ARGENS
Photo 9
Ce site est protégé par reCAPTCHA la Politique de confidentialité et les Conditions d’utilisation de Google s’appliquent.
Obtenir un prêt immobilier au meilleur taux ?

En poursuivant votre navigation sans modifier vos paramètres, vous acceptez l'utilisation de cookies susceptibles de réaliser des statistiques de visite. Cliquez ici pour plus d'informations