Bénéficiez des services de nos partenaires locaux soigneusement sélectionnés
pour vous accompagner dans votre parcours d'achat immobilier

Appartement 137m² à merignac

— Merignac 33700 —
760 000 €
137 m²
5 pièces
parkingbalcon/terrasseascenseuraccès handicapé

Nos partenaires locaux
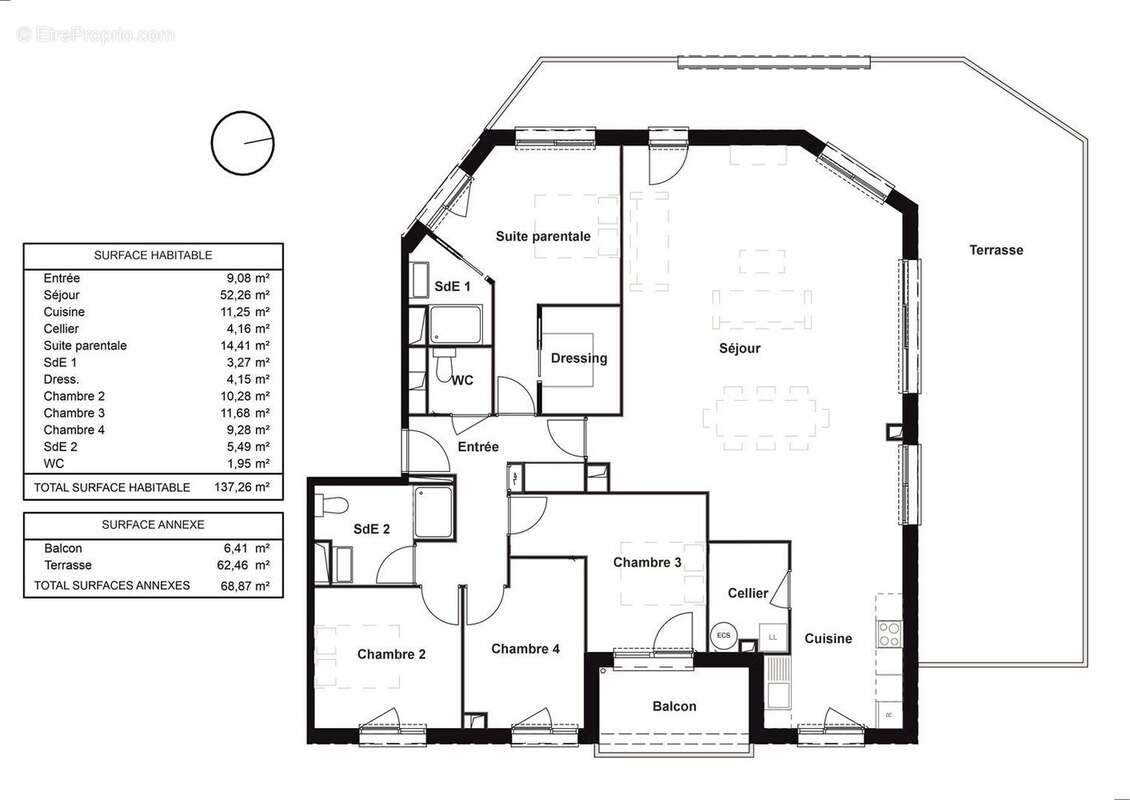
Bel appartement T5 neuf, de 137 m² habitables, ouvrant sur une terrasse de 69 m² au 3ème étage d'un petit immeuble de 22 logements, entre le parc Bourran et la place centrale de Mérignac. Il se compose d'une entrée, d'un grand séjour-cuisine de 64 m², ouvrant sur une terrasse de 62 m²; d'une belle suite parentale avec grand dressing et une salle d'eau, de trois chambres, d'une salle d'eau, d'un cellier et d'un wc. Conforme à la norme RT2012, il est équipé d'un chauffe eau thermodynamique et de radiateurs électriques à fluide caloporteur. Il dispose de deux places de stationnement au sous-sol. Le parc Bourran se trouve à 200 m, le cinéma, le tram et la médiathèque à 800 m. Charges mensuelles 205 euros, taxe foncière 2000 euros, honoraires d'agence à la charge du vendeur. Les risques auxquels ce bien est exposé sont disponibles sur le site Géorisques: www.géorisque.gouv.fr. Frais de notaire du neuf. L'appartement sera disponible au 3ème trimestre 2027.
Voir plus

Référence: 102
Bien en copropriété. Nombre de lots : 22. Charges de copropriété : 2460 €.
Honoraires à la charge du vendeur.
Barème des honoraires

Prêt immobilier

Vous souhaitez connaître votre capacité d’emprunt et trouver le meilleur crédit immobilier ?
Réaliser une simulation gratuite

Appartement à MERIGNAC
Appartement à MERIGNAC
Appartement à MERIGNAC
Appartement à MERIGNAC
Ce site est protégé par reCAPTCHA la Politique de confidentialité et les Conditions d’utilisation de Google s’appliquent.
Obtenir un prêt immobilier au meilleur taux ?

En poursuivant votre navigation sans modifier vos paramètres, vous acceptez l'utilisation de cookies susceptibles de réaliser des statistiques de visite. Cliquez ici pour plus d'informations