Bénéficiez des services de nos partenaires locaux soigneusement sélectionnés
pour vous accompagner dans votre parcours d'achat immobilier

Maison de maître d'exception à perpignan

— Perpignan 66000 —
700 000 €
305 m²
20 pièces
parkingbalcon/terrassejardin

Nos partenaires locaux
ÉLÉGANCE BOURGEOISE ET CHARME MÉDITERRANÉEN

À deux pas du cœur de Perpignan, cette maison de maître offre une rare alliance entre raffinement architectural et art de vivre méditerranéen. Véritable joyau, elle s'adresse aux passionnés de demeures de caractère, sensibles à l'authenticité et à la distinction.

UN HÉRITAGE ARCHITECTURAL INTEMPOREL

Construite avec des matériaux nobles et un souci du détail exceptionnel, cette propriété incarne l'élégance des maisons bourgeoises. Sa façade en briques apparentes, ses fenêtres ornées de grilles en fer forgé et ses hauts plafonds soulignent son caractère unique, empreint de charme et d'élégance.

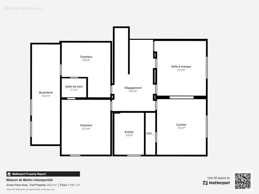
DES ESPACES DE VIE GÉNÉREUX

Avec ses 305 m² habitables, sur une parcelle totalisant 950 m² de terrain, cette demeure vous offre des volumes spacieux et une ambiance chaleureuse :

- Un séjour de 69 m², parfait pour recevoir avec raffinement.
- Une suite parentale de 40 m², véritable havre de paix et d'intimité.
- Trois chambres spacieuses et un bureau, offrant confort et flexibilité pour toute la famille.

DES EXTÉRIEURS INTIMISTES

Les espaces extérieurs incarnent l'art de vivre méditerranéen et se prêtent à des moments d'exception :

- Un jardin paysager et des terrasses baignées de soleil.
- Une piscine ensoleillée et sans vis-à-vis, un véritable écrin de sérénité pour se ressourcer en toute intimité.
- Une véranda de 55 m², idéale pour un atelier d'artiste ou des moments de détente hors du temps.
- Une toiture-terrasse de 124 m², offrant un cadre unique pour des réceptions en plein air ou des moments privés.

UN STATIONNEMENT OPTIMISÉ

Cette propriété propose des solutions de stationnement parfaitement adaptées à vos besoins :

- Un double garage de 54 m², spacieux et sécurisé, idéal pour accueillir plusieurs véhicules ou du rangement supplémentaire.
- Un second garage de 25 m², parfait pour un véhicule ou un stockage additionnel.
- Un espace de parking extérieur, capable d'accueillir confortablement plusieurs véhicules
Voir plus

Référence: 6220
Honoraires à la charge du vendeur.
DPE
A
B
C
D
E
F
G
GES
A
B
C
D
E
F
G

Prêt immobilier

Vous souhaitez connaître votre capacité d’emprunt et trouver le meilleur crédit immobilier ?
Réaliser une simulation gratuite

Maison à PERPIGNAN
Maison à PERPIGNAN
Maison à PERPIGNAN
Maison à PERPIGNAN
Maison à PERPIGNAN
Maison à PERPIGNAN
Maison à PERPIGNAN
Maison à PERPIGNAN
Maison à PERPIGNAN
Maison à PERPIGNAN
Maison à PERPIGNAN
Maison à PERPIGNAN
Maison à PERPIGNAN
Maison à PERPIGNAN
Maison à PERPIGNAN
Maison à PERPIGNAN
Maison à PERPIGNAN
Maison à PERPIGNAN
Maison à PERPIGNAN
Maison à PERPIGNAN
Maison à PERPIGNAN
Maison à PERPIGNAN
Maison à PERPIGNAN
Maison à PERPIGNAN
Ce site est protégé par reCAPTCHA la Politique de confidentialité et les Conditions d’utilisation de Google s’appliquent.
Obtenir un prêt immobilier au meilleur taux ?

En poursuivant votre navigation sans modifier vos paramètres, vous acceptez l'utilisation de cookies susceptibles de réaliser des statistiques de visite. Cliquez ici pour plus d'informations