Bénéficiez des services de nos partenaires locaux soigneusement sélectionnés
pour vous accompagner dans votre parcours d'achat immobilier

3 pièces terrasse vue mer panoramique parking cave

— Nice 06200 —
458 000 €
79 m²
3 pièces
balcon/terrasse

Nos partenaires locaux
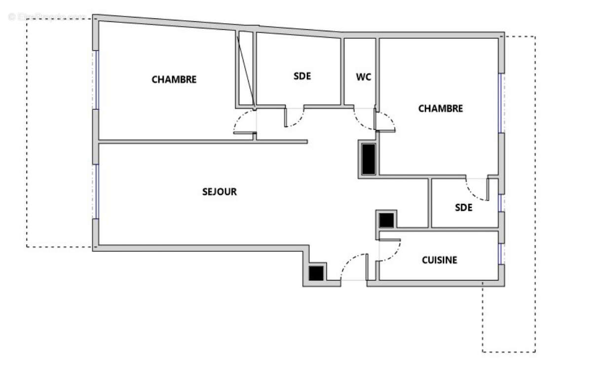
Dans l'une des plus belles résidences de standing de Nice Ouest (Arcadia 2), ce somptueux 3 pièces de 80 m2 offre une vue mer panoramique à couper le souffle, du Cap Ferrat au Cap d'Antibes.
Ce bien rare bénéficie d'une exposition sud-ouest idéale, baigné de lumière toute la journée, et s'ouvre intégralement sur une superbe terrasse de 20 m2 accessible depuis toutes les pièces.
Vous apprécierez son espace de vie spacieux et parfaitement agencé;
L'espace nuit propose une chambre, ainsi qu'une suite parentale type 'master' avec salle d'eau privative, WC et dressing aménagé.
Un deuxième salle de bains avec douche complète ce bien, ainsi que de nombreux rangements
Résidence, sécurisée avec gardien, offre des prestations de grande qualité :
piscine, club house, courts de tennis, terrain de pétanque, billard, salle de sport, bibliothèque, le tout dans un cadre verdoyant, calme et à proximité immédiate des commerces et transports.
Un parking et une cave compléte ce biens. AURUS IMMO
Voir plus

Bien en copropriété. Charges de copropriété : 4200 €.
Barème des honoraires
DPE
A
B
C
D
E
F
G
GES
A
B
C
D
E
F
G
Appartement à NICE
Appartement à NICE
Appartement à NICE
Appartement à NICE
Appartement à NICE
Appartement à NICE
Appartement à NICE
Appartement à NICE
Appartement à NICE
Appartement à NICE
Appartement à NICE
Appartement à NICE
Appartement à NICE
Géorisques

Les informations sur les risques auxquels ce bien est exposé sont disponibles sur le site Géorisques : www.georisques.gouv.fr

Ce site est protégé par hCaptcha Politique de confidentialité et Conditions d’utilisation s’appliquent.

En poursuivant votre navigation sans modifier vos paramètres, vous acceptez l'utilisation de cookies susceptibles de réaliser des statistiques de visite. Cliquez ici pour plus d'informations