Bénéficiez des services de nos partenaires locaux soigneusement sélectionnés
pour vous accompagner dans votre parcours d'achat immobilier

Maison 154m² à royan

— Royan 17200 —
388 000 €
154 m² / 210 m²
5 pièces
balcon/terrasse

Nos partenaires locaux
ROYAN (17200) – MAISON FAMILIALE AVEC STUDIO INDÉPENDANT – 4 CHAMBRES – GARAGE – PROXIMITÉ CENTRE, MARCHÉ ET PLAGE

Efficity, l'agence qui estime et vend votre bien, vous présente cette maison spacieuse et lumineuse des années 1970, idéalement située à 600 mètres du marché central et du centre-ville de Royan, et à seulement 1 km des plages.

Cette propriété offre une surface habitable totale de 154 m², comprenant une maison principale de 124 m² et en plus un studio indépendant de 30 m², parfait pour accueillir de la famille, un jeune adulte ou pour un projet locatif.

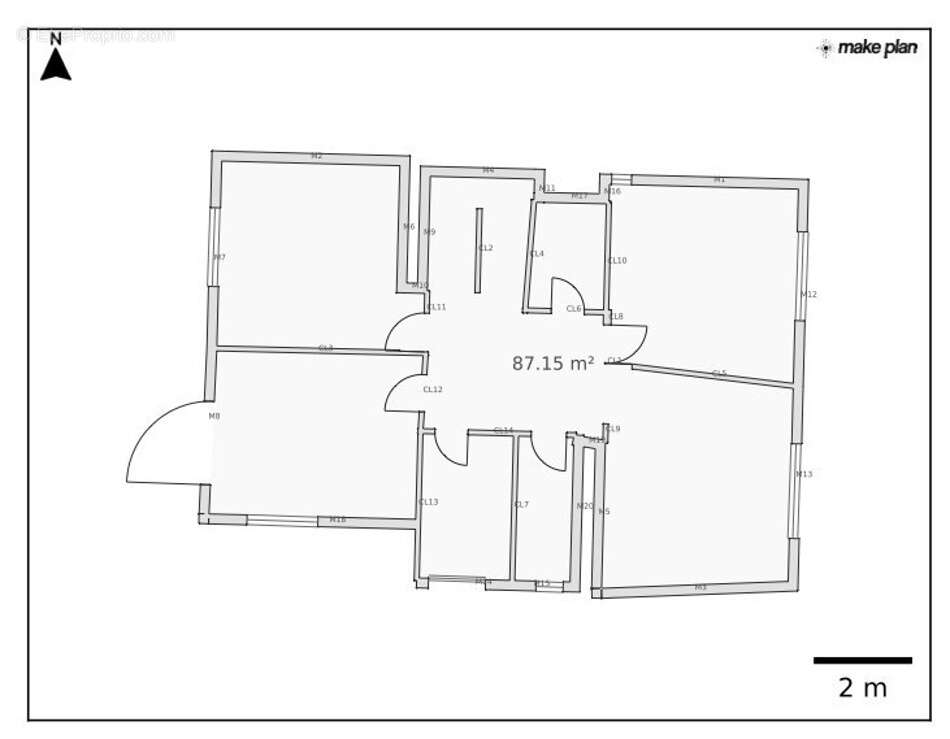
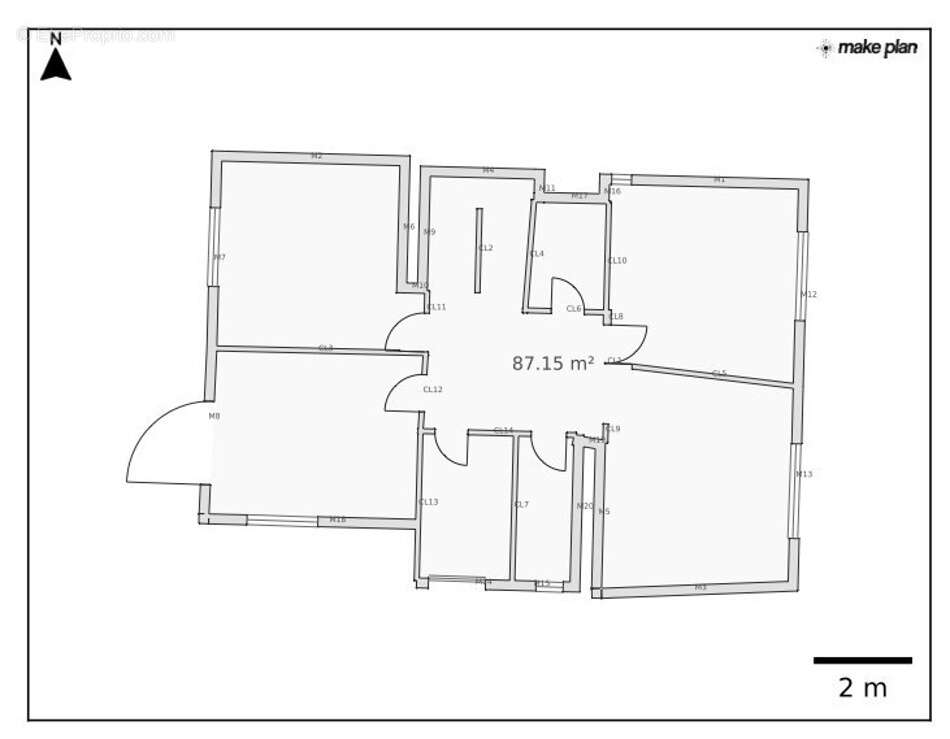
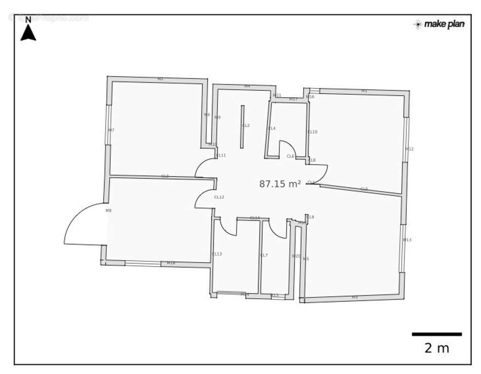
MAISON PRINCIPALE (124 m²)

Rez-de-chaussée :

Entrée : 6,71 m²

Séjour lumineux (salon / salle à manger) : 22,32 m²

Cuisine indépendante : 11,84 m²

Garage attenant : 24 m² (porte coulissante)

Étage :

Chambre 1 : 14,35 m²

Chambre 2 : 13 m² avec placard

Chambre 3 : 14 m² avec balcon

Chambre 4 : 16 m² avec placard

Dressing

Confort : chauffage par radiateurs électriques et pompe à chaleur dans le séjour.

STUDIO INDÉPENDANT (30 m²)

Pièce principale (salon / chambre) : 16 m²

Cuisine : 10,35 m²

Salle d'eau avec WC : 3 m²

Atout supplémentaire : possibilité de raccorder le studio à la maison pour créer une suite parentale spacieuse, ou de conserver son indépendance pour un revenu locatif ou un espace pour un proche.

Atouts de l'emplacement :

600 m du marché central et du centre-ville

1 km de la plage

Quartier calme et recherché

Pour plus d'informations ou pour organiser une visite, contactez :
Laurent Tomasi au [Coordonnées masquées]
[Coordonnées masquées]
Les informations sur les risques auxquels ce bien est exposé sont disponibles sur le site Georisque : georisques. gouv. fr
Laurent Tomasi - EI - est Agent Commercial mandataire en immobilier, immatriculé au Registre Spécial des Agents Commerciaux du Tribunal de Commerce de Saintes sous le n°437546864.
Siège social du mandant : effiCity, 48 avenue de Villiers - 75017 PARIS - Société par Actions Simplifiée, société au capital de 132 373,05 euros, immatriculée au RCS Paris 497 617 746 et titulaire de la Carte professionnelle CPI 75[Coordonnées masquées]02 025 - CCI Paris IDF - Caisse de Garantie : GALIAN Assurances 89 rue de la Boétie 75008 Paris
Voir plus

Référence: 196667
Honoraires d'agence de 4.86% à la charge de l'acquéreur
Barème des honoraires
DPE
A
B
C
D
E
F
G
GES
A
B
C
D
E
F
G

Prêt immobilier

Vous souhaitez connaître votre capacité d’emprunt et trouver le meilleur crédit immobilier ?
Réaliser une simulation gratuite

Maison à ROYAN
Maison à ROYAN
Maison à ROYAN
Maison à ROYAN
Maison à ROYAN
Maison à ROYAN
Maison à ROYAN
Maison à ROYAN
Maison à ROYAN
Maison à ROYAN
Maison à ROYAN
Maison à ROYAN
Maison à ROYAN
Maison à ROYAN
Maison à ROYAN
Maison à ROYAN
Maison à ROYAN
Maison à ROYAN
Maison à ROYAN
Maison à ROYAN
Maison à ROYAN
Maison à ROYAN
Maison à ROYAN
Maison à ROYAN
Maison à ROYAN
Maison à ROYAN
Ce site est protégé par reCAPTCHA la Politique de confidentialité et les Conditions d’utilisation de Google s’appliquent.
Obtenir un prêt immobilier au meilleur taux ?

En poursuivant votre navigation sans modifier vos paramètres, vous acceptez l'utilisation de cookies susceptibles de réaliser des statistiques de visite. Cliquez ici pour plus d'informations