Bénéficiez des services de nos partenaires locaux soigneusement sélectionnés
pour vous accompagner dans votre parcours d'achat immobilier

Locaux/biens immobiliers

— Paris-13e 75013 —
5 645 000 €
750 m²
3 pièces

Nos partenaires locaux
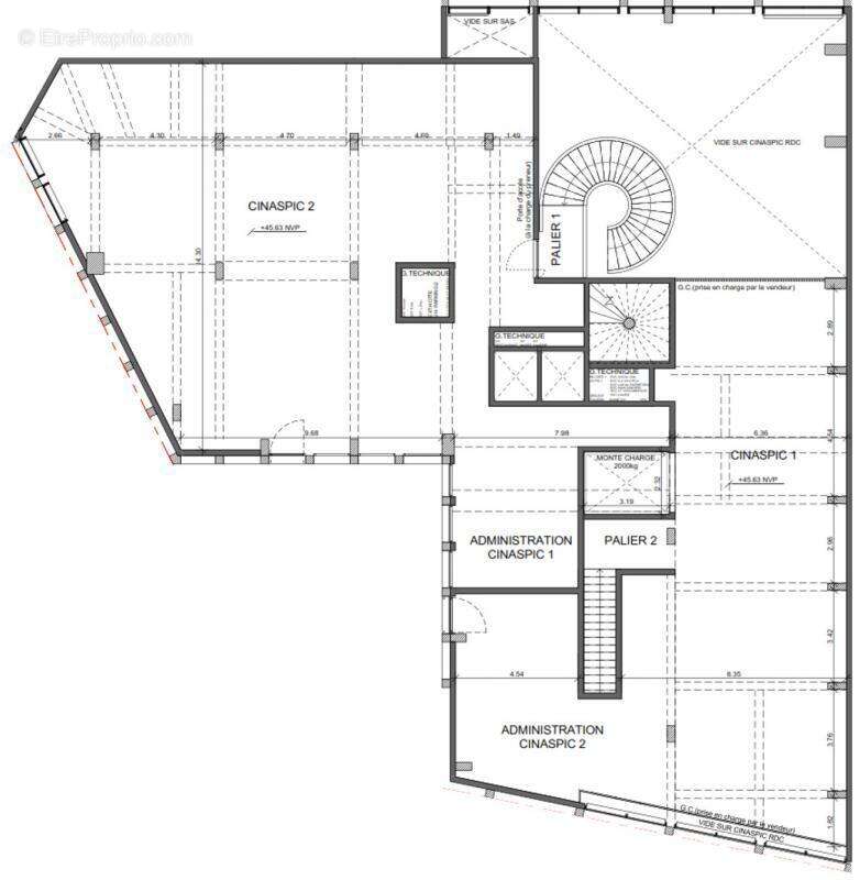
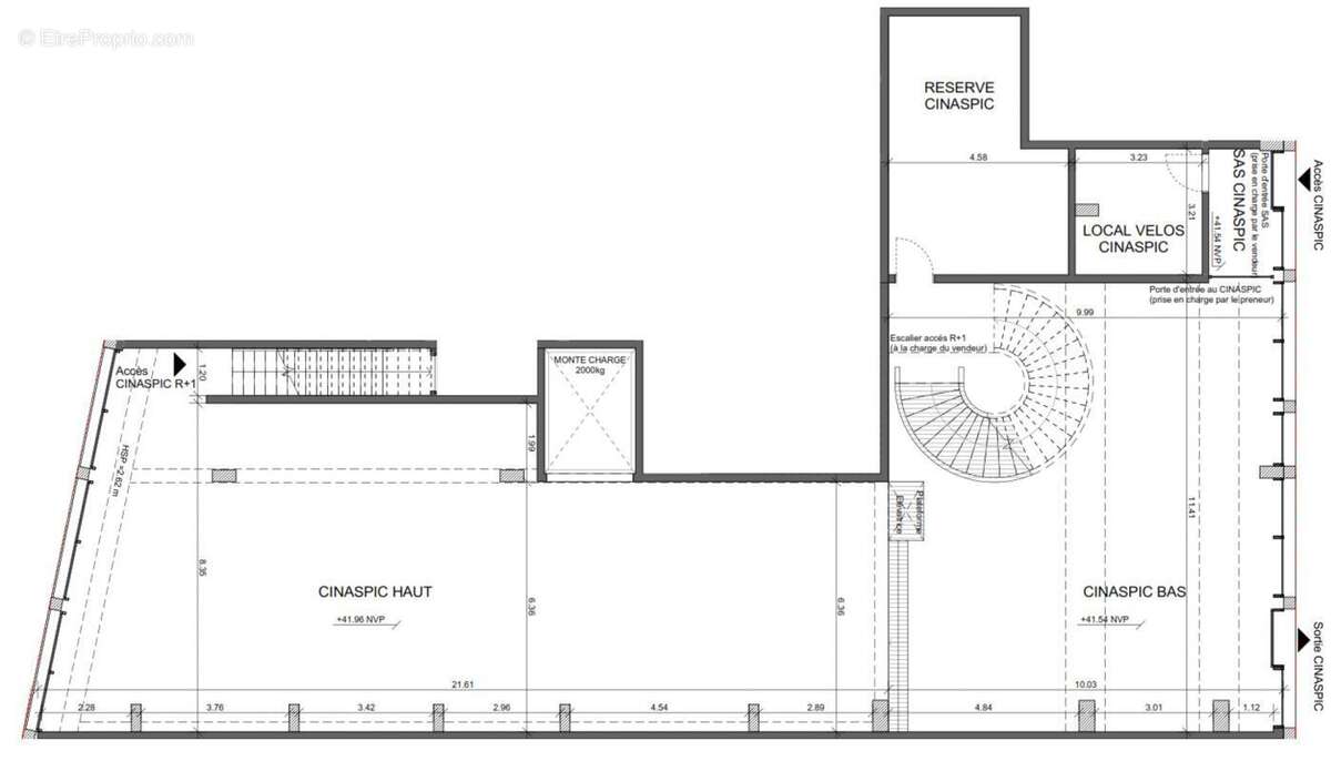
75013 - PARIS - GARE - LOCAL COMMERCIAL - 750.0m2 - 2 NIVEAUX

efficity, l'agence qui estime votre bien en ligne, vous propose

Situé au cœur du quartier dynamique de la Gare à Paris, ce local commercial lumineux de 750.0m2 représente une opportunité rare sur le marché.

Le local est au sein d'un nouveau en pleine mutation en recherche de commerce

Le local est constitué de 2 niveaux avec une escalier monumental. Il est traversant avec de grande baies vitrées et une hauteur sous plafond de plus de 5m

À proximité immédiate des transports en commun, des commerces et des bureaux, ce local commercial bénéficie d'un flux constant de passage et de clients potentiels.

Cette opportunité à saisir saura séduire les entrepreneurs en quête d'un emplacement stratégique au cœur de l'activité économique parisienne. Ne manquez pas cette chance unique de concrétiser votre projet professionnel dans un environnement dynamique et en plein essor.

Contactez-nous dès maintenant pour organiser une visite et découvrir tout le potentiel de ce local commercial idéalement situé.
Les informations sur les risques auxquels ce bien est exposé sont disponibles sur le site Georisque : georisques. gouv. fr
Benjamin Sese - EI - est Agent Commercial mandataire en immobilier, immatriculé au Registre Spécial des Agents Commerciaux du Tribunal de Commerce de Nanterre sous le n°835184003.
Siège social du mandant : effiCity, 48 avenue de Villiers - 75017 PARIS - Société par Actions Simplifiée, société au capital de 132 373,05 euros, immatriculée au RCS Paris 497 617 746 et titulaire de la Carte professionnelle CPI 75[Coordonnées masquées]02 025 - CCI Paris IDF - Caisse de Garantie : GALIAN Assurances 89 rue de la Boétie 75008 Paris
Voir plus

Référence: 196794
Bien en copropriété. Nombre de lots : 70. Charges de copropriété : 83 €.
Honoraires à la charge du vendeur.
Barème des honoraires
DPE
A
B
C
D
E
F
G
GES
A
B
C
D
E
F
G

Prêt immobilier

Vous souhaitez connaître votre capacité d’emprunt et trouver le meilleur crédit immobilier ?
Réaliser une simulation gratuite

Commerce à PARIS-13E
Commerce à PARIS-13E
Commerce à PARIS-13E
Commerce à PARIS-13E
Commerce à PARIS-13E
Commerce à PARIS-13E
Commerce à PARIS-13E
Ce site est protégé par reCAPTCHA la Politique de confidentialité et les Conditions d’utilisation de Google s’appliquent.
Obtenir un prêt immobilier au meilleur taux ?

En poursuivant votre navigation sans modifier vos paramètres, vous acceptez l'utilisation de cookies susceptibles de réaliser des statistiques de visite. Cliquez ici pour plus d'informations