Bénéficiez des services de nos partenaires locaux soigneusement sélectionnés
pour vous accompagner dans votre parcours d'achat immobilier

Vend terrain constructible - viabilise 1160m² + fondations et permis

— Montargis 45200 —
56 000 €
1 160 m²

Nos partenaires locaux
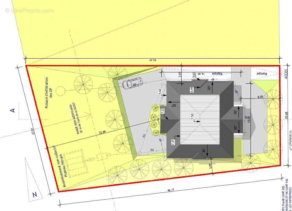
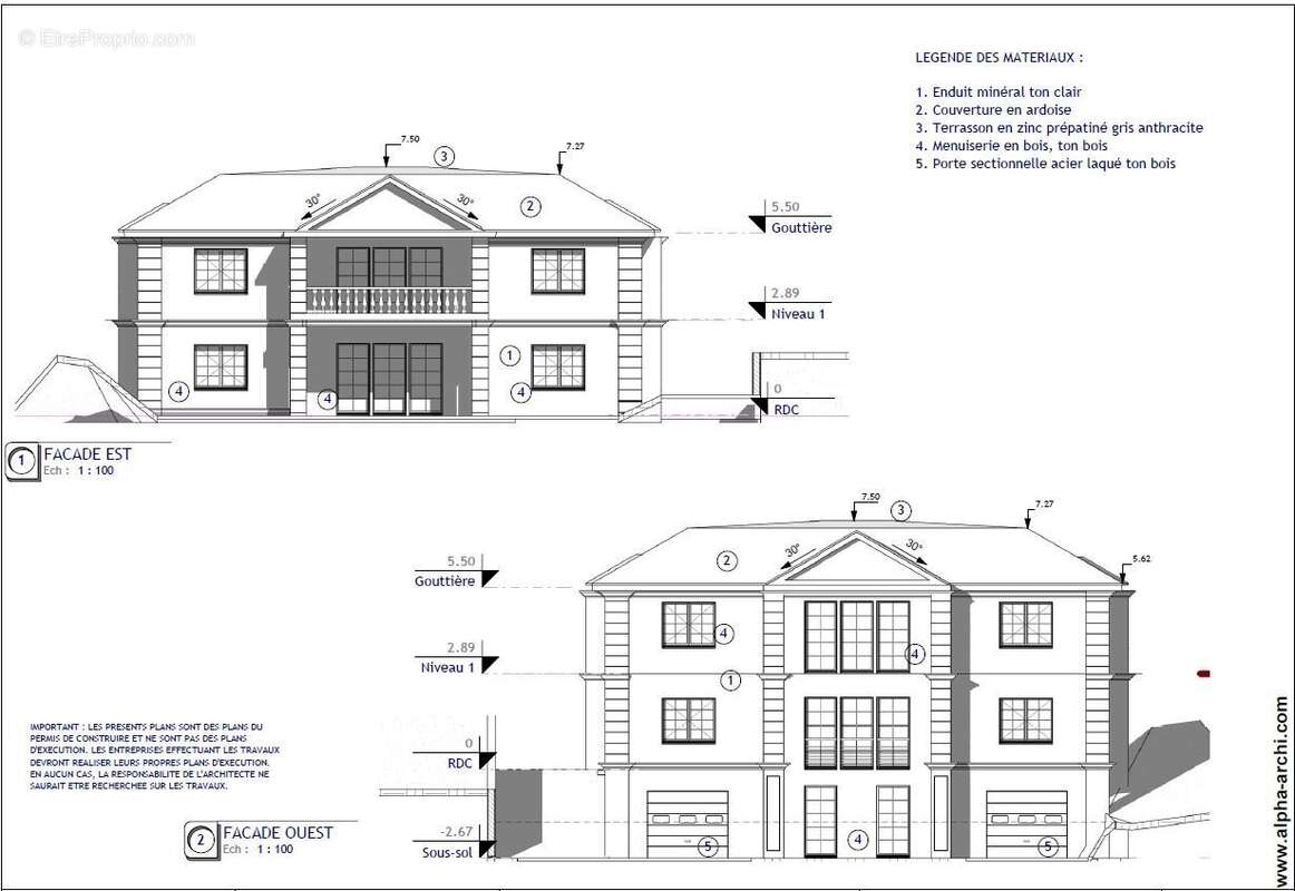
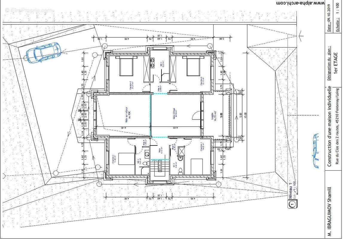
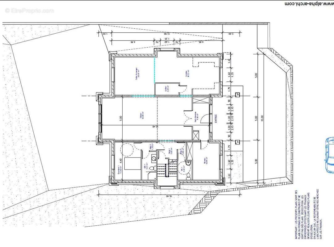
Beau Terrain constructible situé à Fontenay sur Loing proche des commerces de Ferrières de la Gare SNCF et des Axes Routiers . Prévu à la base pour un très beau Projet d'habitation, vous pourrez soit continuer celui ci ou demander un permis midificatif afin de l'adapter au votre. la base entamée étant saine et simple à poursuivre ou modifier. Le Terrain est déja Viabilisé (Eau, Electricité sur place + Etude du Sol et d'Assainissement réalisée ). Le Terrain dispose d'un Abris jardin et la construction du Mur de Façade d'Entrée est déja réalisé comme prévu dans le plan. Vous Bénéficierez également d'une Fondation réalisée dans les règles ainsi que les premières séparations en parpaing du niveau 0 de la construction prévue ( garage plusieurs emplacements et espaces de loisirs selon Plan réalisé par architectes). L'ensemble : Permis,Plans,photos... sera mis à votre disposition sur demande. Très belle affaire à saisir pour votre projet d'habitation rincipale ou d'investissement à faible coût de départ il ne vous restera qu'à poursuivre la construction et aménager le terrain à votre guise N'hésitez pas contactez moi au plus vite . Réf. 23041 Prix TTC et Honoraires à charge vendeur TTC Les informations sur les risques auxquels ce bien est exposé sont disponibles sur le site Géorisques : www. georisques. gouv. fr Information et visites : David ARNAUD - [Coordonnées masquées] - Ville du greffe : AGENT COMMERCIAL EI RSAC ORLEANS 484 766 563 La présente annonce immobilière a été rédigée sous l'entière responsabilité de David ARNAUD, mandataire indépendant pour NAOS immobilier Réf. 23041 Prix TTC et Honoraires à charge vendeur TTC Les informations sur les risques auxquels ce bien est exposé sont disponibles sur le site Géorisques : www. georisques. gouv. fr Réf. 23041 Information et visites : David ARNAUD - [Coordonnées masquées] - Ville du greffe : AGENT COMMERCIAL EI RSAC ORLEANS 484 766 563 La présente annonce immobilière a été rédigée sous l'entière responsabilité de David ARNAUD, mandataire indépendant pour NAOS immobilier
Voir plus

Référence: 23041
Honoraires à la charge du vendeur.
Barème des honoraires

Prêt immobilier

Vous souhaitez connaître votre capacité d’emprunt et trouver le meilleur crédit immobilier ?
Réaliser une simulation gratuite

Terrain à MONTARGIS
Terrain à MONTARGIS
Terrain à MONTARGIS
Terrain à MONTARGIS
Terrain à MONTARGIS
Terrain à MONTARGIS
Terrain à MONTARGIS
Terrain à MONTARGIS
Terrain à MONTARGIS
Terrain à MONTARGIS
Terrain à MONTARGIS
Terrain à MONTARGIS
Terrain à MONTARGIS
Terrain à MONTARGIS
Terrain à MONTARGIS
Terrain à MONTARGIS
Terrain à MONTARGIS
Terrain à MONTARGIS
Terrain à MONTARGIS
Terrain à MONTARGIS
Ce site est protégé par reCAPTCHA la Politique de confidentialité et les Conditions d’utilisation de Google s’appliquent.
Obtenir un prêt immobilier au meilleur taux ?

En poursuivant votre navigation sans modifier vos paramètres, vous acceptez l'utilisation de cookies susceptibles de réaliser des statistiques de visite. Cliquez ici pour plus d'informations