Vence - dernière opportunité- 3p avec 16m² de terrasse, vue mer . parking. résidence neuve

— Vence 06140 —
440 000 €
61 m²
3 pièces
parkingbalcon/terrasseascenseuraccès handicapé

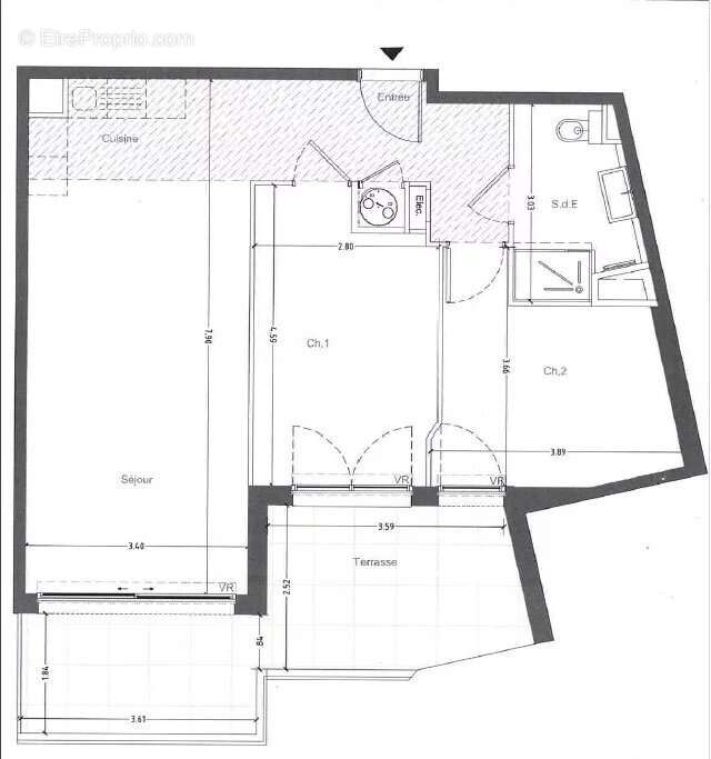
Vence, à pieds du centre (500m), dans une résidence neuve, fermée et sécurisée, nous vous proposons un T3 de 61m² avec 16m² de terrasse, au 1er étage (en position dominante), d'un immeuble contemporain au charme du provençal.

L'entrée dessert un grand salon/cuisine équipée de 29m², deux chambres respectivement de 10.50 et 11.80m² s'ouvrant largement sur une belle terrasse de 16m², plein Sud, avec vue dégagée panoramique mer. Une salle d'eau avec WC complète ce bien.

Le bien est vendu avec une place de parking en sous/sol et un emplacement moto. 3 places de parking sont encore disponibles à la vente dans la résidence pour 26.500€ l'unité.

La résidence s'intègre parfaitement à l'esprit méditerranéen de Vence, avec sa toiture en tuiles, ses façades blanches, ses terrasses en avancées, ses gardes corps en verre et son soubassement en pierre de taille.

Quote-part de charges de copropriété: 150€/mois. 13 lots principaux.
Frais de notaire réduits. Livraison immédiate.

Les informations sur les risques auxquels ce bien est exposé sont disponibles sur le site Géorisques : georisques.gouv.fr

**** VENCE - Tout comme Saint-Paul, Vence est un haut lieu de l’art moderne. Après la Seconde Guerre mondiale, Matisse y a laissé son empreinte en érigeant, décorant et offrant une chapelle, en remerciement aux religieuses qui l’avaient soigné.
La vieille ville, fortifiée, est embellie par une architecture médiévale remarquable : petites places pittoresques, fontaines, cathédrale, etc.
Voir plus

Référence: NY-1091-AVence
Barème des honoraires
DPE
A
B
C
D
E
F
G
GES
A
B
C
D
E
F
G

Prêt immobilier

Vous souhaitez connaître votre capacité d’emprunt et trouver le meilleur crédit immobilier ?
Réaliser une simulation gratuite

Appartement à VENCE
Appartement à VENCE
Appartement à VENCE
Appartement à VENCE
Appartement à VENCE
Appartement à VENCE
Appartement à VENCE
Appartement à VENCE
Appartement à VENCE
Appartement à VENCE
Appartement à VENCE
Appartement à VENCE
Appartement à VENCE
Appartement à VENCE
Appartement à VENCE
Appartement à VENCE
Appartement à VENCE
Appartement à VENCE
Appartement à VENCE
Ce site est protégé par reCAPTCHA la Politique de confidentialité et les Conditions d’utilisation de Google s’appliquent.
Obtenir un prêt immobilier au meilleur taux ?

En poursuivant votre navigation sans modifier vos paramètres, vous acceptez l'utilisation de cookies susceptibles de réaliser des statistiques de visite. Cliquez ici pour plus d'informations