Belle maison de 4 chambres à la campagne, havre de paix

— Saint-Pierre-De-Plesguen 35720 —
325 000 €
153 m² / 4 051 m²
5 pièces
parkingbalcon/terrassejardin

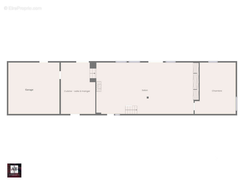
EXCLUSIVITE Agence THOM - Nichée dans un hameau tranquille, cette belle demeure en pierres de 153 m² séduit par son cachet authentique et sa luminosité généreuse. Dès l’entrée, vous serez accueillis par une vaste pièce de vie de 57 m², chaleureusement animée par une cheminée — parfaite pour des soirées en famille ou entre amis.
La cuisine aménagée, ouverte sur le jardin grâce à une porte-fenêtre, offre un espace fonctionnel et convivial. Une chambre, actuellement utilisée comme bureau, complète le rez-de-chaussée.
À l’étage, le palier dessert deux chambres baignées de lumière, orientées sud est, ainsi qu’une salle de bain équipée d’une baignoire, d’une douche et de WC. Le dernier niveau propose une grande chambre supplémentaire et une seconde salle de bain avec WC, idéale pour accueillir famille ou invités.
Le charme de l’ancien s’allie au confort moderne : chauffage central au fioul, assainissement aux normes, quelques huisseries en double vitrage. À cela s’ajoutent une chaufferie, un double garage, deux petites dépendances et un puits, complétant les équipements extérieurs.
Le terrain de plus de 4 000 m², planté d’arbres fruitiers, invite à la détente et à la contemplation. Une terrasse exposée sud est s’étend devant la maison et l’autre, nord ouest, parfaite pour savourer les journées ensoleillées.
À seulement 4 km du centre de Mesnil Roc’h, commune dynamique avec toutes les commodités (écoles, commerces, services), cette propriété bénéficie d’une localisation idéale : 13 km de Combourg, 15 km de Dinan, 18 km de Dol-de-Bretagne, 30 minutes de Saint-Malo et 40 minutes de Rennes.
Classe énergie : E Classe climat : C Montant moyen estimé des dépenses annuelles d’énergie pour un usage standard, établi à partir des prix de l’énergie de l’année 2021, 2022,2023 : entre 3 980€ et 5 440€ / Logement à consommation énergétique excessive : classe E / Prix : 325 000€. Une visite virtuelle guidée est disponible sur demande. La présente annonce immobilière a été rédigée sous la responsabilité éditoriale de Mme Rachel GALLARD, EI, agente commerciale 451 165 955 RSAC Saint-Malo. Pour visiter et vous accompagner dans votre projet, contactez Rachel GALLARD au [Coordonnées masquées] ou au [Coordonnées masquées]. Plus d’informations sur notre site www.agencethom.fr
Voir plus

Référence: 1479
DPE
A
B
C
D
E
F
G
GES
A
B
C
D
E
F
G

Prêt immobilier

Vous souhaitez connaître votre capacité d’emprunt et trouver le meilleur crédit immobilier ?
Réaliser une simulation gratuite

Maison à SAINT-PIERRE-DE-PLESGUEN
Maison à SAINT-PIERRE-DE-PLESGUEN
Maison à SAINT-PIERRE-DE-PLESGUEN
Maison à SAINT-PIERRE-DE-PLESGUEN
Maison à SAINT-PIERRE-DE-PLESGUEN
Maison à SAINT-PIERRE-DE-PLESGUEN
Maison à SAINT-PIERRE-DE-PLESGUEN
Maison à SAINT-PIERRE-DE-PLESGUEN
Maison à SAINT-PIERRE-DE-PLESGUEN
Maison à SAINT-PIERRE-DE-PLESGUEN
Maison à SAINT-PIERRE-DE-PLESGUEN
Maison à SAINT-PIERRE-DE-PLESGUEN
Maison à SAINT-PIERRE-DE-PLESGUEN
Maison à SAINT-PIERRE-DE-PLESGUEN
Maison à SAINT-PIERRE-DE-PLESGUEN
Maison à SAINT-PIERRE-DE-PLESGUEN
Maison à SAINT-PIERRE-DE-PLESGUEN
Maison à SAINT-PIERRE-DE-PLESGUEN
Maison à SAINT-PIERRE-DE-PLESGUEN
Ce site est protégé par reCAPTCHA la Politique de confidentialité et les Conditions d’utilisation de Google s’appliquent.
Obtenir un prêt immobilier au meilleur taux ?

En poursuivant votre navigation sans modifier vos paramètres, vous acceptez l'utilisation de cookies susceptibles de réaliser des statistiques de visite. Cliquez ici pour plus d'informations