Bénéficiez des services de nos partenaires locaux soigneusement sélectionnés
pour vous accompagner dans votre parcours d'achat immobilier

Exclusivité a vendre brest siam eglise saint-louis lot de deux appartements t4 de 72 m² chacun

— Brest 29200 —
368 500 €
143 m²
4 pièces

Nos partenaires locaux
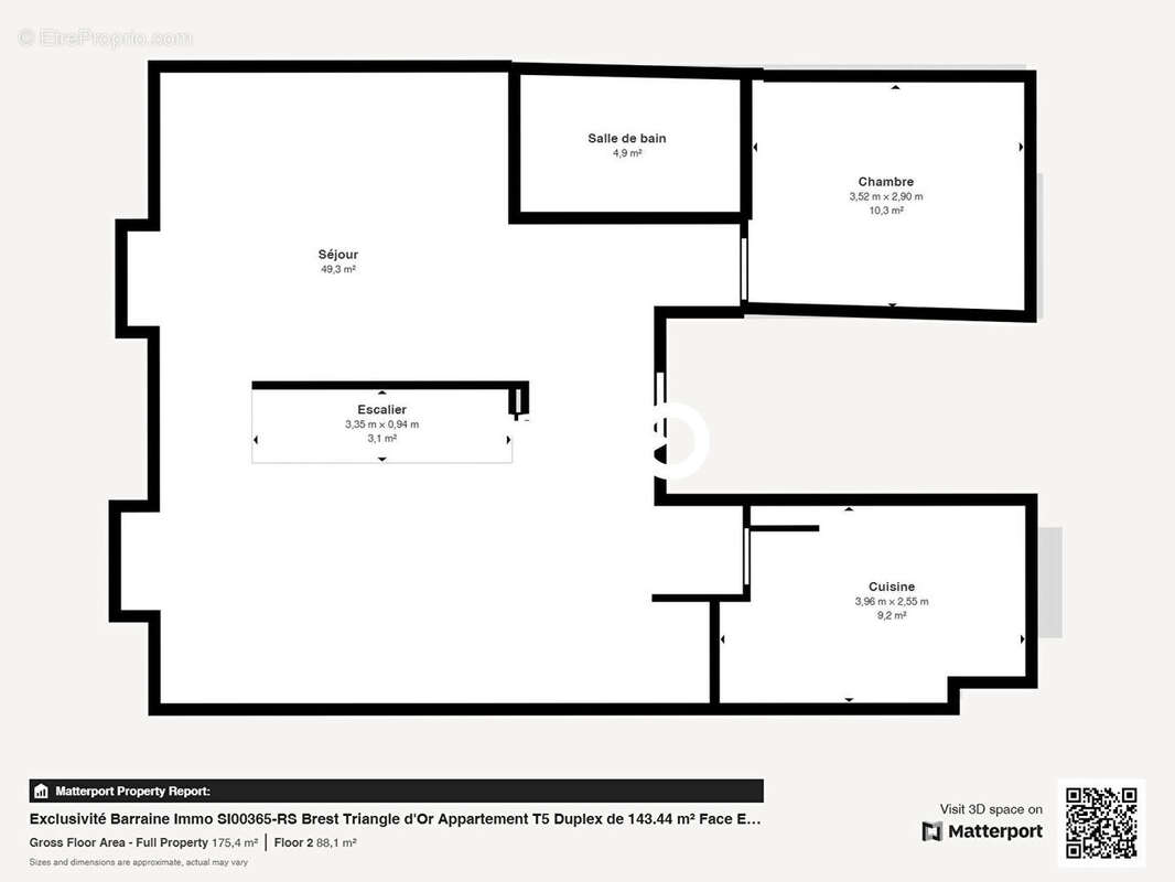
POUR INVESTISSEURS MARCHANDS DE BIENS - EXCLUSIVITÉ A VENDRE BREST SIAM EGLISE SAINT-LOUIS LOT DE DEUX APPARTEMENTS T4 de 72 m² chacun SI00365-RS-2. (Possibilité 1 garage en sus) Face à L'église Saint Louis - Lot de deux appartements T4 de 72 m², au 1er et 2ème étages. 184.250 euros frais d'agence inclus pour chaque appartement (à acheter ensemble). Soit un prix au m² de 2 440 euros / m² hors frais. Prix attractif pour le quartier. Dans une résidence bien tenue des années 1950 en plein coeur du Triangle d'Or, à proximité de la Rue de Siam. 2 caves au sous-sol de 13 et 18 m². les fenêtres sont en PVC double vitrage. Les indices DPE et GES sont respectivement de catégorie E (191 kWh/m² annuels) et de classe E (50Kg CO2/m²/an). N'hésitez pas à prendre contact avec votre Agence Barraine IMMO Brest - Siam pour une première visite de cet appartement à vendre. (5.29 % honoraires TTC à la charge de l'acquéreur.) Copropriété de 12 lots - dont 3 lots habitation. (Pas de procédure en cours). Charges annuelles : 1751.2 euros.
Voir plus

Référence: SI00365-RS-2
Bien en copropriété. Nombre de lots : 12. Charges de copropriété : 1751 €.
Honoraires d'agence de 5.29% à la charge de l'acquéreur
Barème des honoraires
DPE
A
B
C
D
E
F
G
GES
A
B
C
D
E
F
G

Prêt immobilier

Vous souhaitez connaître votre capacité d’emprunt et trouver le meilleur crédit immobilier ?
Réaliser une simulation gratuite

Appartement à BREST
Appartement à BREST
Appartement à BREST
Appartement à BREST
Appartement à BREST
Appartement à BREST
Appartement à BREST
Appartement à BREST
Appartement à BREST
Appartement à BREST
Appartement à BREST
Appartement à BREST
Appartement à BREST
Appartement à BREST
Appartement à BREST
Appartement à BREST
Appartement à BREST
Appartement à BREST
Appartement à BREST
Ce site est protégé par reCAPTCHA la Politique de confidentialité et les Conditions d’utilisation de Google s’appliquent.
Obtenir un prêt immobilier au meilleur taux ?

En poursuivant votre navigation sans modifier vos paramètres, vous acceptez l'utilisation de cookies susceptibles de réaliser des statistiques de visite. Cliquez ici pour plus d'informations