Bénéficiez des services de nos partenaires locaux soigneusement sélectionnés
pour vous accompagner dans votre parcours d'achat immobilier

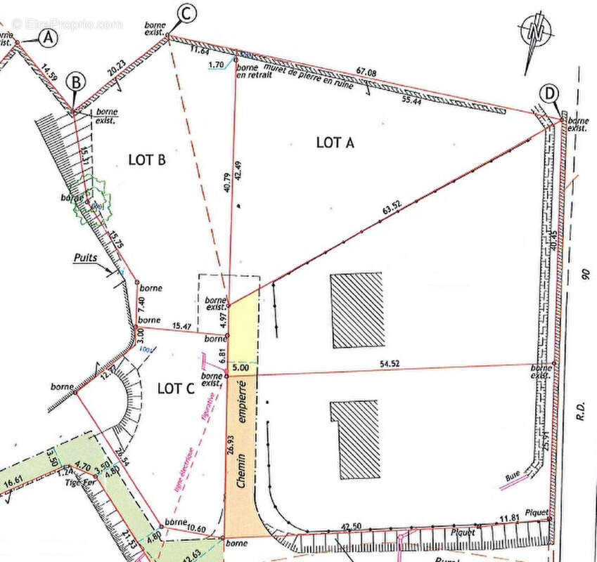
Terrain taix 2983 m2

— Taix 81130 —
45 500 €
2 983 m²
jardin

Nos partenaires locaux
[ GRAND TERRAIN ARBORÉ ] A l'entrée du village de Taïx, avec vue sur l'Église, proche des commodités de Cagnac-les-Mines et à moins de 10 minutes du retail parc de Lescure, terrain à vendre. Cette belle parcelle arborée vous accueille au sein d'un village tranquille et au calme. Ce terrain est quasiment plat sur une grande superficie et permet de construire une maison de plain-pied. Ce terrain peut être divisé si vous n'avez pas besoin de toute la superficie. Les alimentations en électricité et Télécom sont posées. L'eau se trouve en bordure. Un assainissement autonome sera à prévoir. Pour plus d'informations, contactez notre agence immobilière !
Voir plus

Référence: 3554
Honoraires à la charge du vendeur.
Barème des honoraires

Prêt immobilier

Vous souhaitez connaître votre capacité d’emprunt et trouver le meilleur crédit immobilier ?
Réaliser une simulation gratuite

Terrain à TAIX
Terrain à TAIX
Terrain à TAIX
Terrain à TAIX
Terrain à TAIX
Terrain à TAIX
Terrain à TAIX
Ce site est protégé par reCAPTCHA la Politique de confidentialité et les Conditions d’utilisation de Google s’appliquent.
Obtenir un prêt immobilier au meilleur taux ?

En poursuivant votre navigation sans modifier vos paramètres, vous acceptez l'utilisation de cookies susceptibles de réaliser des statistiques de visite. Cliquez ici pour plus d'informations