Bénéficiez des services de nos partenaires locaux soigneusement sélectionnés
pour vous accompagner dans votre parcours d'achat immobilier

Maison 60m² à neauphle-le-chateau

— Neauphle-Le-Chateau 78640 —
219 000 €
60 m²
4 pièces
parking

Nos partenaires locaux
78640 - NEAUPHLE-LE-CHÂTEAU - CENTRE-VILLE - 4 PIÈCES - 3 CHAMBRES - 60 M² - MAISON DE VILLE - GRANDE CAVE
Efficity, l'agence qui estime votre bien en ligne, vous propose cette charmante maison située en plein cœur du centre histoire de Neauphle-le-Château à 200 m. de l'église et de la place du marché.
Avec ses 4 pièces, ses 3 chambres et ses nombreux rangements cette propriété offre une surface pondérée de 60 m² (52 m² habitable loi carrez) répartie sur 3 niveaux, idéale pour une première acquisition ou pour un investissement immobilier (loyer 1000€ hors charge).
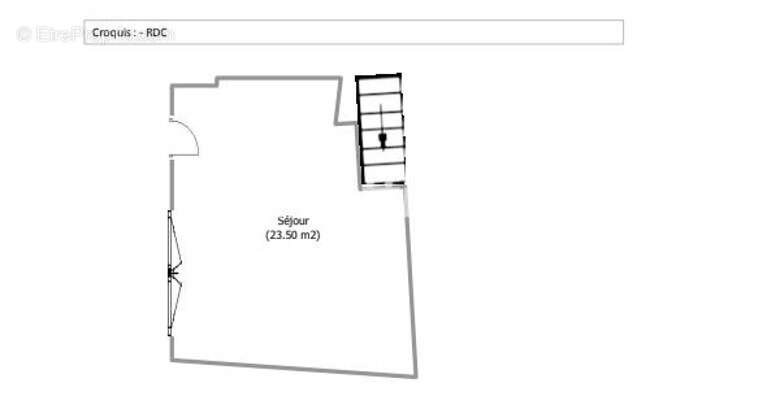
Cette maison vous propose au rez-de-chaussée, une pièce à vivre de 24 m² regroupant salon et cuisine équipée pour partager des moments avec vos proches.
Les 3 chambres, dont une sous les combles, et la salle de bain offrent des espaces intimes et confortables pour toute la famille.
La double cave en pierre de 15 m², très saine, constitue un atout supplémentaire. La cour à partager de 40 m² offrent un espace extérieur convivial pour profiter des journées ensoleillées en toute quiétude.
Pour vous garer, vous trouverez toujours une place de stationnement gratuite devant la copropriété.
Ne manquez pas cette opportunité unique d'acquérir cette maison pleine de charme proposant un bel emplacement et un cadre de vie paisible au cœur de Neauphle-le-Château.
Les informations sur les risques auxquels ce bien est exposé sont disponibles sur le site Georisque : georisques. gouv. fr
Jacques Clave De Otaola - EI - est Agent Commercial mandataire en immobilier, immatriculé au Registre Spécial des Agents Commerciaux du Tribunal de Commerce de Versailles sous le n°788817237.
Siège social du mandant : effiCity, 48 avenue de Villiers - 75017 PARIS - Société par Actions Simplifiée, société au capital de 132 373,05 euros, immatriculée au RCS Paris 497 617 746 et titulaire de la Carte professionnelle CPI 75[Coordonnées masquées]02 025 - CCI Paris IDF - Caisse de Garantie : GALIAN Assurances 89 rue de la Boétie 75008 Paris
Voir plus

Référence: 176028
Bien en copropriété. Nombre de lots : 25. Charges de copropriété : 93 €.
Honoraires à la charge du vendeur.
Barème des honoraires
DPE
A
B
C
D
E
F
G
GES
A
B
C
D
E
F
G

Prêt immobilier

Vous souhaitez connaître votre capacité d’emprunt et trouver le meilleur crédit immobilier ?
Réaliser une simulation gratuite

Maison à NEAUPHLE-LE-CHATEAU
Maison à NEAUPHLE-LE-CHATEAU
Maison à NEAUPHLE-LE-CHATEAU
Maison à NEAUPHLE-LE-CHATEAU
Maison à NEAUPHLE-LE-CHATEAU
Maison à NEAUPHLE-LE-CHATEAU
Maison à NEAUPHLE-LE-CHATEAU
Maison à NEAUPHLE-LE-CHATEAU
Maison à NEAUPHLE-LE-CHATEAU
Maison à NEAUPHLE-LE-CHATEAU
Maison à NEAUPHLE-LE-CHATEAU
Maison à NEAUPHLE-LE-CHATEAU
Ce site est protégé par reCAPTCHA la Politique de confidentialité et les Conditions d’utilisation de Google s’appliquent.
Obtenir un prêt immobilier au meilleur taux ?

En poursuivant votre navigation sans modifier vos paramètres, vous acceptez l'utilisation de cookies susceptibles de réaliser des statistiques de visite. Cliquez ici pour plus d'informations