Bénéficiez des services de nos partenaires locaux soigneusement sélectionnés
pour vous accompagner dans votre parcours d'achat immobilier

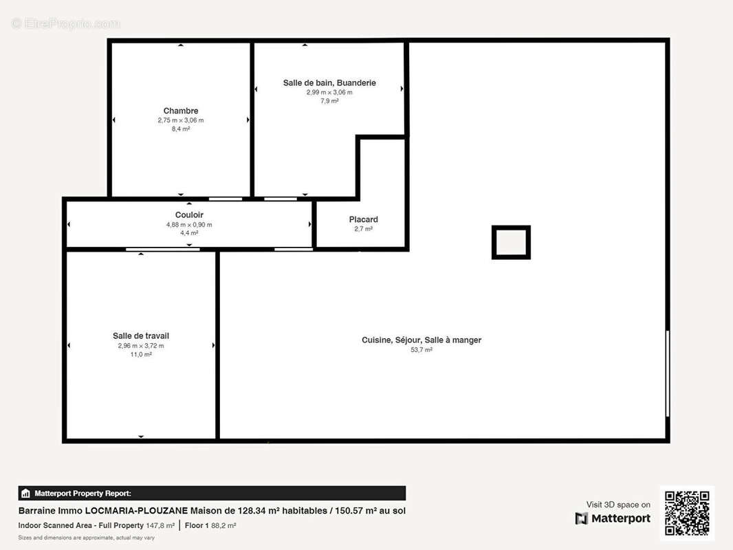
Maison non mitoyenne avec vue mer de 125 m² habitables / 150 m² au sol + 124 m² de sous-sol sur 1044 m² de terrain et à 350 m de

— Locmaria-Plouzane 29280 —
556 500 €
125 m² / 1 044 m²
7 pièces
parkingbalcon/terrassejardin

Nos partenaires locaux
Située à LOCMARIA PLOUZANE. Ref SI00346-RS. Vous rêver de flirter avec la mer d'Iroise, en pouvant vivre de plain-pied, alors venez découvrir cette propriété située face au Goulet de Brest. Rare sur le marché, avec ses 7 pièces, 125 m² habitables, plus de 150 m² au sol, elle offre un espace de vie spacieux et chaleureux. Nichée sur un terrain de 1044 m², cette maison vous offre une vue imprenable sur la nature et la mer. Ses deux ponts, vous permettront d'accueillir, famille et amis dans un cadre champêtre et maritime. Pour le couchage, 4 chambres (possibilité 5). Profitez de la tranquillité du secteur tout en étant à seulement 15 minutes du tramway et des écoles. Les commerces sont à 3 km et l'aéroport à 8 km. La maison dispose également d'une belle terrasse de 36.32 m² pour profiter des beaux jours en admirant les tas de pois de la pointe de Pen hir. Pour votre bateau, jet ski ou vos plus belles voitures de collection, sous-sol complet de 124 m² ! Ne manquez pas cette opportunité unique, contactez dès maintenant l'Agence Barraine IMMO Brest - Siam pour organiser une visite. (5.00 % honoraires TTC à la charge de l'acquéreur.)
Voir plus

Référence: SI00346-RS
Honoraires d'agence de 5% à la charge de l'acquéreur
Barème des honoraires
DPE
A
B
C
D
E
F
G
GES
A
B
C
D
E
F
G

Prêt immobilier

Vous souhaitez connaître votre capacité d’emprunt et trouver le meilleur crédit immobilier ?
Réaliser une simulation gratuite

Maison à LOCMARIA-PLOUZANE
Maison à LOCMARIA-PLOUZANE
Maison à LOCMARIA-PLOUZANE
Maison à LOCMARIA-PLOUZANE
Maison à LOCMARIA-PLOUZANE
Maison à LOCMARIA-PLOUZANE
Maison à LOCMARIA-PLOUZANE
Maison à LOCMARIA-PLOUZANE
Maison à LOCMARIA-PLOUZANE
Maison à LOCMARIA-PLOUZANE
Maison à LOCMARIA-PLOUZANE
Maison à LOCMARIA-PLOUZANE
Maison à LOCMARIA-PLOUZANE
Maison à LOCMARIA-PLOUZANE
Maison à LOCMARIA-PLOUZANE
Maison à LOCMARIA-PLOUZANE
Maison à LOCMARIA-PLOUZANE
Maison à LOCMARIA-PLOUZANE
Maison à LOCMARIA-PLOUZANE
Maison à LOCMARIA-PLOUZANE
Ce site est protégé par reCAPTCHA la Politique de confidentialité et les Conditions d’utilisation de Google s’appliquent.
Obtenir un prêt immobilier au meilleur taux ?

En poursuivant votre navigation sans modifier vos paramètres, vous acceptez l'utilisation de cookies susceptibles de réaliser des statistiques de visite. Cliquez ici pour plus d'informations