Bénéficiez des services de nos partenaires locaux soigneusement sélectionnés
pour vous accompagner dans votre parcours d'achat immobilier

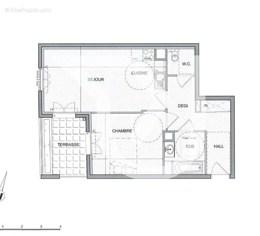
Beau 2 pièces de 50 m² en centre-ville de cannes

— Cannes 06400 —
344 000 €
51 m²
2 pièces
parkingbalcon/terrasseaccès handicapé

Nos partenaires locaux
Charmant 2 pièces de 50 m² en plein cœur du centre-ville, à deux pas du Palais des Festivals, du marché Forville et des plages. Situé en rez-de-chaussée d’une résidence récente, sécurisée et aux normes PMR, encore couverte par la garantie décennale.

L’appartement bénéficie d’un environnement calme et sans vis-à-vis. Il se compose d’un séjour lumineux avec cuisine équipée, d’une chambre avec placards intégrés, d’une salle de bains et de WC indépendants. Une agréable terrasse complète ce bien idéal pour une résidence principale, un pied-à-terre ou un investissement locatif.

Possibilité d’acquérir une place de parking privative en sous-sol en supplément.
Voir plus

Référence: 2-1036VA
DPE
A
B
C
D
E
F
G
GES
A
B
C
D
E
F
G

Prêt immobilier

Vous souhaitez connaître votre capacité d’emprunt et trouver le meilleur crédit immobilier ?
Réaliser une simulation gratuite

Appartement à CANNES
Appartement à CANNES
Appartement à CANNES
Appartement à CANNES
Appartement à CANNES
Appartement à CANNES
Appartement à CANNES
Appartement à CANNES
Appartement à CANNES
Appartement à CANNES
Ce site est protégé par reCAPTCHA la Politique de confidentialité et les Conditions d’utilisation de Google s’appliquent.
Obtenir un prêt immobilier au meilleur taux ?

En poursuivant votre navigation sans modifier vos paramètres, vous acceptez l'utilisation de cookies susceptibles de réaliser des statistiques de visite. Cliquez ici pour plus d'informations