Bénéficiez des services de nos partenaires locaux soigneusement sélectionnés
pour vous accompagner dans votre parcours d'achat immobilier

Draguignan - a vendre - terrain constructible de 1230 m² avec permis de construire accordé

— Draguignan 83300 —
180 000 €
1 230 m²
jardin

Nos partenaires locaux
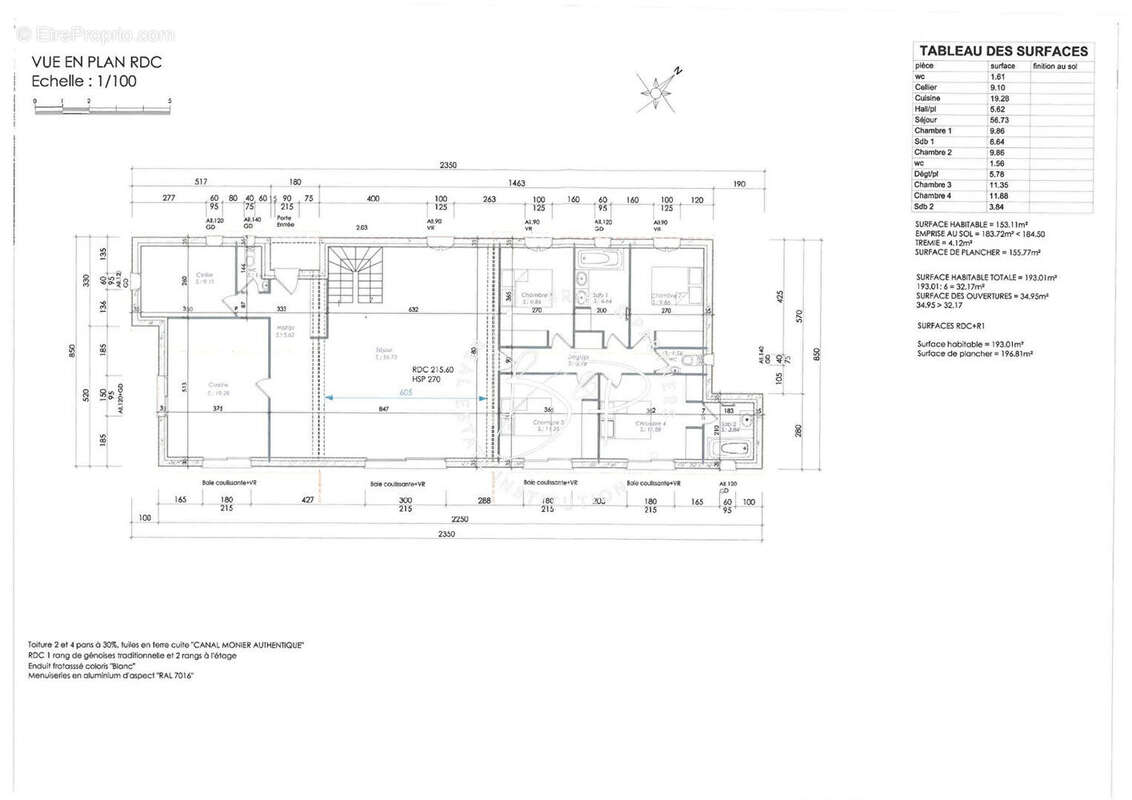
Offrez-vous le projet de votre vie sur ce superbe terrain plat situé en zone UCb du PLU de la commune, prêt à accueillir une villa de 196 m² avec un permis de construire déjà accordé et purgé ! La future villa se composera comme suit : Rez-de-chaussée : hall d'entrée, séjour lumineux, cuisine, cellier, 4 chambres, 2 salles de bains et 2 WC. Étage partiel situé au-dessus du séjour : 2 chambres supplémentaires, salle d'eau et WC, offrant un espace complémentaire idéal pour famille ou invités. Le terrain est piscinable (jusqu'à 40 m²) pour profiter pleinement des beaux jours. Les réseaux d'eau et d'électricité sont à proximité immédiate. Le permis nécessite l'implantation d'une fosse septique et la réalisation d' un bassin de rétention d'eau de 37 m³. Situé en zone UCb du PLU de la commune, son emprise au sol est fixée à 15% Important : les vendeurs ne souhaitent pas soumettre la vente à la condition suspensive d'obtention d'un autre permis. Vous pouvez cependant acquérir le terrain et déposer un nouveau permis après l'achat. Ce terrain représente une belle opportunité pour construire la maison de vos rêves, dans un environnement agréable et modulable selon vos envies. Situation stratégique avec accès immédiat aux voies de circulation, facilitant les déplacements quotidiens. Virginie FAURIAUX (EI) Agent Commercial - Numéro RSAC : 878424357 - DRAGUIGNAN.
Voir plus

Référence: 5029
Honoraires à la charge du vendeur.
Barème des honoraires

Prêt immobilier

Vous souhaitez connaître votre capacité d’emprunt et trouver le meilleur crédit immobilier ?
Réaliser une simulation gratuite

Terrain à DRAGUIGNAN
Terrain à DRAGUIGNAN
Terrain à DRAGUIGNAN
Terrain à DRAGUIGNAN
Terrain à DRAGUIGNAN
Terrain à DRAGUIGNAN
Terrain à DRAGUIGNAN
Terrain à DRAGUIGNAN
Terrain à DRAGUIGNAN
Ce site est protégé par reCAPTCHA la Politique de confidentialité et les Conditions d’utilisation de Google s’appliquent.
Obtenir un prêt immobilier au meilleur taux ?

En poursuivant votre navigation sans modifier vos paramètres, vous acceptez l'utilisation de cookies susceptibles de réaliser des statistiques de visite. Cliquez ici pour plus d'informations