Bénéficiez des services de nos partenaires locaux soigneusement sélectionnés
pour vous accompagner dans votre parcours d'achat immobilier

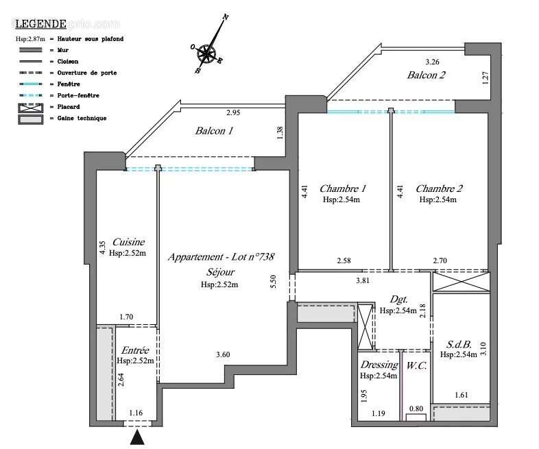
Appartement t3 de 70,15m2 avec 2 balcons

— Courbevoie 92400 —
350 700 €
70 m²
3 pièces
balcon/terrasseascenseur

Nos partenaires locaux
Proche de La Défense et de Paris, Courbevoie est une commune dynamique et moderne. Ce bien est idéalement situé à moins de 10 minutes à pied de la gare de Bécon-les-Bruyères.

Ce bien se compose :

- d'une entrée,
- d'un beau séjour de 21m2,
- d'une cuisine séparée de plus 7m2
- de deux chambres,
- d'un dressing,

2 balcons donnent de la luminosité à cet appartement.
Il est vendu avec place de parking et cave.
Ce bien en nue propriété a une durée d'usufruit de 17 ans.

Pour plus d'information, merci de bien vouloir nous contacter directement.
- d'une salle de bains
Voir plus

Référence: 92COURISELEPAR738
Barème des honoraires
DPE
A
B
C
D
E
F
G
GES
A
B
C
D
E
F
G

Prêt immobilier

Vous souhaitez connaître votre capacité d’emprunt et trouver le meilleur crédit immobilier ?
Réaliser une simulation gratuite

Appartement à COURBEVOIE
Appartement à COURBEVOIE
Appartement à COURBEVOIE
Appartement à COURBEVOIE
Ce site est protégé par reCAPTCHA la Politique de confidentialité et les Conditions d’utilisation de Google s’appliquent.
Obtenir un prêt immobilier au meilleur taux ?

En poursuivant votre navigation sans modifier vos paramètres, vous acceptez l'utilisation de cookies susceptibles de réaliser des statistiques de visite. Cliquez ici pour plus d'informations