Bénéficiez des services de nos partenaires locaux soigneusement sélectionnés
pour vous accompagner dans votre parcours d'achat immobilier

Saint-ambroise - appartement 2 pièces 44.31 m²

— Paris-11e 75011 —
515 000 €
44 m²
2 pièces
piscine

Nos partenaires locaux
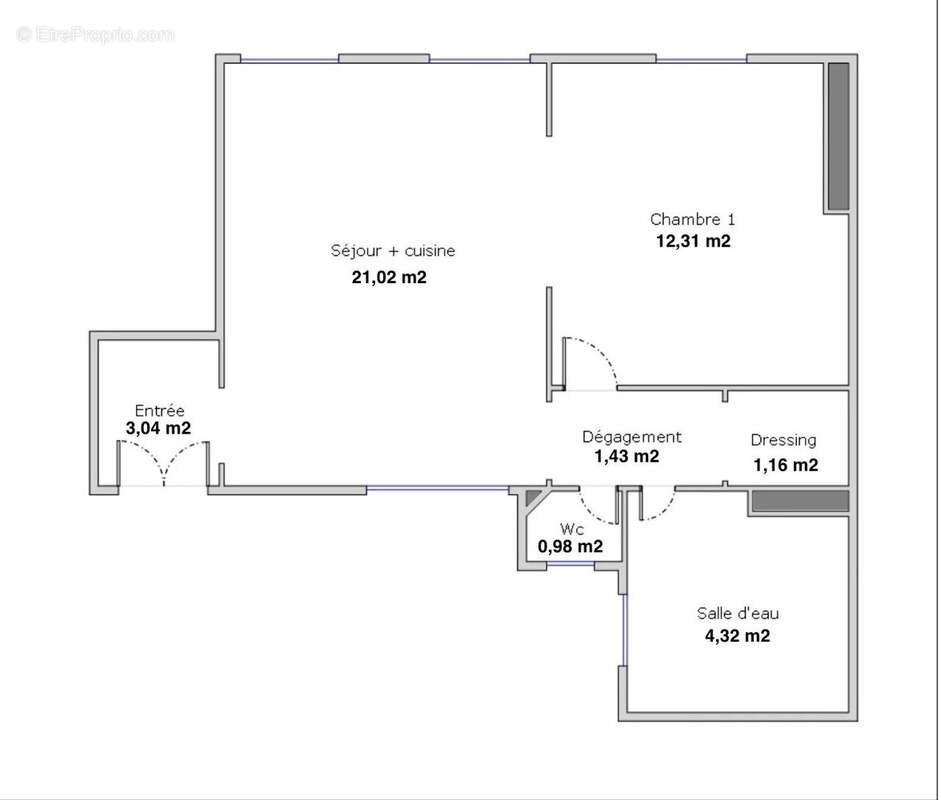
Rue Oberkampf – Au calme. dans un bel immeuble. venez découvrir ce deux-pièces de 44.31 m² Carrez.

Il offre une entrée avec rangements. un séjour avec cuisine ouverte. une chambre. une salle de bains. WC séparés et un dressing. 2m75 de hauteur sous plafond.

Vous serez charmé par son emplacement privilégié. le cachet de l'ancien. sa luminosité (orientation sud-est), le calme et aucun vis à vis.

Cheminée fonctionnelle, gardien, piscine et salle de sport dans la copropriété.

Aucun travaux de copropriété à prévoir. (Toiture, façade et caves refaites récemment).

Une cave vient compléter ce bien rare. À ne pas manquer.

charges 1800€/an

Métro Ménilmontant (ligne 2) ; Rue Saint-Maur (ligne 3)
Voir plus

Référence: 86374639
Barème des honoraires
DPE
A
B
C
D
E
F
G
GES
A
B
C
D
E
F
G

Prêt immobilier

Vous souhaitez connaître votre capacité d’emprunt et trouver le meilleur crédit immobilier ?
Réaliser une simulation gratuite

Appartement à PARIS-11E
Appartement à PARIS-11E
Appartement à PARIS-11E
Appartement à PARIS-11E
Appartement à PARIS-11E
Appartement à PARIS-11E
Appartement à PARIS-11E
Appartement à PARIS-11E
Appartement à PARIS-11E
Appartement à PARIS-11E
Appartement à PARIS-11E
Appartement à PARIS-11E
Appartement à PARIS-11E
Ce site est protégé par reCAPTCHA la Politique de confidentialité et les Conditions d’utilisation de Google s’appliquent.
Obtenir un prêt immobilier au meilleur taux ?

En poursuivant votre navigation sans modifier vos paramètres, vous acceptez l'utilisation de cookies susceptibles de réaliser des statistiques de visite. Cliquez ici pour plus d'informations