Bénéficiez des services de nos partenaires locaux soigneusement sélectionnés
pour vous accompagner dans votre parcours d'achat immobilier

Commerce 66m² à remiremont

— Remiremont 88200 —
138 000 €
66 m²
2 pièces

Nos partenaires locaux
REMIREMONT (Eco-Quartier)
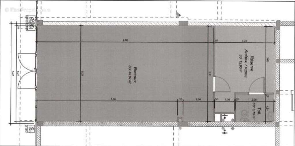
Pour investisseur: MURS COMMERCIAUX loués à usage commercial d'environ 66m² loi carrez.
Le local se compose d'une grande surface de vente, d'un bureau et d'un WC.
Actuellement loué mensuellement 858€ HT + 183 € de charges mensuelles (dont taxe foncière à la charge des locataires).
(bail 3/6/9 du 06/2022). Chauffage par géothermie.

Syndic: FRERE IMMOBILIER.

État des Risques et Pollutions : 'Les informations sur les risques auxquels ce bien est exposé sont disponibles sur le site Géorisques www.georisques.gouv.fr'
Voir plus

Référence: 2610
Bien en copropriété. Nombre de lots : 171. Charges de copropriété : 1500 €.
Honoraires d'agence de 6.15% à la charge de l'acquéreur
Barème des honoraires
DPE
A
B
C
D
E
F
G
GES
A
B
C
D
E
F
G

Prêt immobilier

Vous souhaitez connaître votre capacité d’emprunt et trouver le meilleur crédit immobilier ?
Réaliser une simulation gratuite

Commerce à REMIREMONT
Commerce à REMIREMONT
Commerce à REMIREMONT
Commerce à REMIREMONT
Commerce à REMIREMONT
Commerce à REMIREMONT
Commerce à REMIREMONT
Commerce à REMIREMONT
Ce site est protégé par reCAPTCHA la Politique de confidentialité et les Conditions d’utilisation de Google s’appliquent.
Obtenir un prêt immobilier au meilleur taux ?

En poursuivant votre navigation sans modifier vos paramètres, vous acceptez l'utilisation de cookies susceptibles de réaliser des statistiques de visite. Cliquez ici pour plus d'informations