Bénéficiez des services de nos partenaires locaux soigneusement sélectionnés
pour vous accompagner dans votre parcours d'achat immobilier

Appartement 67m² à villecresnes

— Villecresnes 94440 —
150 000 €
67 m²
3 pièces
parking

Nos partenaires locaux
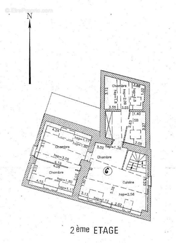
Appartement cosy et spacieux situé au 2ème et dernier étage (sans ascenseur) d'une petite copropriété.
67 m² au sol (41,67 m² carrez) d'ingéniosité : pas d'espace perdu pour ce lumineux 3 pièces !

Doté d'une quadruple exposition, l'appartement dispose d'un séjour de belle superficie avec cuisine ouverte, d'une grande chambre séparée en deux espaces pouvant être ouverts (actuellement chambre avec placard intégré et bureau).
Un dégagement avec rangements donne accès à une 2ème chambre avec placards intégrés, plus petite et parfaite pour une chambre enfant ou tout autre espace dont vous auriez besoin, ainsi qu'à la salle de bain avec toilettes.

Un parking extérieur en placement libre ainsi qu'une cave commune complètent ce bien qui sera idéal pour un 1er achat ou un investissement !

Le bien comprend 1 lot, et il est situé dans une copropriété de 7 lots (les charges courantes annuelles moyennes de copropriété sont de 1738 ¤ et le syndicat des copropriétaires ne fait pas l'objet d'une procédure citée à l'article L. 721-1 du code de la construction et de l'habitation).

Les informations sur les risques auxquels ce bien est exposé sont disponibles sur le site Géorisques : www.georisques.gouv.fr
Prix de vente : 150 000 ¤
Honoraires charge vendeur

Contactez votre conseiller SAFTI : Christelle BESSIS, Tél. : [Coordonnées masquées], E-mail : [Coordonnées masquées] - EI - Agent commercial immatriculé au RSAC de CRÉTEIL sous le numéro 840 126 460.
Informations LOI ALUR :
Soumis au régime de copropriété.
Nombre de lots : 7.
Quote part annuelle(moyenne) : 1738 euros.
Honoraires charge vendeur. (gedeon_26118_30953203)
Voir plus

Référence: 1405012
Bien en copropriété. Nombre de lots : 7. Charges de copropriété : 1738 €.
Honoraires à la charge du vendeur.
Barème des honoraires
DPE
A
B
C
D
E
F
G
GES
A
B
C
D
E
F
G

Prêt immobilier

Vous souhaitez connaître votre capacité d’emprunt et trouver le meilleur crédit immobilier ?
Réaliser une simulation gratuite

Photo 1 - Appartement à VILLECRESNES
Photo 1
Photo 2 - Appartement à VILLECRESNES
Photo 2
Photo 3 - Appartement à VILLECRESNES
Photo 3
Photo 4 - Appartement à VILLECRESNES
Photo 4
Photo 5 - Appartement à VILLECRESNES
Photo 5
Photo 6 - Appartement à VILLECRESNES
Photo 6
Photo 7 - Appartement à VILLECRESNES
Photo 7
Ce site est protégé par reCAPTCHA la Politique de confidentialité et les Conditions d’utilisation de Google s’appliquent.
Obtenir un prêt immobilier au meilleur taux ?

En poursuivant votre navigation sans modifier vos paramètres, vous acceptez l'utilisation de cookies susceptibles de réaliser des statistiques de visite. Cliquez ici pour plus d'informations