Bénéficiez des services de nos partenaires locaux soigneusement sélectionnés
pour vous accompagner dans votre parcours d'achat immobilier

Appartement 49m² à uzes

— Uzes 30700 —
255 000 €
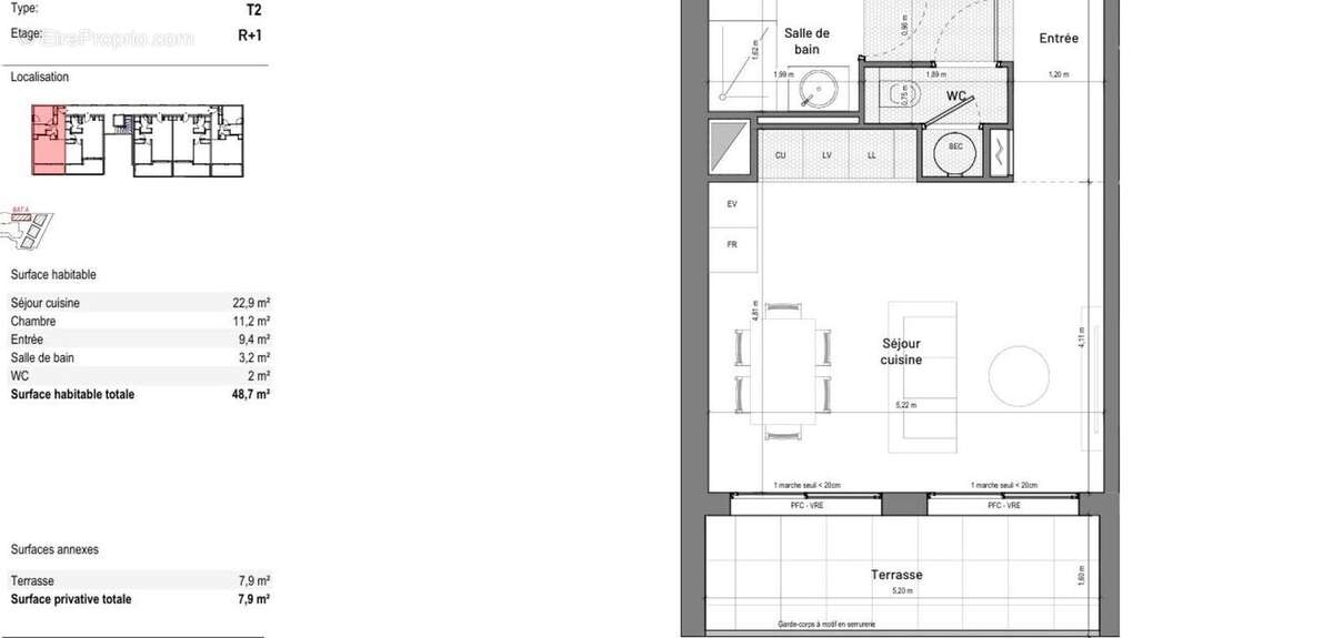
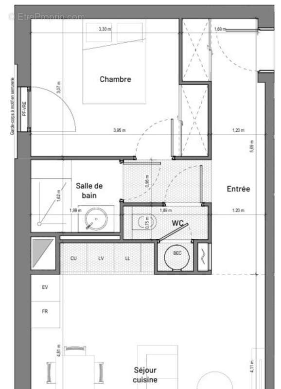
49 m²
2 pièces
parkingbalcon/terrasseascenseuraccès handicapé

Nos partenaires locaux
Situé à Uzès (30700), ce charmant appartement se trouve à quelques pas du centre historique de la ville, offrant ainsi un accès facile aux boutiques, restaurants et autres commodités. Implanté au sein d'une résidence à construire, cet appartement T2 bénéficie d'une situation privilégiée. En effet, sa proximité avec le coeur de la ville lui confère un cadre de vie agréable et dynamique, idéal pour profiter de la vie locale.

Cet appartement dispose d'une place de parking en sous-sol, offrant ainsi une solution pratique pour stationner en toute sécurité. Orienté au sud, cet appartement au 1er étage de la résidence de 2 étages bénéficie d'une belle luminosité naturelle. La présence d'une terrasse de 7.9 m² permet également de profiter de moments de détente en plein air, tout en appréciant le calme environnant.

Vous découvrirez un espace de vie de 48 m² aménagé avec goût. Avec 2 pièces, cet appartement offre des prestations de qualité, en adéquation avec les standards contemporains. Son agencement fonctionnel et sa superficie bien exploitée en font un lieu de vie confortable et accueillant. Vous pourrez également profiter d'une belle terrasse pour des moments de détente en extérieur.

Le bien comprend 2 lots, et il est situé dans une copropriété de 38 lots (les charges courantes annuelles moyennes de copropriété sont de 960 ¤ et le syndicat des copropriétaires ne fait pas l'objet d'une procédure citée à l'article L. 721-1 du code de la construction et de l'habitation).

Les informations sur les risques auxquels ce bien est exposé sont disponibles sur le site Géorisques : www.georisques.gouv.fr
Prix de vente : 255 000 ¤
Honoraires charge vendeur

Contactez votre conseiller SAFTI : Marin AUBEY, Tél. : [Coordonnées masquées], E-mail : [Coordonnées masquées] - EI - Agent commercial immatriculé au RSAC de Nîmes sous le numéro 900 120 932.
Informations LOI ALUR :
Soumis au régime de copropriété.
Nombre de lots : 38.
Quote part annuelle(moyenne) : 960 euros.
Honoraires charge vendeur. (gedeon_26118_31103849)
Voir plus

Référence: 693620
Bien en copropriété. Nombre de lots : 38. Charges de copropriété : 960 €.
Honoraires à la charge du vendeur.
Barème des honoraires

Prêt immobilier

Vous souhaitez connaître votre capacité d’emprunt et trouver le meilleur crédit immobilier ?
Réaliser une simulation gratuite

Photo 1 - Appartement à UZES
Photo 1
Photo 2 - Appartement à UZES
Photo 2
Photo 3 - Appartement à UZES
Photo 3
Ce site est protégé par reCAPTCHA la Politique de confidentialité et les Conditions d’utilisation de Google s’appliquent.
Obtenir un prêt immobilier au meilleur taux ?

En poursuivant votre navigation sans modifier vos paramètres, vous acceptez l'utilisation de cookies susceptibles de réaliser des statistiques de visite. Cliquez ici pour plus d'informations