Terrain 2143m² à logny-bogny

— Logny-Bogny 08150 —
48 500 €
2 143 m²

Iad France - Kyllian Manente vous propose : Venez découvrir ce terrain constructible non viabilisé de plus de 2 100 m², situé dans le charmant village de Logny-Bogny, dans un secteur très calme et paisible.
À seulement 5 minutes de Liart, où vous trouverez toutes les commodités, et à environ 30 minutes de Charleville-Mézières.

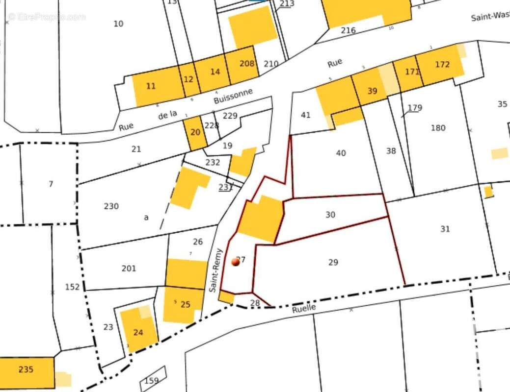
Vous retrouverez les plans cadastraux parmi les photos de l'annonce.
Contactez-moi dès à présent pour obtenir plus d'informations et organiser une visite.

Honoraires d'agence à la charge du vendeur.
Bien non soumis au DPE. Les informations sur les risques auxquels ce bien est exposé, y compris l'obligation légale de débroussaillement, sont disponibles sur le site Géorisques : http://www.georisques.gouv.fr.
La présente annonce immobilière a été rédigée sous la responsabilité éditoriale de M Kyllian Manente mandataire indépendant en immobilier (sans détention de fonds), agent commercial de la SAS I@D France immatriculé au RSAC de BRIEY sous le numéro 920366176, titulaire de la carte de démarchage immobilier pour le compte de la société I@D France SAS.
Informations LOI ALUR :
Honoraires charge vendeur. (gedeon_6727_32037576)
Voir plus

Référence: 1679074
Honoraires à la charge du vendeur.

Prêt immobilier

Vous souhaitez connaître votre capacité d’emprunt et trouver le meilleur crédit immobilier ?
Réaliser une simulation gratuite

Photo 1 - Terrain à LOGNY-BOGNY
Photo 1
Photo 2 - Terrain à LOGNY-BOGNY
Photo 2
Photo 3 - Terrain à LOGNY-BOGNY
Photo 3
Photo 4 - Terrain à LOGNY-BOGNY
Photo 4
Photo 5 - Terrain à LOGNY-BOGNY
Photo 5
Ce site est protégé par reCAPTCHA la Politique de confidentialité et les Conditions d’utilisation de Google s’appliquent.
Obtenir un prêt immobilier au meilleur taux ?

En poursuivant votre navigation sans modifier vos paramètres, vous acceptez l'utilisation de cookies susceptibles de réaliser des statistiques de visite. Cliquez ici pour plus d'informations