Bénéficiez des services de nos partenaires locaux soigneusement sélectionnés
pour vous accompagner dans votre parcours d'achat immobilier

Commerce 25m² à paris-19e

— Paris-19e 75019 —
66 000 €
25 m²

Nos partenaires locaux
Iad France - Maëlle Guenanff ([Coordonnées masquées]) vous propose : Paris 19 ? - Fonds de commerce salon de coiffure avec logement

À vendre, fonds de commerce de salon de coiffure idéalement situé dans le 19 ? arrondissement de Paris, dans un secteur vivant et recherché.

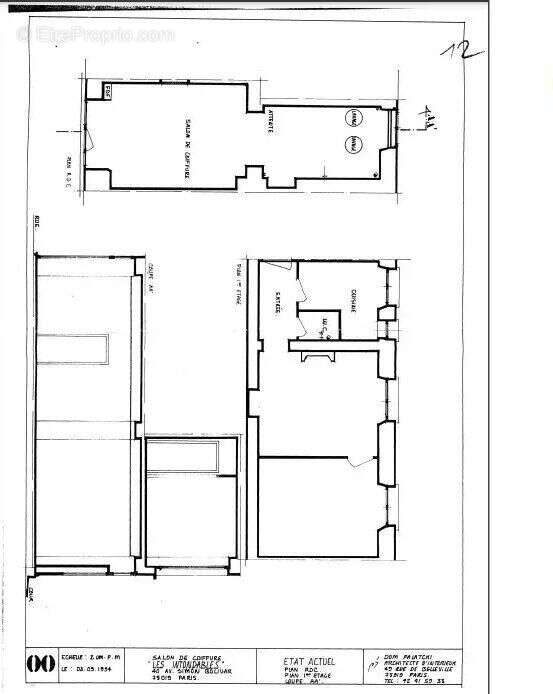
Le local se compose d'un espace de coiffure d'environ 25 m² environ en rez-de-chaussée, complété par un appartement d'environ 35 m² environ au premier étage, ainsi qu'une cave en sous-sol.

Le bail commercial 3 / 6/9 est en cours.

? Conditions financières :
- Loyer mensuel HT : 998,36 ¤
- Charges mensuelles : 123,33 ¤ + TVA (199,67 ¤)
soit un Loyer mensuel TTC : 1 321,36 ¤

? Les atouts :
- Emplacement dynamique dans le 19 ? arrondissement
-Local avec logement attenant : idéal pour un artisan ou commerçant
- Cave en sous-sol pour stockage

Bail 3 / 6/9 en place

Une belle opportunité pour reprendre une activité existante ou développer un nouveau concept dans un quartier à fort potentiel.

Information d'affichage énergétique sur le bien associé à cette annonce : DPE NS indice 0 et GES NS indice 0. La présente annonce immobilière a été rédigée sous la responsabilité éditoriale de Mlle Maëlle Guenanff (ID 76738), Agent Commercial mandataire en immobilier immatriculé au Registre Spécial des Agents Commerciaux (RSAC) du Tribunal de Commerce de Bobigny sous le numéro 882260631
Retrouvez tous nos biens sur notre site internet. www.iadfrance.fr.
Informations LOI ALUR :
Honoraires charge vendeur. (gedeon_6727_32038768)
Voir plus

Référence: 1869343
Honoraires à la charge du vendeur.

Prêt immobilier

Vous souhaitez connaître votre capacité d’emprunt et trouver le meilleur crédit immobilier ?
Réaliser une simulation gratuite

Photo 1 - Commerce à PARIS-19E
Photo 1
Photo 2 - Commerce à PARIS-19E
Photo 2
Ce site est protégé par reCAPTCHA la Politique de confidentialité et les Conditions d’utilisation de Google s’appliquent.
Obtenir un prêt immobilier au meilleur taux ?

En poursuivant votre navigation sans modifier vos paramètres, vous acceptez l'utilisation de cookies susceptibles de réaliser des statistiques de visite. Cliquez ici pour plus d'informations