Opportunité exceptionnelle : terrain de 302m² avec projet de construction au centre de doussard

— Doussard 74210 —
203 000 €
302 m²
jardin

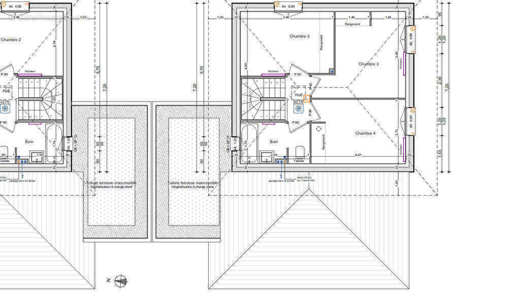
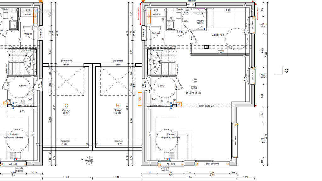
Découvrez ce terrain de 302 m² idéalement situé au centre du village de Doussard. Ce bien rare à la vente est proposé avec un contrat de construction et un permis de construire déjà accepté. Surface du terrain : 302 m² Surface habitable : 108 m² Nombre de pièces : 5 Nombre de chambres : 4 Prix de construction estimé : 297 000 euros Maison Mitoyenne par le Garage comprenant : Rez-de-jardin : -Pièce à vivre spacieuse d'environ 45 m² -Suite parentale confortable -Cellier pratique -WC indépendant Étage : -3 chambres d'environ 11 m² chacune -Salle de bains moderne Atouts de la situation : -Environnement calme et privilégié -Situé au centre du village de Doussard -A seulement 400 m de l'école et des commerces -A 600 m de la piste cyclable -A 3 minutes du lac d'Annecy et de la réserve naturelle du bout du lac Ne manquez pas cette chance rare à la vente ! Pour plus d'informations, contactez-nous dès maintenant !
Voir plus

Référence: 24079
Honoraires à la charge du vendeur.

Prêt immobilier

Vous souhaitez connaître votre capacité d’emprunt et trouver le meilleur crédit immobilier ?
Réaliser une simulation gratuite

Terrain à DOUSSARD
Terrain à DOUSSARD
Terrain à DOUSSARD
Terrain à DOUSSARD
Ce site est protégé par reCAPTCHA la Politique de confidentialité et les Conditions d’utilisation de Google s’appliquent.
Obtenir un prêt immobilier au meilleur taux ?

En poursuivant votre navigation sans modifier vos paramètres, vous acceptez l'utilisation de cookies susceptibles de réaliser des statistiques de visite. Cliquez ici pour plus d'informations