Bénéficiez des services de nos partenaires locaux soigneusement sélectionnés
pour vous accompagner dans votre parcours d'achat immobilier

Magnifique propriété de 500 m2 sur parc de 7 200 m2 - secteur castet-en-dorthe

— Bordeaux 33000 —
890 000 €
500 m² / 7 200 m²
14 pièces
parkingbalcon/terrassejardinpiscine

Nos partenaires locaux
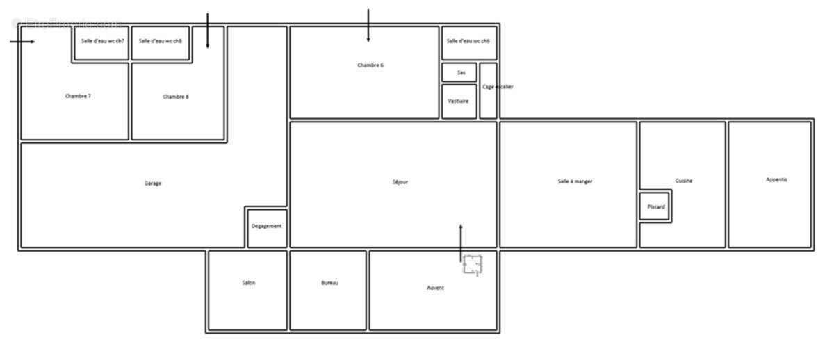
Exclusivité Thalia Patrimoine. Au cœur d’un environnement bucolique, à proximité du canal des Deux-Mers reliant l’Atlantique à la Méditerranée, des voies vertes et bastides médiévales et à moins de 10 km de l’autoroute A62, cette propriété d’exception de 500 m2 habitables s’étend sur un terrain arboré de plus de 7 200 m2, offrant intimité et tranquillité.
Véritable écrin de sérénité, le domaine est entouré d’une haie d’arbres qui préserve la quiétude des lieux. Ce cadre unique allie harmonieusement grand confort et authenticité. La propriété comprend une bâtisse centrale, datant du XIIᵉ siècle, entièrement rénovée.
Elle s’articule autour de deux ailes : l’une réunit cinq suites spacieuses, soigneusement décorées, chacune avec son caractère ; l’autre, séparée par des espaces de détente, comprend cinq chambres desservies par deux salles d’eau. Au total : 10 chambres, 7 salles d’eau et 7 WC.
Des dépendances complètent l’ensemble.
Le parc arboré de plus de 7 200 m2 accueille une piscine, un jacuzzi, un hammam ainsi que de nombreux espaces ombragés aménagés pour la détente.
Idéale comme demeure familiale ou pour une activité touristique (chambres d’hôtes, organisation d’événements), cette propriété se situe au cœur du pays des bastides et des cités médiévales de la Gironde, aux portes des prestigieux vignobles des Graves et de Sauternes. Bordeaux est accessible en seulement 40 minutes, et la gare la plus proche se trouve à 3 km.
Venez découvrir ce bien unique qui vous ravira ! Gestion de Patrimoine & Immobilier - www.thalia-patrimoine.com
Voir plus

Référence: 1792
Honoraires d'agence de 5.01% à la charge de l'acquéreur
Barème des honoraires
DPE
A
B
C
D
E
F
G
GES
A
B
C
D
E
F
G

Prêt immobilier

Vous souhaitez connaître votre capacité d’emprunt et trouver le meilleur crédit immobilier ?
Réaliser une simulation gratuite

Maison à BORDEAUX
Maison à BORDEAUX
Maison à BORDEAUX
Maison à BORDEAUX
Maison à BORDEAUX
Maison à BORDEAUX
Maison à BORDEAUX
Maison à BORDEAUX
Maison à BORDEAUX
Maison à BORDEAUX
Maison à BORDEAUX
Maison à BORDEAUX
Maison à BORDEAUX
Maison à BORDEAUX
Maison à BORDEAUX
Maison à BORDEAUX
Maison à BORDEAUX
Maison à BORDEAUX
Maison à BORDEAUX
Maison à BORDEAUX
Maison à BORDEAUX
Maison à BORDEAUX
Maison à BORDEAUX
Ce site est protégé par reCAPTCHA la Politique de confidentialité et les Conditions d’utilisation de Google s’appliquent.
Obtenir un prêt immobilier au meilleur taux ?

En poursuivant votre navigation sans modifier vos paramètres, vous acceptez l'utilisation de cookies susceptibles de réaliser des statistiques de visite. Cliquez ici pour plus d'informations